2050 M Street
REX
Washington, United States
- Year
- 2017
- Category
- Commercial > Office - Mid Rise (5 - 15 Floors)
- Type
- Commercial
- Firm
- REX
- Location
- Washington, United States
- Award
- A+ 2023 · Finalist

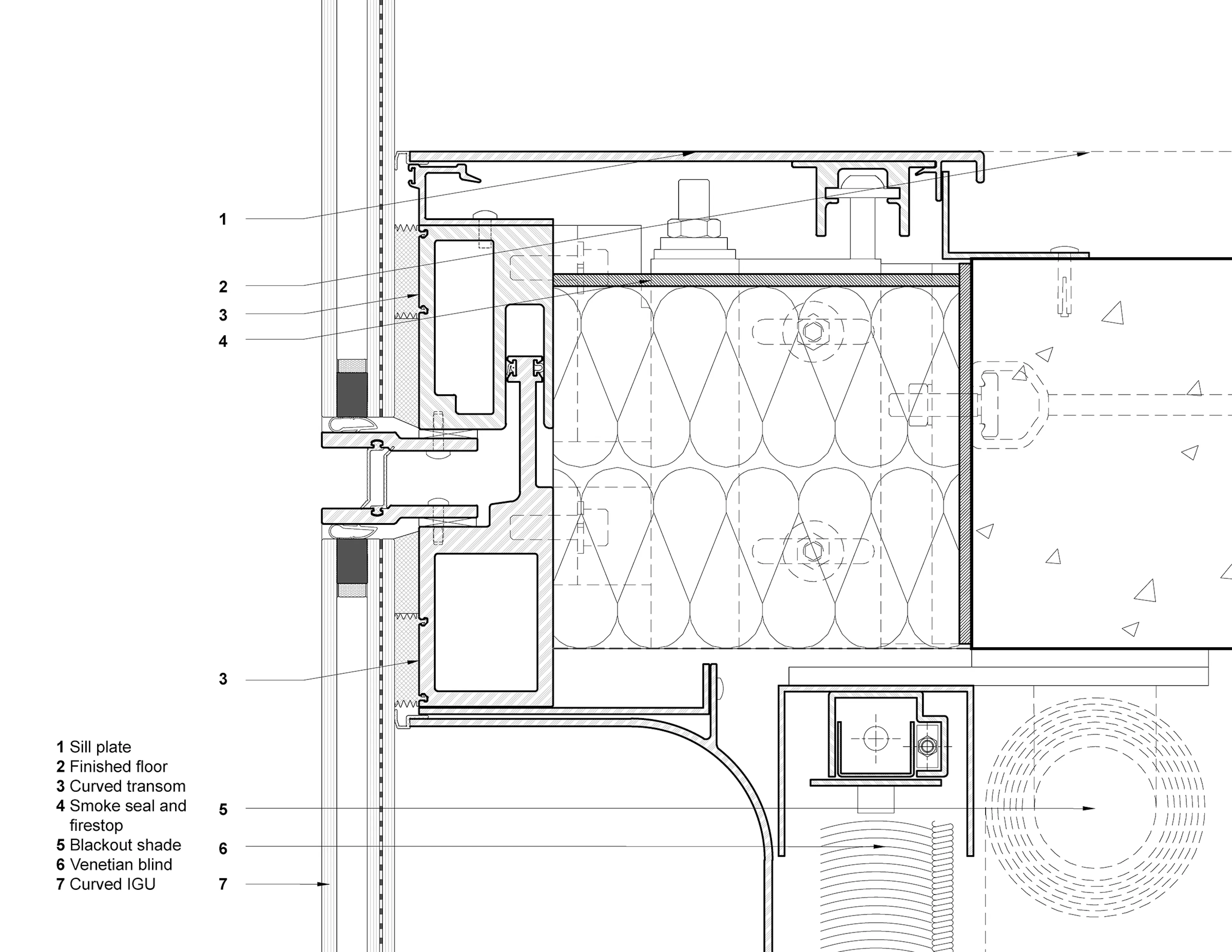
Washington, DC’s building stock is largely composed of two typologies: heavy masonry or concrete buildings with high-relief facades and punched windows—in the Beaux Arts, Neoclassical, Art Deco, and Brutalist styles—or modern structures with taut glass envelopes, many with applied external decorative treatments. Because building heights and massing are constrained by DC’s strict zoning codes, the two typologies match in scale, but are aesthetically unreconciled. In this context, 2050 M Street maximizes its façade’s potential to set the new standard of trophy office space within the DC market. Its curtain wall provides the leasing ideal of hyper-transparent, floor-to-ceiling glass without any view-impeding mullions. The unique glass also creates a new DC office type, one which combines the advantages of an all-glass building with the modulation of a high-relief façade befitting its context. The façade’s approximately nine hundred identical, insulated-glass panels are subtly curved to a 2.9m radius through a heat roller tempering process. The curve yields structural efficiency, which meets the wind load requirements and enables a thinner monolithic outer lite than normal, providing greater transparency. Paired with the curving panels, it creates an unusual kaleidoscopic effect of repetitive transparency and reflection that simultaneously animates and dematerializes the façade. The concave side of the curved units faces outwards, resulting in an elegant fluting effect, which in turn gives the building its unique presence. To emphasize the ethereal lightness of the skin, all perimeter columns are pulled 3.8m in from the façade, and the ceiling is tapered to the depth of the structural slab as it approaches the exterior. As a counterpoint to the crystalline façade, the lobby is a warm oasis of cowhide wall panels (whose dimensions, ironically, suggest stone) and wood floors and ceilings. The vestibule is enlarged to accommodate a site-specific artwork commissioned for the building.
Collaborators
2lead
collaborator



































