82 Concept
DUCTSTORE the design guru Co., Ltd.
Tambon Bang Chalong, Thailand
- Year
- 2022
- Category
- Commercial > Mixed Use (S <25,000 sq ft.)
- Type
- Commercial
- Firm
- DUCTSTORE the design guru Co., Ltd.
- Location
- Tambon Bang Chalong, Thailand
- Award
- A+ 2025 · Finalist

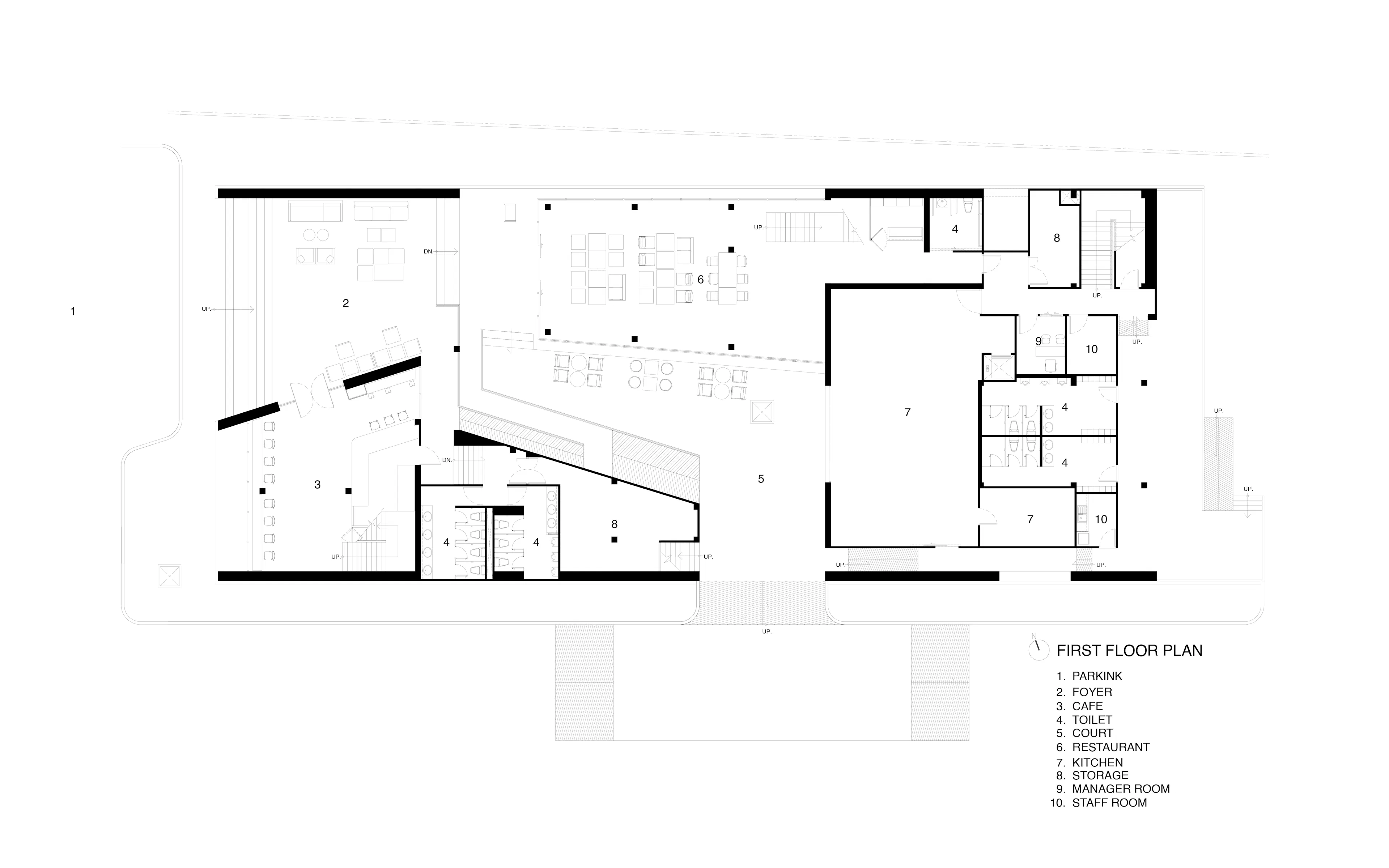
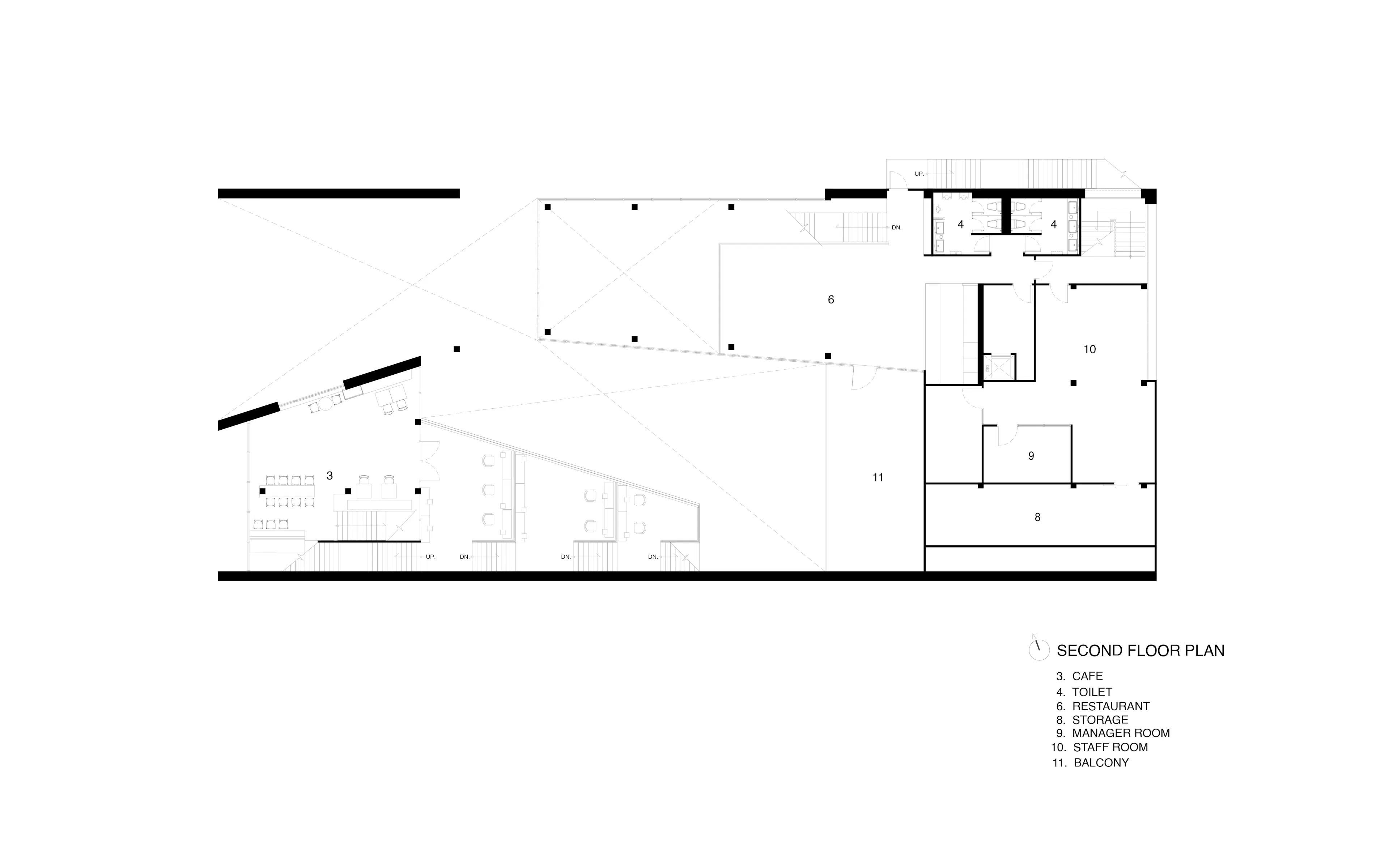
The 82 Concept project designs a space program that integrates a café, restaurant, bar, and office within the same area, optimizing space utilization to enhance operational efficiency and promote sustainable business growth. It is envisioned as an iconic destination in the Suvarnabhumi area, with an emphasis on an attractive and eye-catching architectural style that draws people in. The design features a form that is simple yet conceptually complex, adding both depth and functionality to the building. The aim is for the architecture to play a crucial role in supporting and promoting business success. Given that the project’s program includes a café, restaurant, bar, and office, the site—being narrow but long—must be carefully allocated to accommodate all these functions. The design ensures functional continuity and connection without interference between different areas. This necessity led to the development of a more complex building layout, transforming a single-story structure into a multi-dimensional design that supports diverse uses. The building is framed by long walls on both sides, enclosing the space and shielding it from the external environment. Moreover, the roof is designed with varying heights between the front and back sections, creating a form that resembles the number 8 or the infinity symbol when viewed from above. This gives a sense of continuous spatial flow throughout the architecture. To enhance the internal experience, openings are strategically staggered to encourage connection within the building while maintaining privacy—ensuring that each program remains separated and not directly visible from the others. This thoughtful layout is further reinforced by an internal courtyard that connects interior and exterior spaces. Additionally, certain parts of the program are elevated to suit their respective functions appropriately. The sequence of accessing each area follows the natural rhythm of daily use, culminating in the project’s architectural highlight: a staircase that leads up to a rooftop café and bar, creating a memorable and engaging user experience. Finally, the building design incorporates energy-conscious innovations. The main lobby features a large open space that draws in external air to enable natural ventilation, reducing the reliance on air conditioning. This space also serves as a green zone that helps purify indoor air. Furthermore, the building utilizes energy-efficient glass materials to minimize heat ingress, contributing to a more sustainable built environment.
Collaborators
1














