825 Arts
VJAA
Saint Paul, United States
- Year
- 2024
- Category
- Concepts > Architecture +Adaptive Reuse
- Type
- Cultural
- Firm
- VJAA
- Location
- Saint Paul, United States
- Award
- A+ 2025 · Finalist

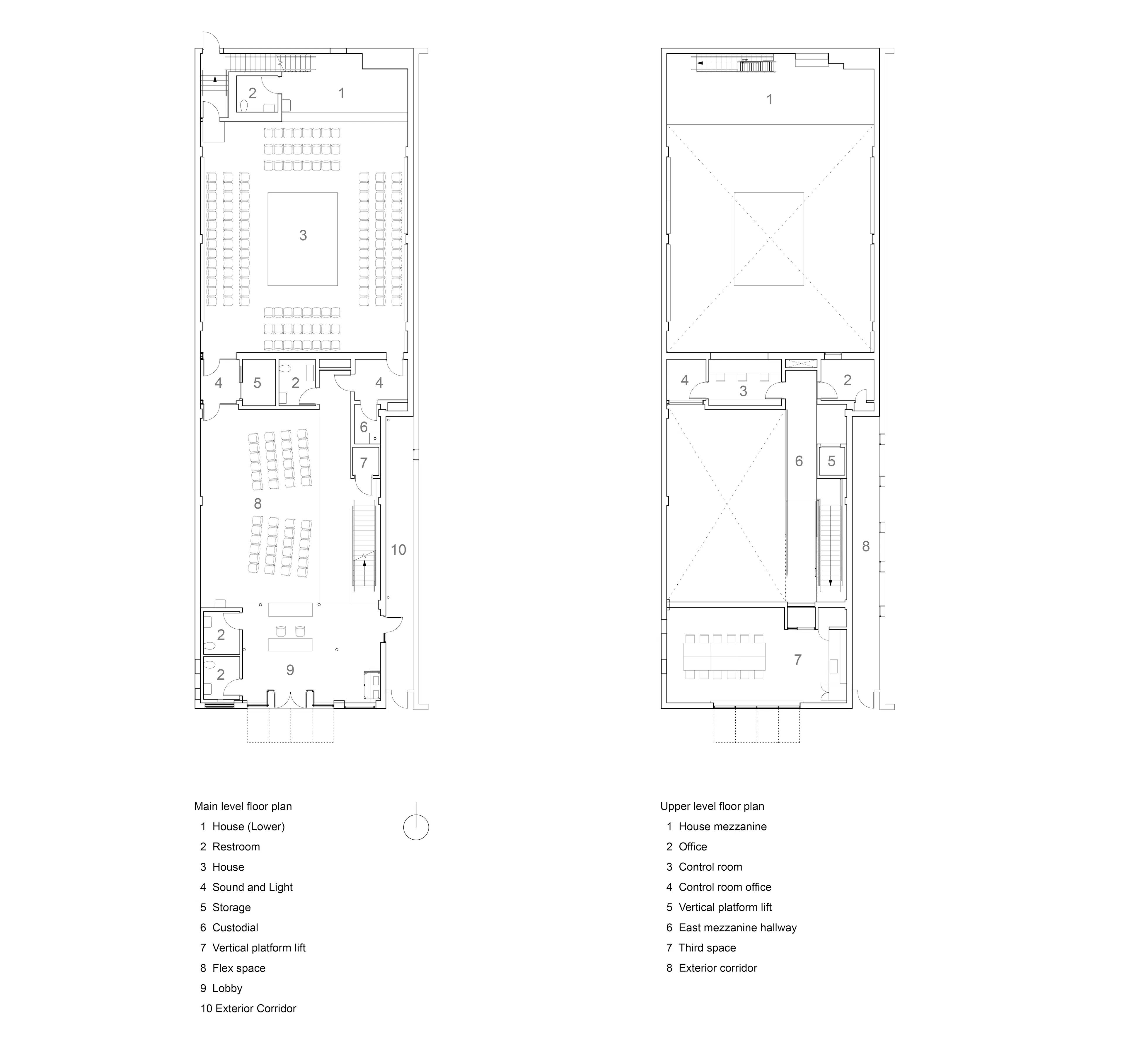
825 Arts A Perennial Community Asset Reoccupying a Historic Theater 825 Arts is a dynamic arts space that activates the street and supports the Frogtown-Rondo neighborhood socially, economically, and culturally. A community-led process reclaimed and transformed a long-abandoned historic theater to support the cultural life of the diverse, dynamic neighborhood. The renewed Victoria Theater building in the Frogtown and Rondo neighborhoods in St. Paul supports and makes visible its vibrant arts community along a major urban street corridor. The new facility provides a variety of flexible multi-functional gathering spaces, is environmentally and economically sustainable, and values the building’s historic elements and its rich palimpsests of past occupations. The formal design strategy was the preservation and recontextualization of fragmented layers of past uses while adding new programmatic elements to create a cohesive whole that maintains the remnants of past layers of history. These traces of past use were retained and exposed as much as possible: overlapping layers of paint, ghosted outlines of long-removed stairs, abandoned beam pockets and brick infilled openings of former windows. The new 825 Arts building includes high-quality performance spaces for music, dance, spoken word, theater, film, artist display, teaching spaces, and community gathering places. A new stage and back of house provides support for the reconfigurable 120-seat theater, allowing it to support the needs of a broad range of local and visiting performers. A large accessible community room overlooking the street and a second-level mezzanine with its grand circulation stair acts as a balcony to the main social space and to the street. This street-front assembly of social spaces adds to the theatrical feel of the project, adding a sense of play to encourage movement and community use.
Collaborators
1lead










