AE.R Skinlab
Leckie Studio Architecture + Design
Vancouver, Canada
- Year
- 2022
- Category
- Hospitality > Spa and Wellness
- Type
- Hospitality + Sport
- Firm
- Leckie Studio Architecture + Design
- Location
- Vancouver, Canada
- Award
- A+ 2023 · Finalist

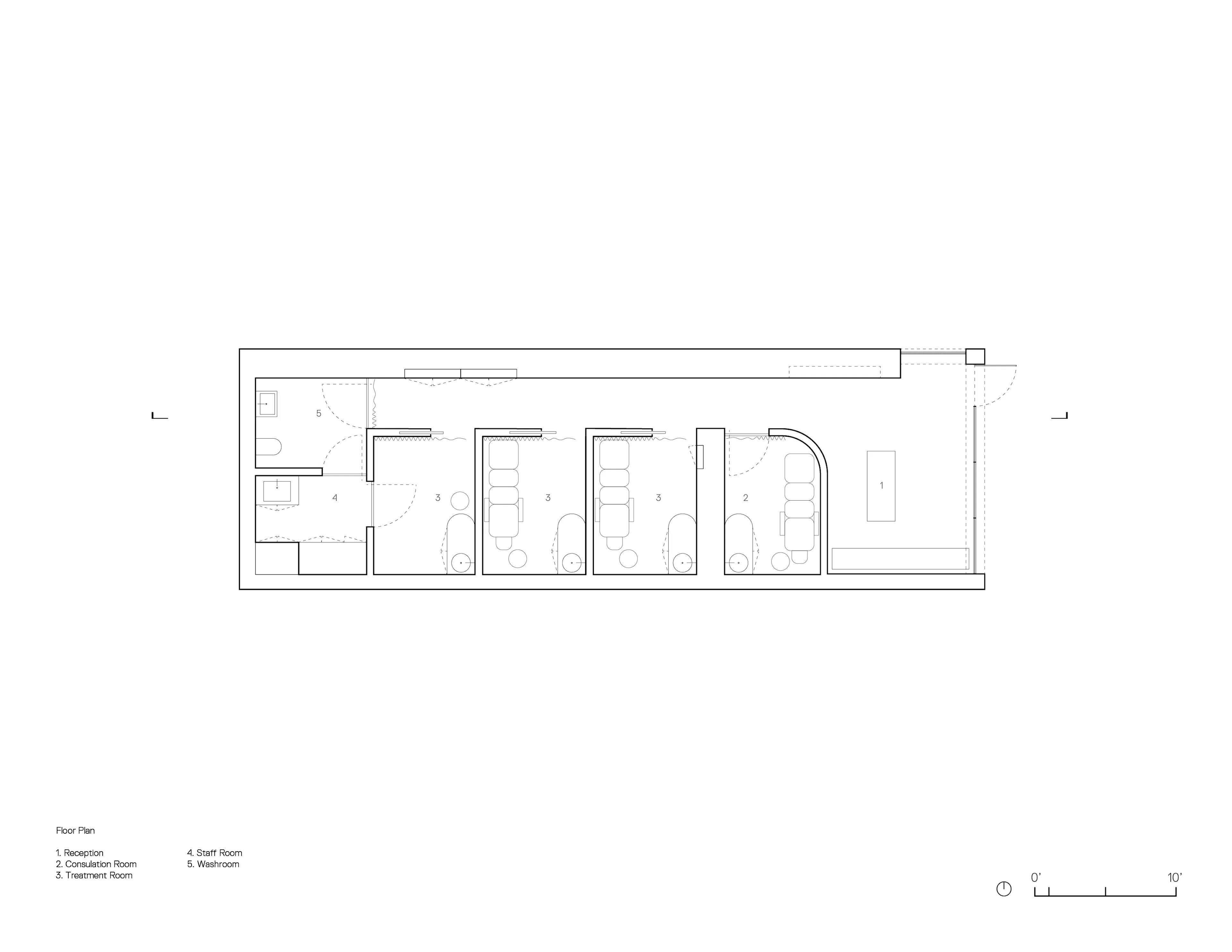
AeR Skinlab is a Vancouver-based cosmetic dermatology clinic situated in a cloistered retail space in Arthur Erickson’s Waterfall Building. The modest 880 sf space is the brand’s pilot/flagship location, and consists of three treatment rooms, a consultation space, and a reception area. The intention of the client was to provide their clientele with a space in which to feel a rejuvenating calm, a space that speaks of slowing down and returning to a more elemental state of being. The architectural approach was to explore a sense of geologic time and groundedness through monolithic form and monochromatic materiality to create a space that feels excavated from the stillness of rock. The walls of the space are clad in locally quarried marble from Vancouver Island, finished with a raked striation that creates a variegated texture with subtle fragility. The existing storefront glazing was replace with fluted glass, reinforcing the striated texturing of the space, while also providing a sense of privacy for the clientele. To bring an element of life and transformation to the space, a lightweight ceiling installation recalls the passage of water through calcium, slowly growing organic forms that evoke the persistence of gravity, time, and weathering. The ceiling installation consists of densely packed tyvek filaments which glow as they diffuse light through their varying depths.
Collaborators
1




















