Alpine Cabin
Scott & Scott Architects
- Year
- 2013
- Category
- Concepts > Architecture +Self Initiated Projects
- Type
- Residential
- Firm
- Scott & Scott Architects
- Award
- A+ 2014 · Jury Winner

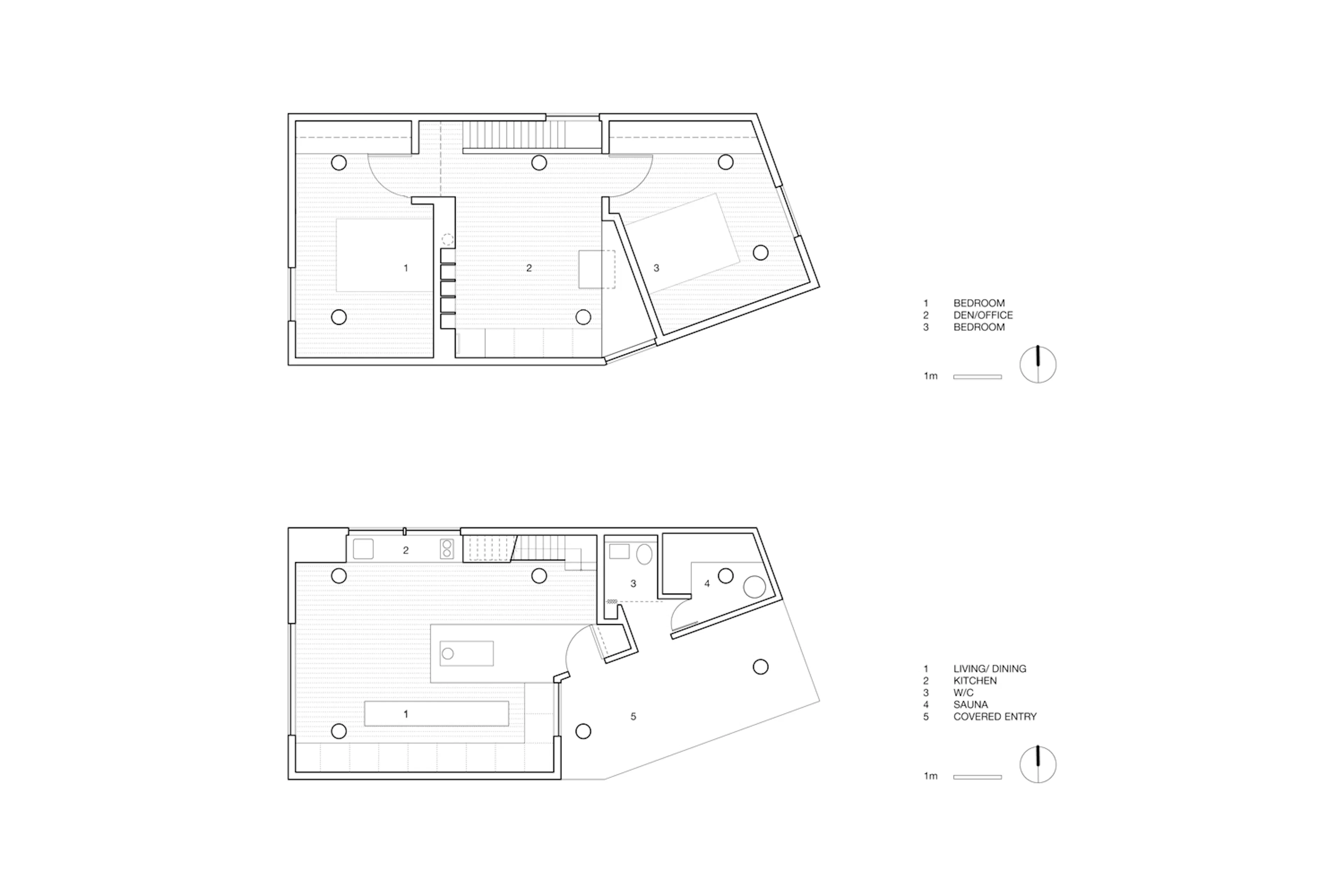
Vancouver architects Susan and David Scott recently launched their practice with the completion of a remote snowboard cabin located in an alpine powder haven on the North end of Vancouver Island. The cabin was constructed out of a desire to directly design and build as a singular act, to work with the freedom one experiences when snowboarding, and in a manner which is centered in the adventure and not bound heavily in pre-determination. The structure consists of douglas fir columns, rough sawn fir lumber, and planed fir interior finish. The construction approach was determined to avoid machine excavation, to withstand the annual snowfall, to resist the dominant winds and to build in a manner which elevates the building above the height of the accumulated snow on the ground. The materials are left in their raw form and finish. The exterior is clad in cedar which has weathered to the tone of the surrounding forest. The 100 sqm cabin is without electricity and is heated by a wood stove. Water is collected from a local source and carried in. It is located in a community operated alpine recreation area which has 1500cm of annual snow accumulation and legendary powder. The cabin is located at 1300m above sea level and is directly accessible by gravel road five months of the year, during the other months equipment and materials are carried by toboggan to the site.
Collaborators
1


















