Anwar Gargash Diplomatic Academy
Shape Architecture Practice + Research
Abu Dhabi, United Arab Emirates
- Year
- 2023
- Category
- Details > Architecture +Metal
- Type
- Educational
- Firm
- Shape Architecture Practice + Research
- Location
- Abu Dhabi, United Arab Emirates
- Award
- A+ 2023 · Popular Choice

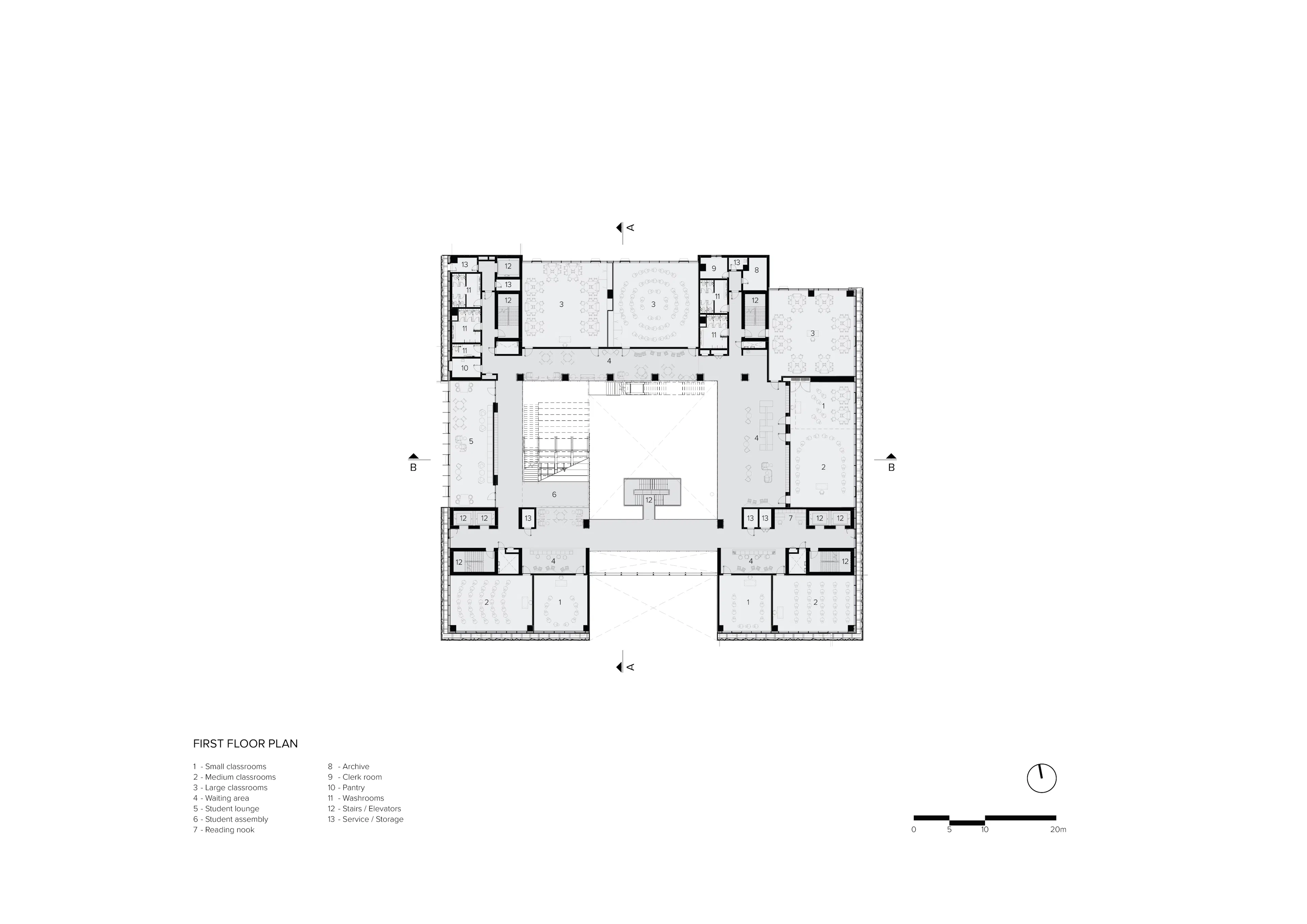
Established in Abu Dhabi, right at the heart of the city’s diplomatic district, this facility was conceived to support the country’s Foreign Affairs Ministry through the education of young diplomats and government leaders. Rooted in Arab tradition and culture, an introverted building was created, with the play of outer opacity and internal transparency serving as a major motif. Diplomacy requires an openess to the world. This characteristic has been expressed through the large, welcoming glazed portals on either side of the opaque cubic form, as well as the proliferation of communal and collaborative spaces, and the site’s borderless integration into its surroundings. The building’s envelope has been designed to combat the harsh elements of the regional climate, while also representing the nation’s strength. Simplicity of form can be seen in the cubic mass housing both classrooms and offices for staff and faculty. Three portions of the mass extend outward, continuing the solidarity of the building’s shape. Concerns of sustainability are addressed via the double skin façade. A high-performance glazing system acts as a first defense against solar heat gain, doubled by an outer skin of perforated aluminum screens. These panels diffuse sunlight throughout the interior, without obstructing views. Each side of the building is encapsulated by different panel fold patterns, creating a unique rhythm of shadow and light that evolves throughout the day. Entry finds a central atrium that is expansive and well-lit, connecting every level. Wood-clad staircases wrap around the perimeter, encouraging movement. The main staircase widens near the student lounge to accommodate open gatherings. In the main auditorium, lighting, color, and texture all draw the eye toward the speaker’s stage.
People
3Collaborators
3































