Arghavan (Cercis) Commercial Project
13 Degrees Architecture Studio
Yazd, Iran
- Year
- 2023
- Category
- Concepts > Architecture +Innovation
- Type
- Commercial
- Firm
- 13 Degrees Architecture Studio
- Location
- Yazd, Iran
- Award
- A+ 2025 · Popular Choice

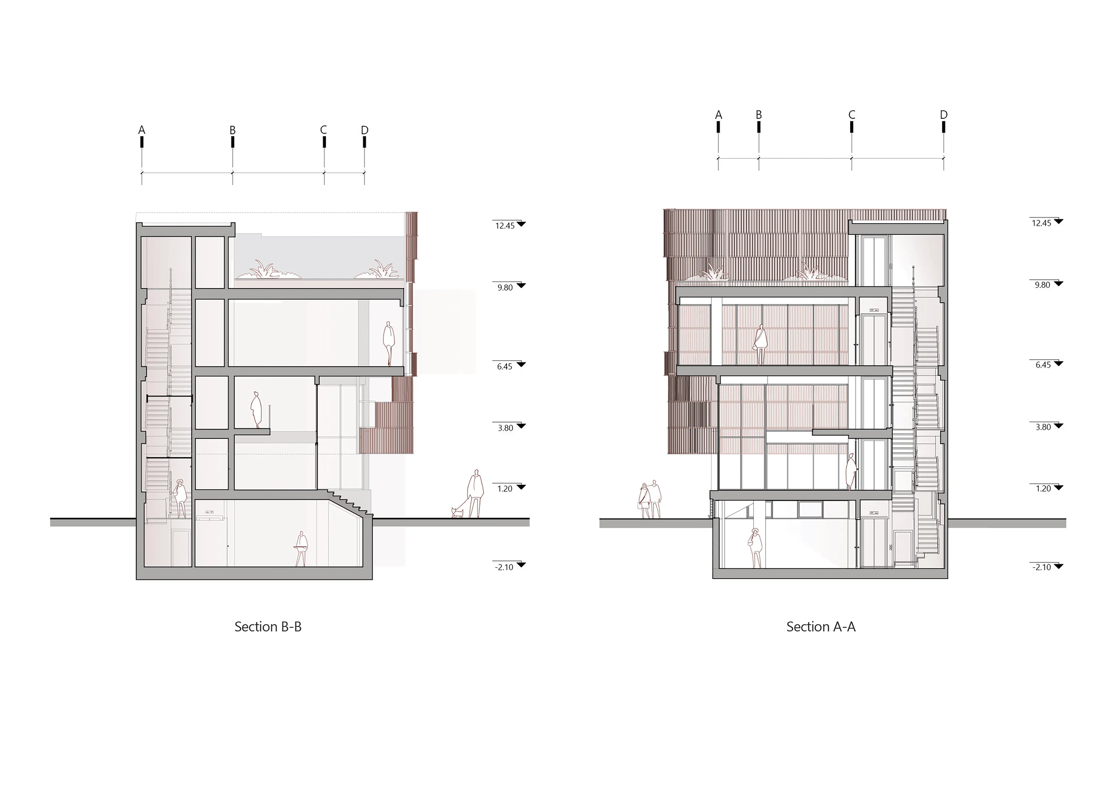
Essence: We believe that the Arghavan project should be examined as a practice in the realm of empiricism and tectonics. A formative state that occurs in the field of human lived experiences, techniques, time, materials from nature, and forces, and ultimately enters an aesthetic life as something creative and new. An evolution that begins with forgotten techniques like wicker weaving and transforms it into a new, operational alternative that responds to the spirit of its time in architecture. To simplify this process, let’s break it down into a few titles: A: Tectonic Evolution of Cercis Siliquastrum (Arghavan) Wicker: The use of wicker weaving and discarded branches of Cercis tree in this project was not our first experience with this indigenous technique. We had previously used it under various titles such as shelter, canopy, and even part of the facade in our other projects. In each of them, we designed technical details according to the situation. However, in the Arghavan project, its use is expanded to create a cohesive whole. We have tried to turn it into a documented construction technique, an experience, and a repeatable and expandable technique for others or other situations. Ultimately, aspects like strength, elegance, and dignity should be the conscious outcomes of this technique. B: Material and Spirit of the Time: Wicker weaving, by its nature, is a profession that turns low-value materials into something valuable and practical through the creative process. Therefore, the Arghavan project tries to use this inherent quality in the project’s economy. In this process, the cost of materials is focused on discarded branches of Cercis tree, away from common, trendy, expensive, energy-intensive, and non-environmental materials. The costs associated with the usual substructure are also spent in the innovative and experimental technical construction process, and the execution costs are mainly focused on paying wages to craftsmen, especially weavers. C: Responding to the Architectural Concept: In this regard, we can say that we are facing a temporal intersection. This means that the Arghavan project should be considered the experiential and cognitive result of our office’s understanding of wicker weaving, its possibilities, and its conscious intersection with the architectural study and design process of this project. In fact, we had reached an initial image of the project during the design process. In this image, we wanted: 1. The urban facade to become more active through our project. 2. Due to the existing structural weaknesses (as the project was handed over to our office after the structure was executed), we aimed for maximum lightness. 3. Through a porous or transparent shell, we could bring the interior lighting of the project to serve the urban facade as much as possible. 4. Considering the climatic considerations in the city of Yazd, our shell could act as a thermal membrane, which our wicker-woven shell has provided through extensive shading on the body. Also, as much as possible, the project fits within the client’s financial resources. Final Word: We believe that the Arghavan project is the result of the interaction of two narratives. One is based on the continuous flow of testing and experimenting with the untested, and the other is based on the guidance and method of guiding the new and creative in today’s world. An interaction that ultimately leads to a sense and perception of uniqueness in the audience and even the executors. So much so that it might be considered to have the quality of “novelty.”
Collaborators
1
















