Art Stable
Olson Kundig
- Year
- 2013
- Category
- Residential > Mid Rise (5-15 Floors)
- Type
- Residential
- Firm
- Olson Kundig
- Award
- A+ 2013 · Finalist

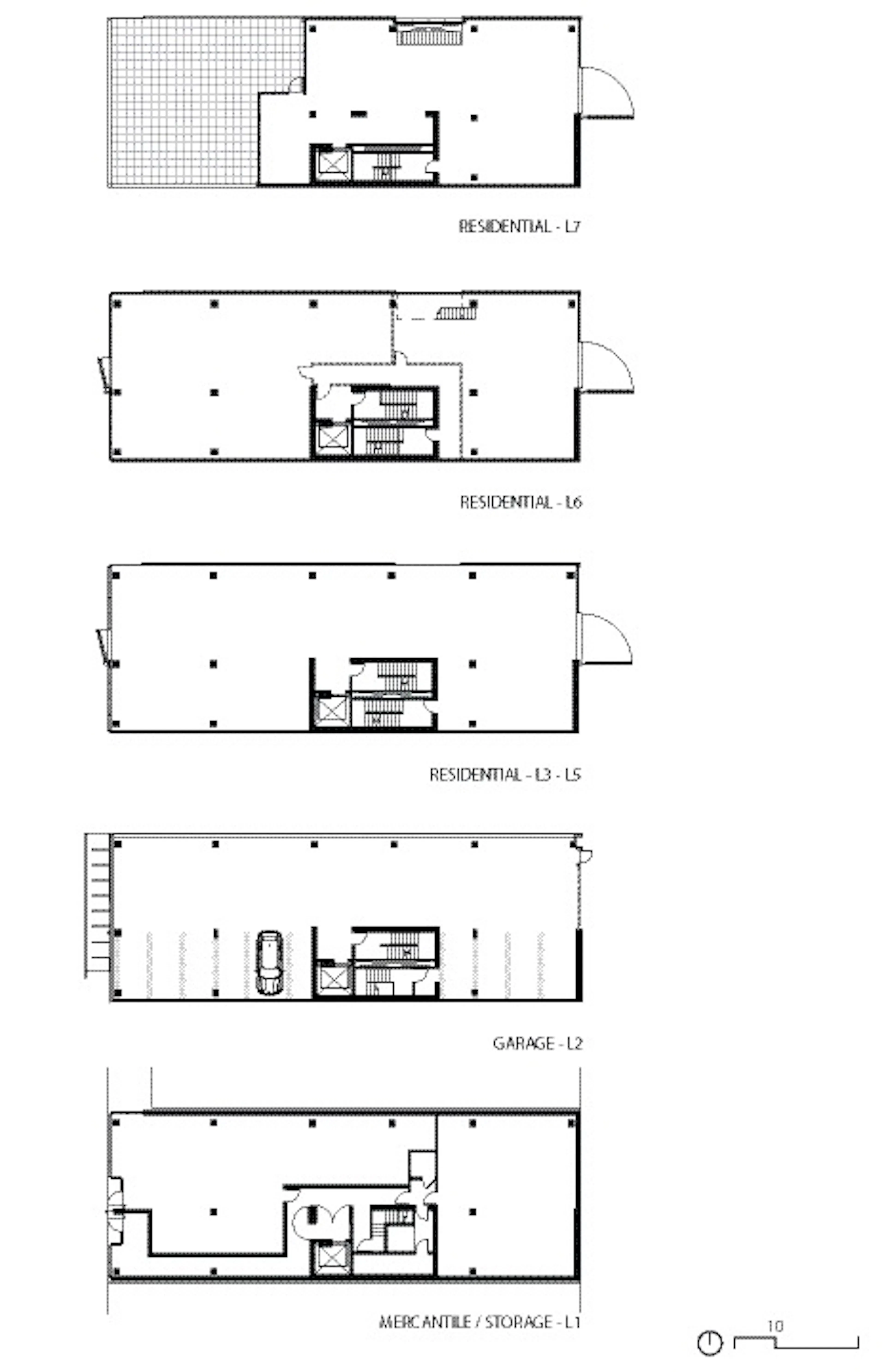
Art Stable is an urban infill project in the rapidly developing South Lake Union neighborhood of Seattle. Built on the site of a former horse stable, the seven-story mixed-use building carries its working history into the future with highly adaptable live/work units. Both front and back elevations of the building are active. The alley-facing façade features an 80-foot 5-inch tall hinge topped by a davit crane and five steel-clad, hand-cranked doors that cover nearly a third of the façade. The system references a warehousing tradition in how it moves oversize objects into the building. On the street side, large hinged windows open to provide natural ventilation throughout the units. The building draws upon the architectural concepts of prospect and refuge, transposed to an urban setting. Units are designed to accommodate flexibility in use and changes over time, and are zoned for both residential and commercial use. The shell and core of the building are built to last over 100 years. Geothermal loops were inserted into the building’s structural piles, resulting in an innovative and highly energy-efficient radiant heating and cooling system. This is one of the first times this type of geothermal system has been used in this country. Tom Kundig - Owner/Principal Kirsten R. Murray - Owner/Principal Kevin Kudo-King - Project Manager Jim Friesz - Project Manager Jeff Ocampo - Architect
Collaborators
1lead
























