Bairong Health Clinic
Super Rice Architects
- Year
- 2023
- Category
- Concepts > Architecture +Health
- Type
- Government + Health
- Firm
- Super Rice Architects
- Award
- A+ 2024 · Popular Choice

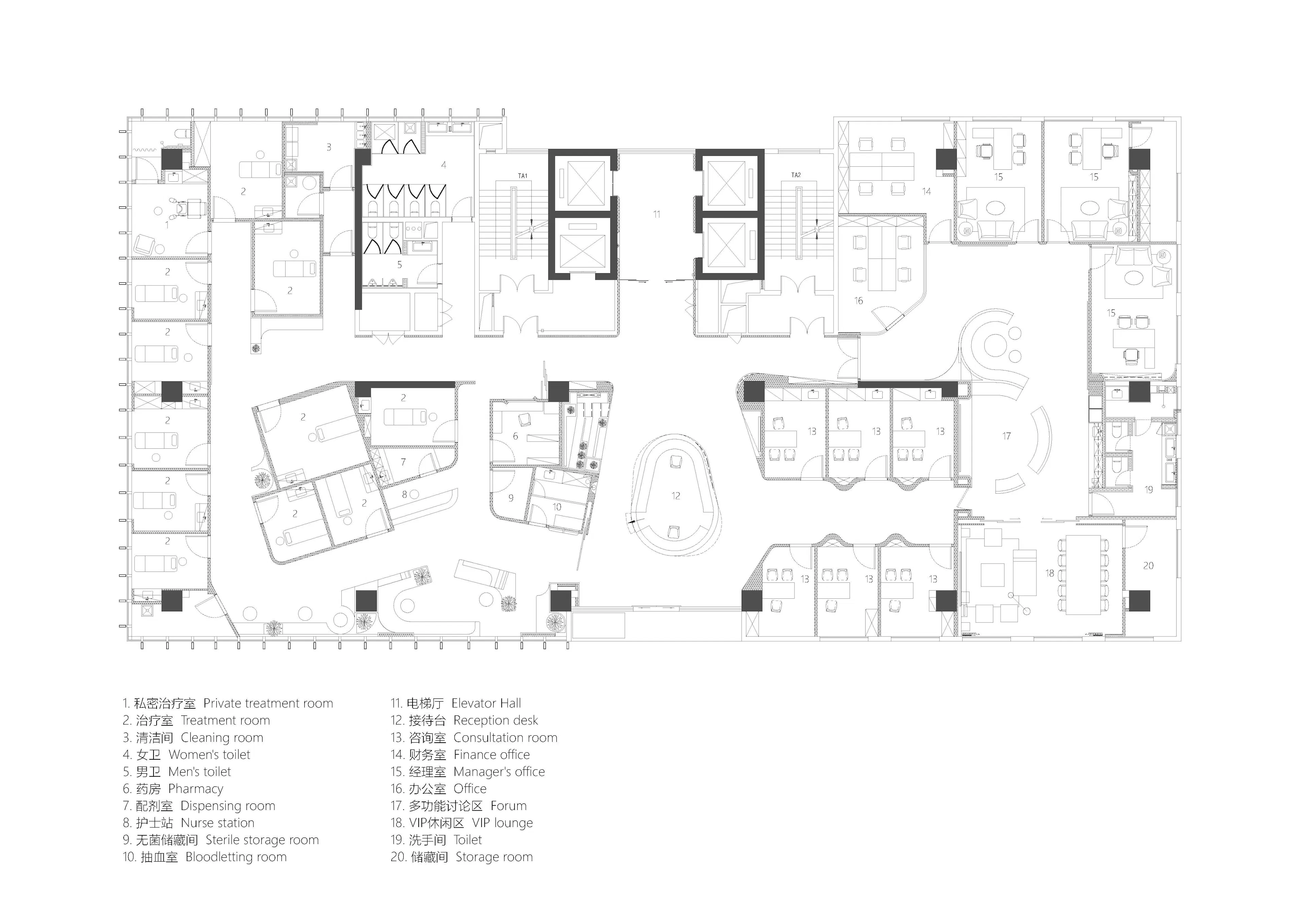
Super Rice Architects has designed a Bio-Tech company Bairong Health’s first specialized clinic in Foshan City of Guangdong. The aim is to cultivate an atmosphere that fosters calmness, contentment, and confidence, with the goal of transforming the treatment process into a pleasant and comfortable experience. The design of overall space is inspired by the breathtaking natural beauty of Foshan region. The prominent curves and arcs create a valley-like atmosphere. The design's soft and inclusive feel eliminates any sense of confinement, providing patients with a warm and comfortable space to feel welcomed and well-cared for. In the public area, the architects created a relaxed and open space by optimizing natural light and incorporating greenery to foster a bright, lively, and environmentally conscious atmosphere. Warm and sustainable environmental materials are utilized to ensure visitors feel at ease and comfortable, such as wood from floor to ceiling in the waiting area, and wall fabric throughout corridor space. The layout of the clinic is well-planned to help medical environment improve efficiency and safety. The circular flow ensures a smooth movement of people and prevents congestion, obstructions, and any possibility of personnel crossing paths. In the treatment rooms, conventional finish materials were exchanged for sustainable alternatives from local suppliers. All the cabinets are made of healthy materials which are not glued, can easily be dismantled according to type and are, therefore, permanently recyclable. Thus, there is no waste after the clinic's useful life as all raw materials can be reused. The multifunctional area is designed to create an open and flexible working space that promotes interaction and collaboration in different departments within the clinic. It encourages the exchange of cutting-edge medical research among doctors and researchers, leading to knowledge sharing and innovation.
People
2Collaborators
1
















