BASAO Bailuzhou
Neutra Architects
Xiamen, China
- Year
- 2023
- Category
- Commercial > Commercial Interiors (<25,000 sq ft.)
- Type
- Commercial
- Firm
- Neutra Architects
- Location
- Xiamen, China
- Award
- A+ 2024 · Special Mention

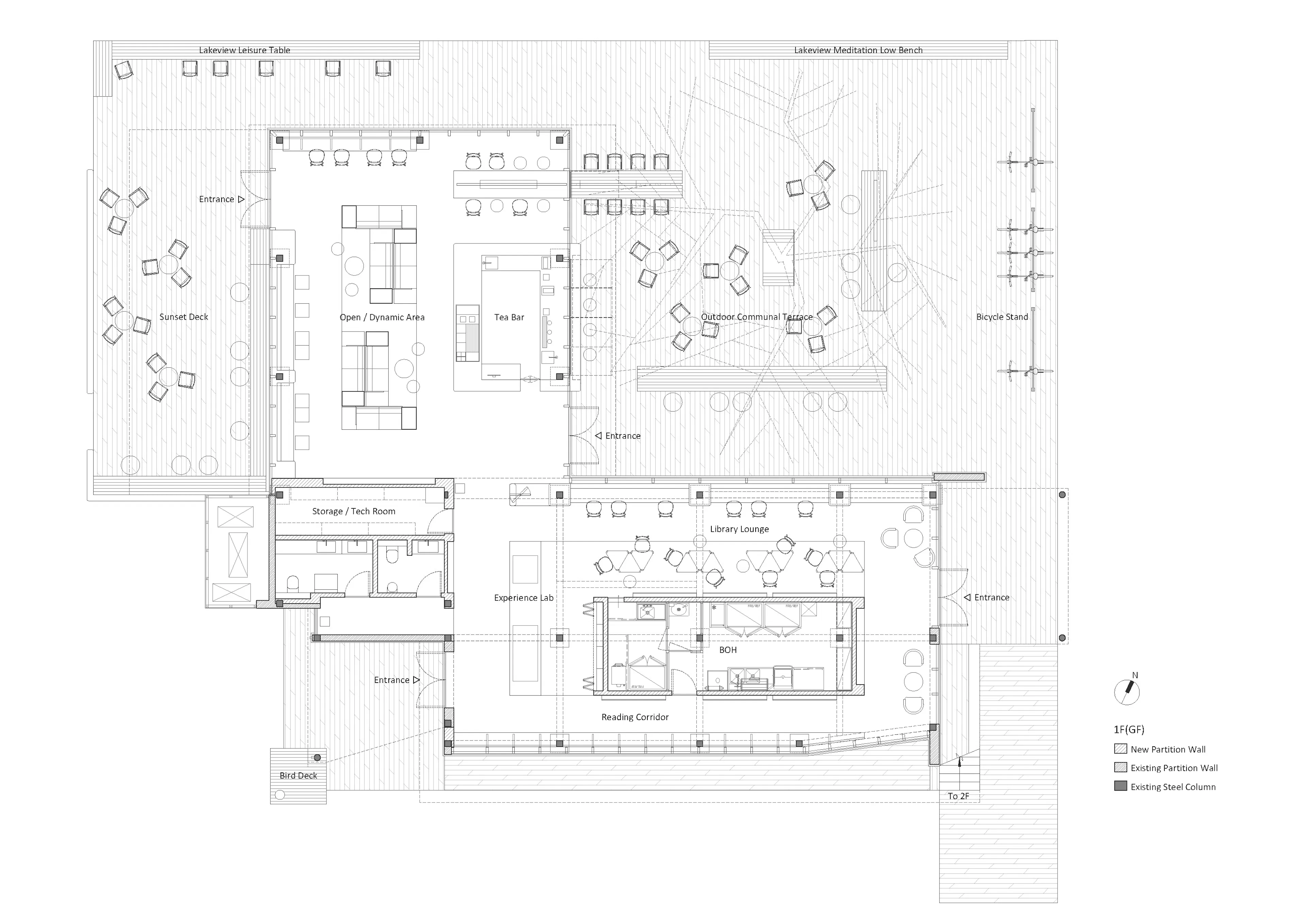
Bailuzhou Park, located in the center of Xiamen, is an important recreational spot for residents. The Yundang Lake surrounding the park was originally connected to the sea and is now an inner lake. The project site is one of the ten auxiliary buildings in Bailuzhou Park. The project is situated on a lakeside slope with two volumes arranged in an L-shape, both facing the terminalia mantaly on the terrace and the lake view. Surrounded by trees and connected to the park's walking paths, the site offers a multi-layered space that includes landscape, architecture, and interior on an urban scale. We drew inspiration from Western philosophy and attempted to address the challenge through the concept of "leisure" in this project. Aristotle wrote in "Politics": "Play is for the sake of work, while work is for the sake of leisure." The context here is that ancient Greeks measured life by leisure; to them, work was simply non-leisure. And there's a distinction between leisure and play; play represents recreational activities to escape from work, while leisure denotes a calm state to observe and listen to the world. From this, one can discern that the concept of "leisure" offers a deeper understanding of the concept of "boundaries." At this juncture, human beings themselves become the goal, and boundaries no longer manifest in a negative form. Thus, in this project, by emphasizing the concept of leisure, theoretically, we aim to actively reflect on the relationship between nature, humans, and commercial spaces, intending to break the general thought confines of commercial spaces that seek to escape the mundane and create an aesthetic utopia. Practically, the design seeks to find the intersection of the site's potential, the designer's subjective emotions, and the brand's core. Starting from the concept of boundary-leisure, we aim to shape a commercial space with a richer core, attracting the public with the beauty of dynamic eternity. With a space conducive to leisure as the key tone, the design began by examining the relative relationships among various spatial elements. We analyzed the macro relationship between the site and its surrounding environment, sorted out the different meanings that might arise from the site boundaries, and combined it with the brand core of the tea space that emphasizes spiritual experience to set up different levels of areas.
Collaborators
1














































































