Bedford Barn Renovation and Addition
SPG Architects
Bedford, United States
- Year
- 2023
- Category
- Residential > Residential Adaptive Reuse Project
- Type
- Residential
- Firm
- SPG Architects
- Location
- Bedford, United States
- Award
- A+ 2025 · Popular Choice

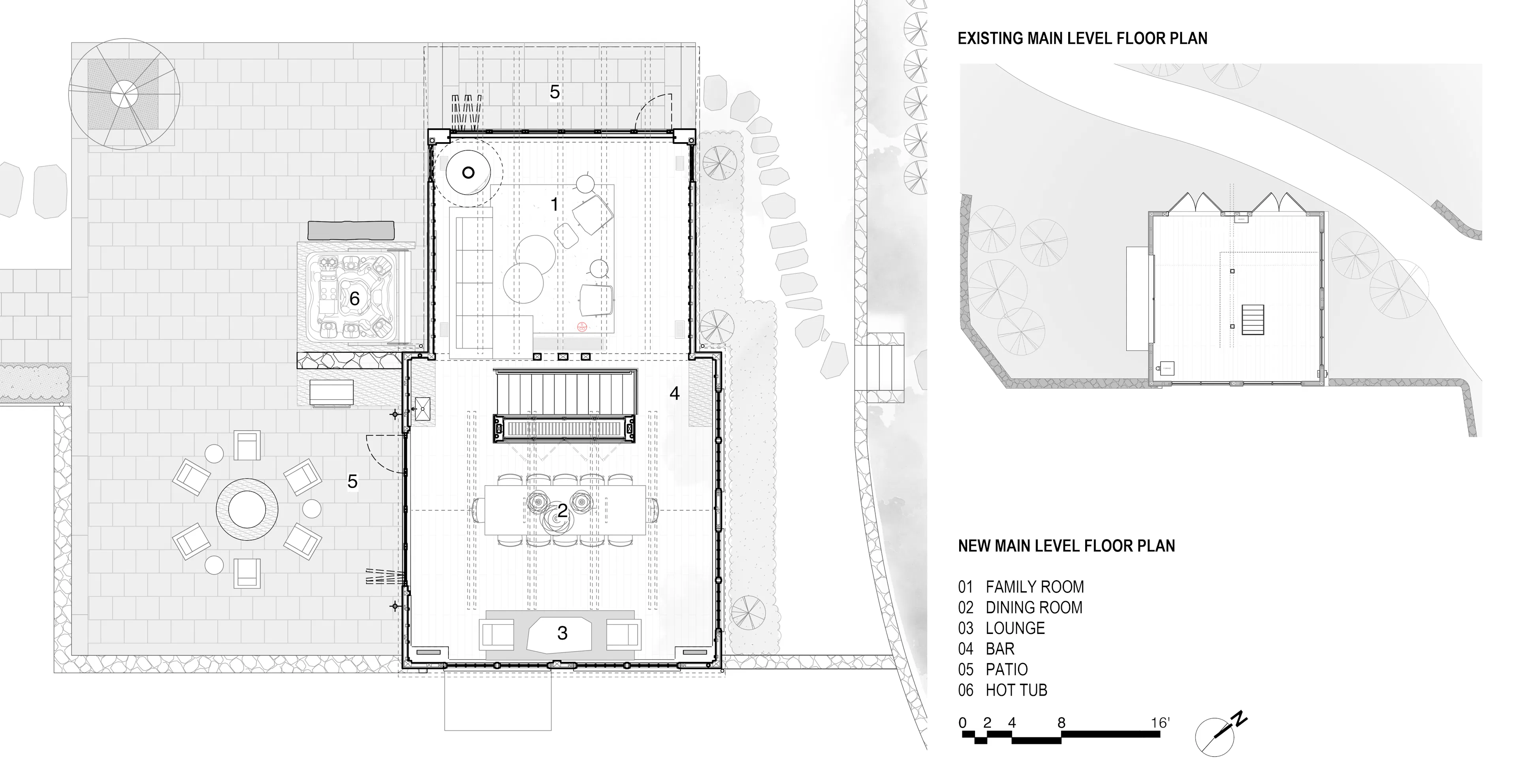
When acquired by the current owners, this 19th-century barn, designated as a significant structure by the Bedford (NY) Historic Building Preservation Commission, was structurally compromised and underused as a storage and utility building on the property of an adjacent 18th-century farmhouse. The barn has been reimagined as an extension of the property’s family living space. While the restored main house serves most of the family’s needs, the barn, with its more voluminous and dramatic open space, provides the opportunity for supplemental and larger gatherings. The original 1150 SF historic structure was preserved, structurally stabilized, and weatherized. A modest 400 SF addition, with large glass expanses bringing in natural light, connects the interior with the bucolic setting and is purposefully distinguished from the original historic barn. Working closely with the Bedford HBPC, the public-facing two-story structure and stone retaining wall were carefully restored and maintained the original massing, materials, and colors, while the addition incorporates a metal standing-seam roof in contrast with the cedar shake roof of the original barn. The roofline picks up the slope of the historic barn and then cants upward to allow for an uninterrupted expanse of modern operable glass doors that fully open to the barn’s pastoral site. Together, the original structure and the modern addition accommodate a large seating & media center, a 12-person dining area, and, on the lower level, a billiards room. In addition, a custom glass and blackened steel wine tower provides a dramatic visual focus for the soaring barn interior. The original timber frame structure is visually preserved and enhanced with new and contrasting tongue-and-groove surfaces, and at the original western wall, the timber frame is left intact so that the historic barn’s original footprint is memorialized in the reimagined interiors.
Collaborators
1lead


























