Berkeley Chess School
Rangr Studio
Berkeley, United States
- Year
- 2024
- Category
- Concepts > Architecture +Learning
- Type
- Cultural
- Firm
- Rangr Studio
- Location
- Berkeley, United States
- Award
- A+ 2025 · Special Mention

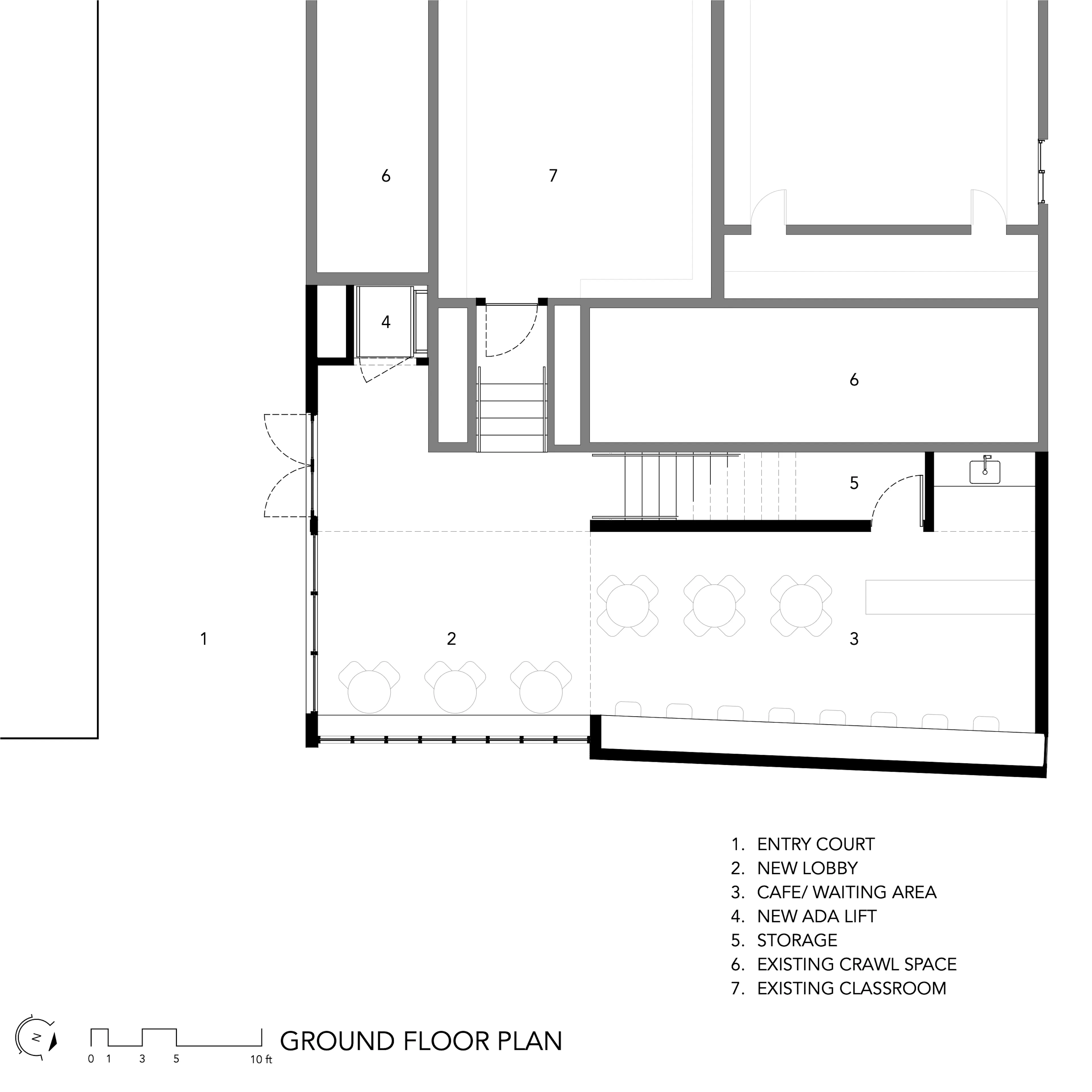
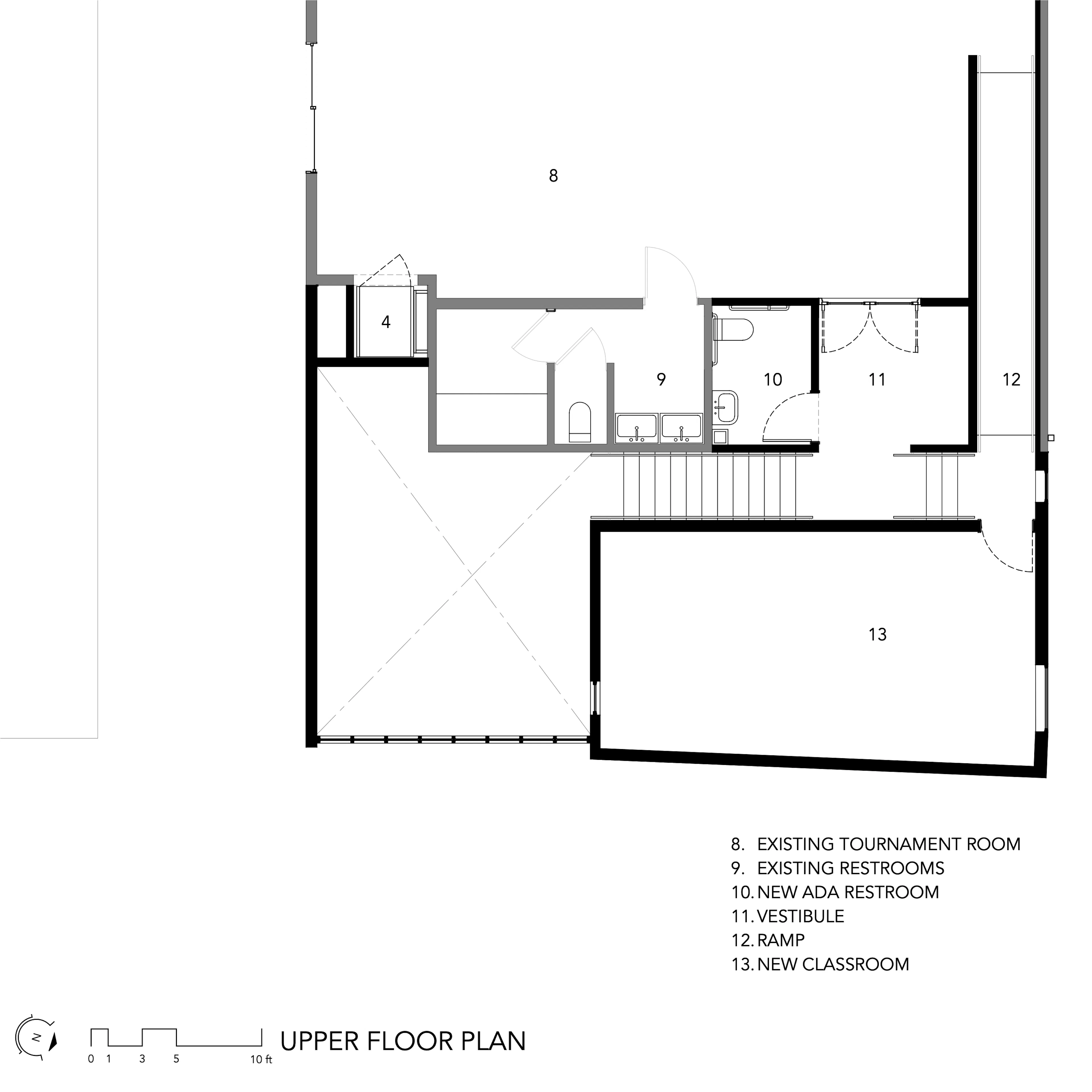
Berkeley Chess School was founded in 1981 as an after-school program. It has grown today to teach 7,000 children a year in the Bay Area, and has produced an unmatched three grandmasters. The founder's primary goal, however, has always been to empower children by teaching them chess, a predictor of future success in STEM subjects. The school teaches for free where students would not otherwise have access to such programs, holds low-cost summer camps and Friday night classes for kids throughout the year. BCS has been using teaching chess as a tool toward greater social equity for 40 years. Rangr Studio’s addition to the Berkeley Chess School’s existing building provides ADA access, a cafe and new classroom. To stay within the non-profit’s budget, so we got to thinking “what can we do with small (inexpensive) glass?” The idea of a chessboard facade came immediately to mind. Inexpensive to build, a storefront wall uses ordinary tinted and translucent panes of glass to create the image of a chessboard. The schools identity becomes present at an urban scale, and the window transcends being a signifier-- it becomes a spatial element that dramatically announces the building's use. Visitors, students and teachers enter the building at the side of the facade, behind the chessboard window, metaphorically and literally entering the world of chess.
Collaborators
1lead














