Betaworks
Desai Chia Architecture PC
New York, United States
- Year
- 2015
- Category
- Commercial > Coworking Space
- Type
- Commercial
- Firm
- Desai Chia Architecture PC
- Location
- New York, United States
- Award
- A+ 2017 · Finalist

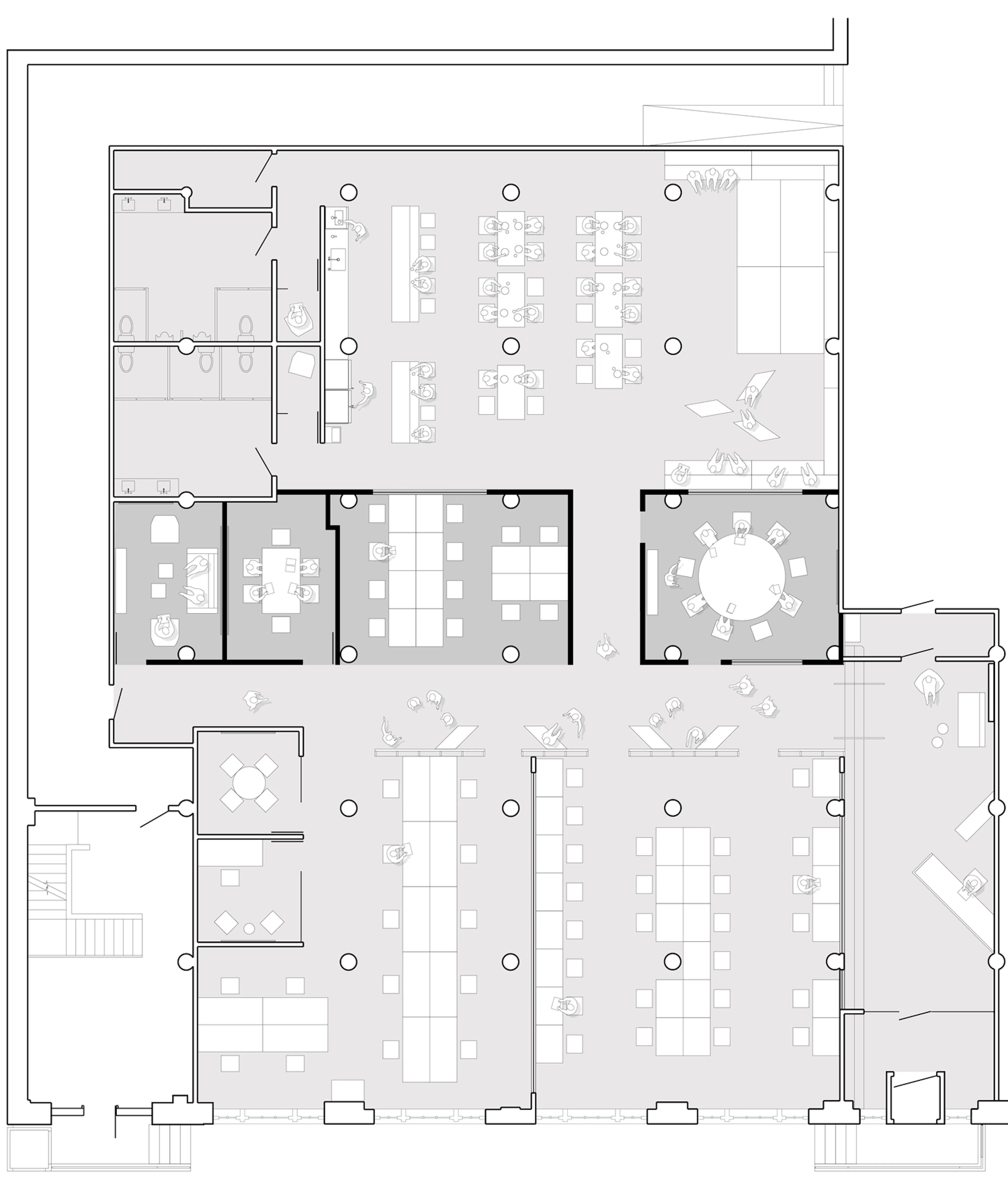
For Betaworks, an incubator for many innovative tech start-ups, we designed a place where creative ideas could be tested throughout the company in a range of venues. We created areas for “work” and “play” with a “communication street” on each floor- it's populated with whiteboards, seating benches, & display cubbies for informal meetings & presentations. The "event space" and cafe support ad-hoc & TEDtalk-type events that allow start-ups to overlap, brainstorm & collaborate. AWARDS Architizer A+ Awards Finalist NYCxDesign Award MakeItWork Award CONSULTANTS MECHANICAL Rodkin Cardinale Consulting Engineers LIGHTING Christine Sciulli Light + Design MILLWORK Desciencelab CONTRACTOR Cora Construction PHOTOGRAPHER Mark Craemer Credits: - Rodkin Cardinale Consulting Engineers - MEP/S Engineer - Simon Rodkin - Fairdinkum - AV + IT Consultant - Christine Sciulli Light + Design - Lighting Designer - Christine Sciulli - Cora Construction - General Contractor - Quite Franklyn - Graphic Designer - RIP NY - Code Consultant - Desciencelab - Millworker - Simrel Achenbach
People
1Collaborators
4Rodkin Cardinale Consulting Engineers
collaborator
collaborator
Christine Sciulli Light + Design
collaborator




























