Bronx Children's Museum
O'Neill McVoy Architects
The Bronx, United States
- Year
- 2022
- Category
- Institutional > Educational Interiors
- Type
- Cultural
- Firm
- O'Neill McVoy Architects
- Location
- The Bronx, United States
- Award
- A+ 2023 · Popular Choice

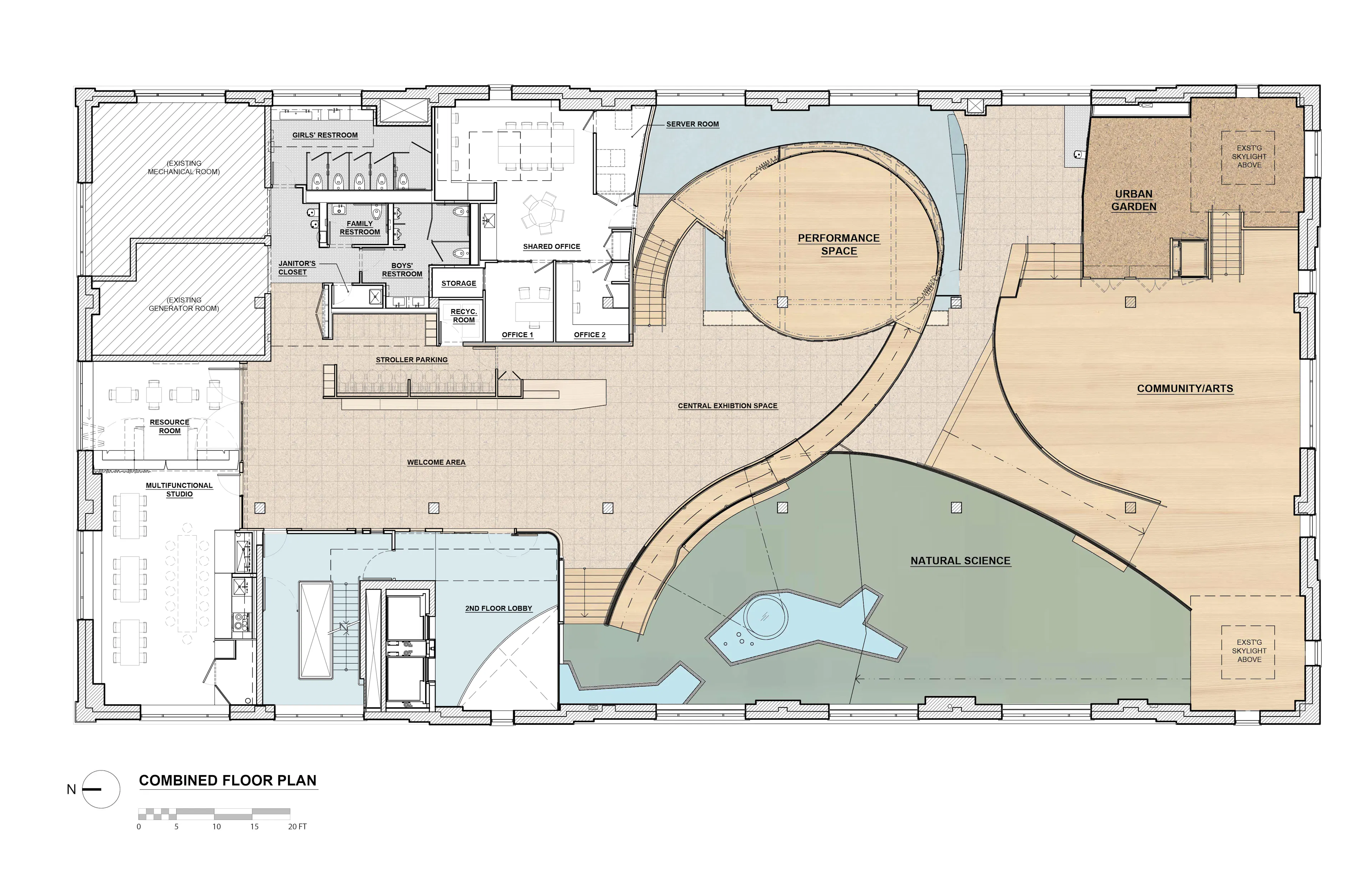
CONCEPT Opened December 2022, the Bronx Children’s Museum engages children with urban culture and the natural world. Sited on the Harlem River, the Museum’s design catalyzes the site’s position between city grid and tidal river with an architecture of organic flow inside the rectangular frame of a 1925 historic powerhouse. With the aim to create a ‘space for imagination’ the design is inspired by Jean Piaget’s Child’s Conception of Space. Before learning Euclidean space, a child starts by building up relationships such as proximity and separation, order and enclosure, continuity, and openness. The curving, organic geometry shapes a new kind of space unlike the city's cellular rooms and street grids, connecting Bronx kids to the experience of the natural landscape and waterfront. SPACE + COMMUNITY The first facility in the Bronx dedicated to young children, the Museum is an adaptive re-use transformation of the decommissioned Bronx Terminal Market Powerhouse. The museum is entered via a double-height lobby facing the river. Once on the second-floor visitors are greeted with a tall, light-filled, open exhibition space with views to the river and the city. The Museum features interactive exhibits where families play, learn, and connect to the natural and cultural resources in the Bronx through art, music, dramatic role-play and scientific exploration. Designed from a child’s vantage point, the space feels open and accessible throughout. The movement up and through the space via ramps, delineated by partial height exhibit walls, creates focused areas of interest. Curved wooden and translucent acrylic partitions diverge, reconnect, and spiral to create both continuity and separation between the exhibition spaces. Each successive exhibit area steps up, creating a sense of discovery for the kids, and elevating the Waterways exhibit platform to the windowsills allowing views of the river outside. The path extends further up across a bridge to the ‘Cloud’, an interactive performance mezzanine. MATERIALS + SUSTAINABILTY The LEED Gold project uses natural & recycled materials throughout: wood, stone, cork, glass, recycled acrylic. Walls, guardrails, stairs, benches, doors and elevated floors are made of FSC certified cross-laminated timber (CLT), fabricated with advanced digital technology allowing for varying radii arcs to form organic space, the first use of curved CLT in the U.S. The CLT panels were fabricated using custom molds, not unlike how Charles and Ray Eames made their breakthrough laminated plywood leg splints in 1943. Large wall and guardrail interlocking panels, many with pebble-shaped windows, were molded and CNC-milled to exact size; stair risers, treads and stringers were pre-cut; sinuous benches of varying heights to accommodate all ages were laminated, all in the factory, allowing quick assembly on site. Translucent partitions and guardrails are made of etched recycled acrylic, softer to the touch than glass. The CLT panels were site routed to structurally interlock with the acrylic. Fabric ducts, designed for clean manufacturing facilities, are suspended from the sky-blue acoustical plaster ceiling as “clouds”, the first use of such ducts in a museum. “Today marks a new chapter for all Bronx children. Using a framework of early childhood enrichment and social justice, the Museum provides bridges to imagination, ladders to knowledge and safe places for children to have fun and just be children.” Carla Precht, Founding Executive Director
Collaborators
1












