Calling Academy Stellenbosch
SALT Architects
Stellenbosch, South Africa
- Year
- 2022
- Category
- Concepts > Architecture +Low Cost Design
- Type
- Educational
- Firm
- SALT Architects
- Location
- Stellenbosch, South Africa
- Award
- A+ 2024 · Jury Winner

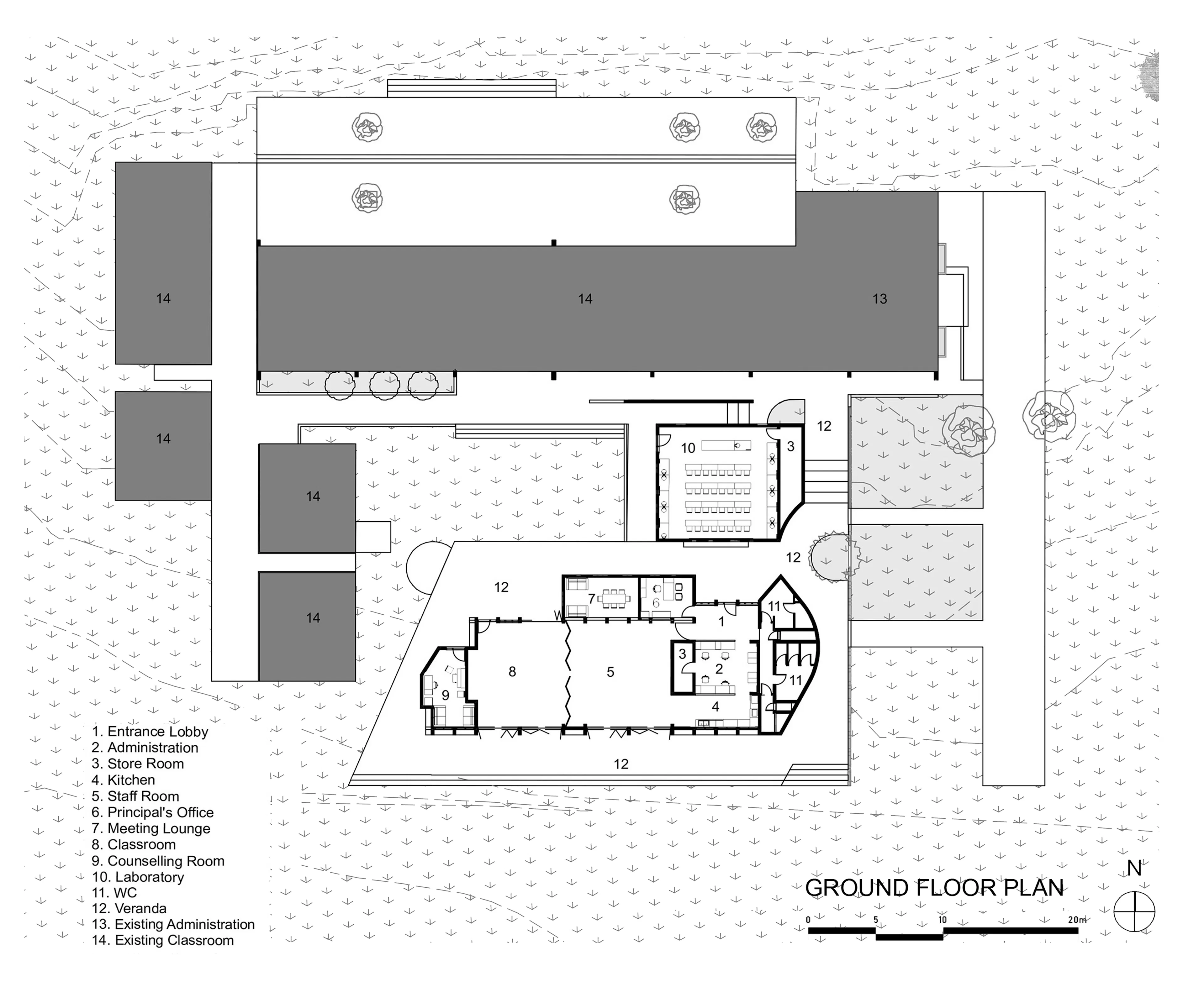
The new section of Calling Academy NPO was meticulously designed to enhance functionality and improve the quality of spaces, aligning with the organization's mission of providing affordable, top-quality education in South Africa. The design approach introduces a fresh narrative by integrating contextual forms and materials, while seamlessly incorporating various flexible functions under a continuous tiled roof. These additions breathe new life into the institution without altering the original school structure. The eastern façade stands as a distinctive feature associated with the institution. Upon arrival, a concrete-block screen with three openings serves as a gateway, blurring the boundaries between indoors and outdoors. This welcoming foyer connects visitors, teachers, and learners, not only signaling the new front façade but also providing clear orientation within the facility. Positioned between the original school building and the sports field, the new section is conceived as a pavilion overlooking the field and its picturesque surroundings. The southern side features a widened roofed terrace with step-sized seating that leads down to the sports field. This versatile space serves as an assembly area, spectator zone, or overflow space for adjacent rooms. By removing a divider, the staffroom and flexible classroom can be combined into a venue capable of accommodating over 150 people. The venue spills out onto the verandas, creating opportunities for a wide range of functions. It also doubles as a community event space available for rent, generating additional income for the organization. Natural light optimization is prioritized throughout the design. In the staffroom, where direct access to a northern wall for windows is unavailable, a skylight made of polycarbonate tiles illuminates the space. The use of OSB board for the ceiling not only contributes to cost-saving measures but also provides acoustic absorption while aligning with the palette of raw materials, creating a serene atmosphere within the internal spaces. The new additions introduce various levels and volumes, establishing a series of courtyards and outdoor spaces for learners to pause, observe, gather, or socialize. These thoughtful design elements enhance the overall learning environment and contribute to the Academy's commitment to delivering excellent education in a conducive setting.
People
1Collaborators
1lead


















































