Coco Handmade
OYTT Design
- Year
- 2024
- Category
- Hospitality > Restaurants (S <1000 sq ft)
- Type
- Commercial
- Firm
- OYTT Design
- Award
- A+ 2025 · Special Mention

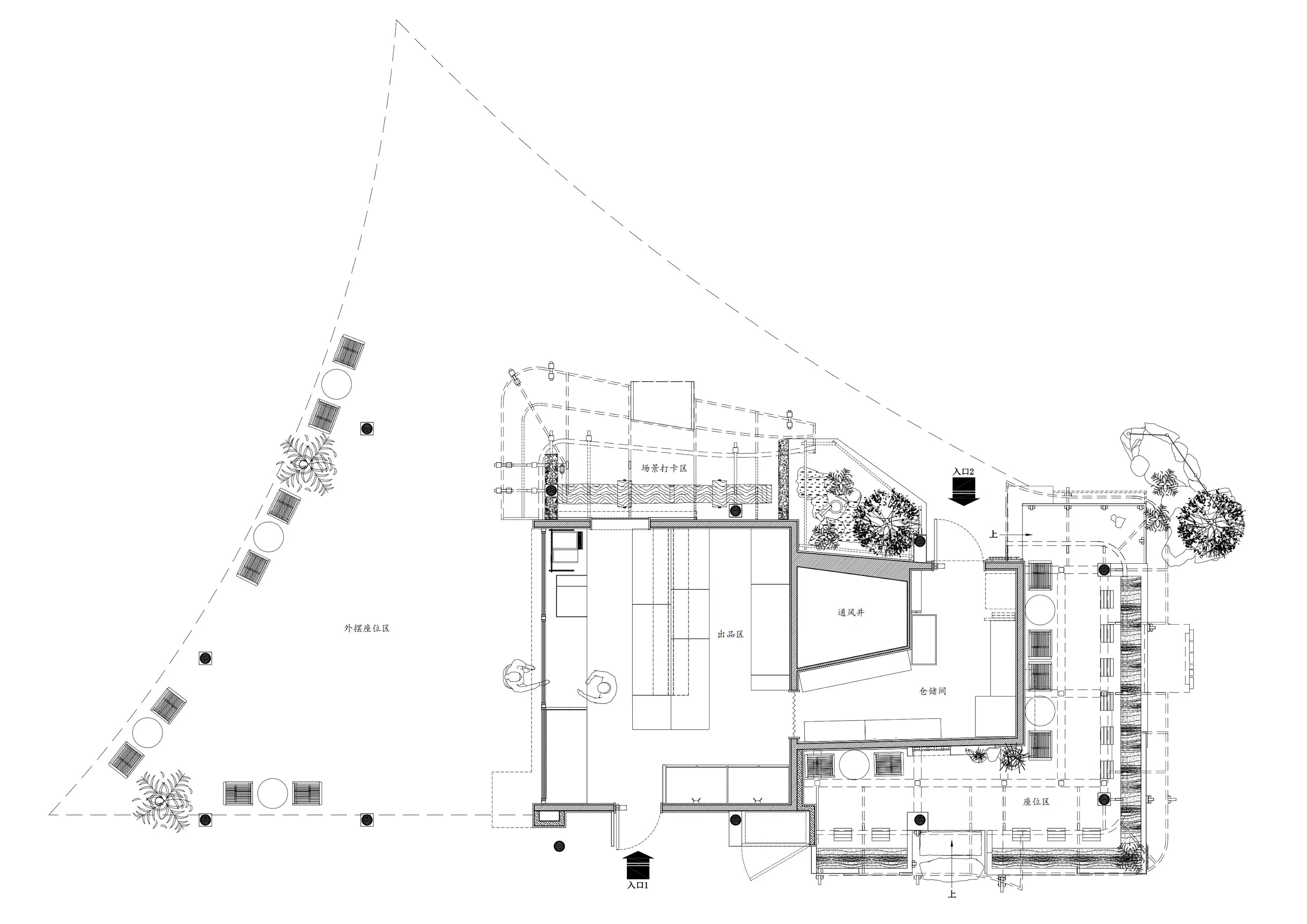
Located by the tranquil waters, Suzhou Xinghe Square thrives as a vibrant hub where diverse culinary traditions meet a broad range of shopping options, all contributing to a refreshed urban aesthetic. This transformation offers a leisure experience that effortlessly soothes both the mind and body. The creation of "Coco Handmade" resembles a serene glade within the steel and concrete, where a dash of gentle tea aroma softly smooths away the anxieties of life. The project draws inspiration from nature, seamlessly integrating traditional handcrafting with modern business practices while embracing the brand philosophy of "synchronized existence, perfect for tea time." Its design thoughtfully responds to the unique characteristics of the space, creating a slow-paced atmosphere that stands in stark contrast to the frenetic pace of urban life, providing a serene escape from the noise of the outside world. Situated atop the plaza, the main building seeks to capture the essence of simplicity through its diverse spatial forms. Encircled by pedestrian flows on three sides, the interplay of reflections between buildings and the rhythmic placement of wooden blinds create a mesmerizing interplay of light and shadow. This unpretentious charm, nestled among lush greenery, draws passersby to pause and experience the enduring, effortless beauty of rural landscapes. The store is designed with multiple entrances, inspired by the concept of a tea pavilion, which seamlessly integrates the indoors with the outdoors, offering an environment that envelops visitors in a relaxed, natural texture. To craft a captivating spatial experience, the designers have cleverly manipulated sightlines and movement patterns, with an Instagram-worthy area created through dramatic scene-setting that instantly transports people into a sanctuary hidden within the city. The vivid duck sculptures narrate the serene and leisurely pace of country life, dynamically advancing the spatial narrative through a blend of stillness and motion. Aged wood and bamboo weaving infuse the textures with the warmth of nature, sketching a minimalist elegance that echoes a return to simplicity. As sunlight filters through, the space is animated by a patchwork of light and shadow, fostering a rhythmic transparency that enhances the fluidity between indoor and outdoor environments. Light stone slabs and deep gray crushed gravel form a tranquil pathway, complemented by old-fashioned benches and rustic window grilles that evoke a nostalgic atmosphere. Enclosed by lush vegetation and rugged walls, tea guests find solace in a quiet corner. In these moments of waiting, they watch as the city’s sharp edges blur into hazy, dreamlike silhouettes, offering a momentary nourishment and peace to their tired souls. Tea culture transcends mere gastronomic satisfaction, evolving into a deeply ingrained social ritual within everyday life. The external seating area introduces a modern, streamlined aesthetic with its assorted arrangement of tables and a staggered canopy design that clearly demarcates the shop's boundary. This setup not only enhances the spatial depth but also organically segments areas for activities and relaxation, seamlessly integrating into the animated ebb and flow of daily life. The serving area continues this theme of geometric innovation, with stone and metal harmoniously interplaying to retain a contemporary feel while also adding a touch of rustic whimsy to the space. The interior design adheres to traditional architectural principles, allowing the simplicity of the space to showcase the natural wear it has endured, thus recapturing an idyllic haven as envisioned in the collective imagination. Here, hardness and softness coexist, curves and straight lines intersect, and solids and voids blend seamlessly. This interplay of materials and forms gently cultivates a serene and tranquil life aesthetic, where the profound art of tea drinking finds a subtle harmony between the ancient and the modern. The design of the half-wall fully opens up the interior space to the street, enhancing both the interactivity and fluidity of the area. It cultivates a tranquil and beautiful atmosphere, offering a profound sense of closeness to nature through endless visual connectivity. Vegetation artfully screens the interior from the exterior, while soft lighting delicately defines the silhouettes of ancient windows. Within this gentle and fitting setting, one may either relish a drink in solitude or engage in casual conversations with a few good friends, showcasing the varied joys of gathering. Informed by a keen understanding of modern lifestyles and innovative ideas, this project features exquisitely handcrafted tea beverages and spaces filled with poetic aesthetics. It constructs a soothing retreat for the bustling urban dweller, offering emotional comfort and enrichment, and creates a unique journey of dream exploration.
Collaborators
1lead

















