Columbia University Northwest Corner Building
Moneo Brock
New York, United States
- Year
- 2010
- Category
- Institutional > Higher Education Institutions & Research Facilities
- Type
- Educational
- Firm
- Moneo Brock
- Location
- New York, United States
- Award
- A+ 2013 · Finalist

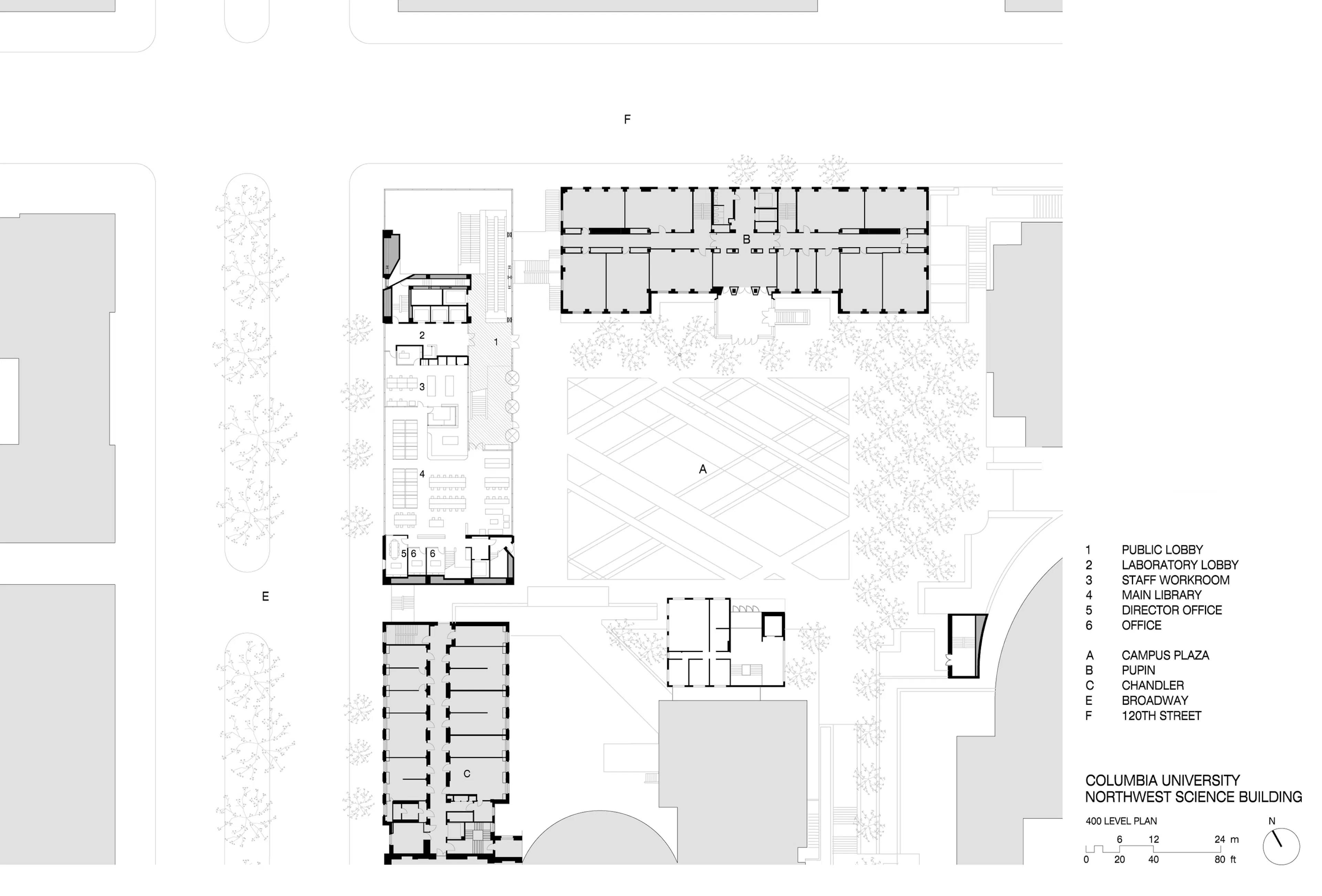
Columbia University, one of the world’s most prestigious institutions for scientific research, further expands its research capabilities with the addition of this new building dedicated to the research in the fields of Biologic Sciences. Located on the Northwest corner of the University’s historic Morningside Heights Campus, originally designed by McKim, Mead and White in 1897, the building is integrated into both the campus plan and the New York City street grid. Working as the Project Design Architect with Rafael Moneo, Moneo Brock Studio managed the project through all stages of the design process. The building provides over 45,000 sf. of laboratory space in addition to over 20,000 sf. of classroom, office and study space. The building also includes a 13,000sf research library, a 170-seat auditorium, a public café and a new ‘game day’ entrance to the University’s Basketball and Volleyball Gymnasium. Constructed above the existing Francis S. Levien Gymnasium, the project posed great structural challenges in needing to span over the 125 feet wide original facility. This structural feat became the defining gesture of the project. The structural frame is represented on the façade through the application of aluminum fins to areas not covering that structure, with the fins oriented in parallel to the framing elements to create a patchwork of light and shadow. The building's campus facade is almost entirely glass, revealing the interior workings of the building and emphasizing openness and a connection to the campus community.
Collaborators
8lead
Davis Brody Bond, a Page Company
collaborator
Heintges Consulting Architects & Engineers P.C.
collaborator
collaborator
collaborator
collaborator
collaborator
collaborator
Products
3Horizontal Colorseal
EMSEAL Joint Systems, Ltd.
Backerseal
EMSEAL Joint Systems, Ltd.
Colorseal®/Seismic Colorseal
EMSEAL Joint Systems, Ltd.
















