Concrete House
Formwerkz Architects
- Year
- 2024
- Category
- Details > Architecture +Concrete
- Type
- Residential
- Firm
- Formwerkz Architects
- Award
- A+ 2025 · Finalist

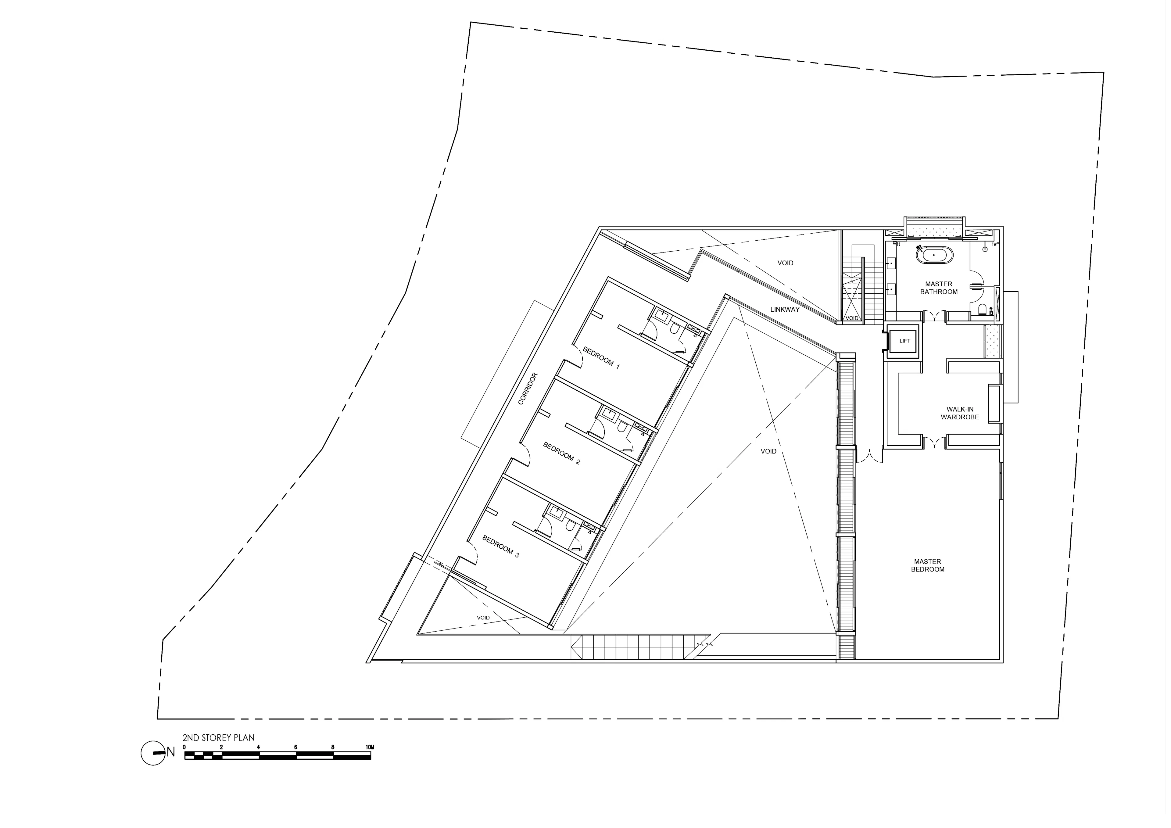
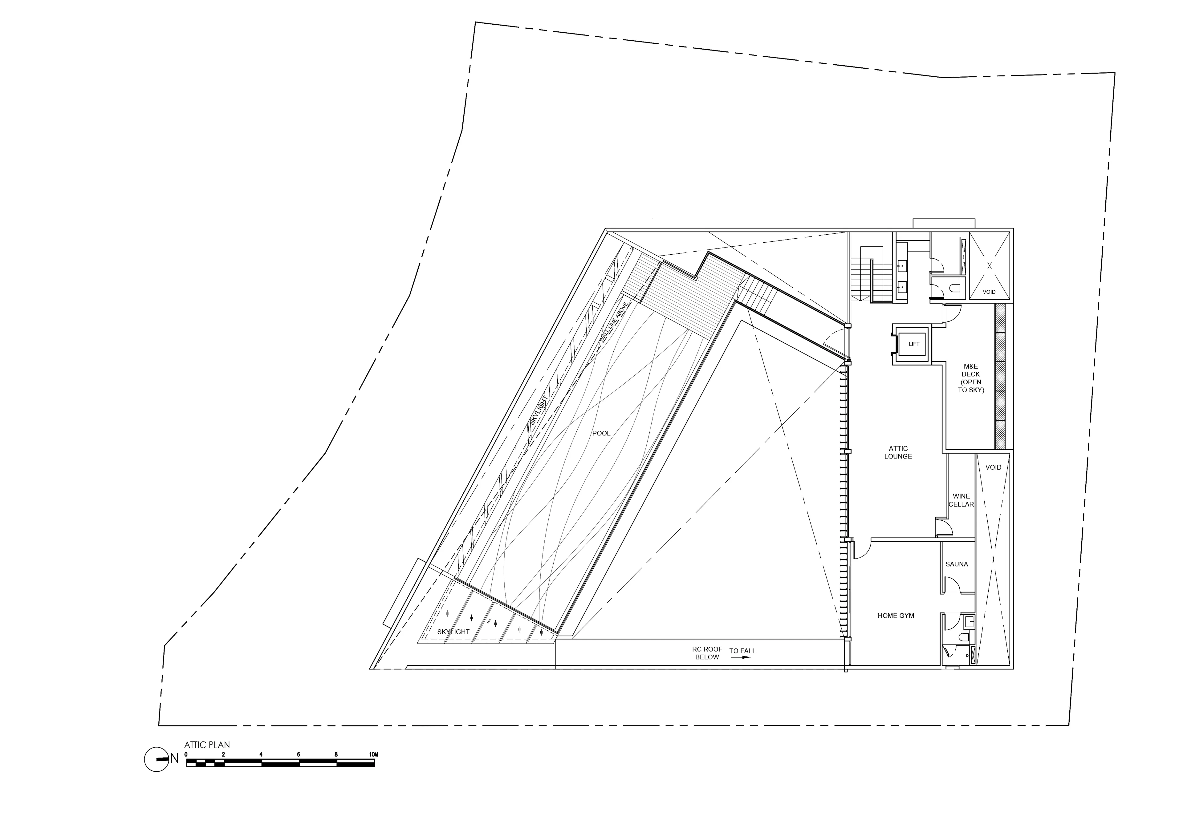
Sited on a corner plot along a major road and opposite a popular hawker centre in Singapore. The two main aspects of the house are less than desirable, having to combat the noise of the traffic of the main street and the service road of the food centre. The design has to mitigate the challenges of a direct western sun exposure and lack of privacy from the busy pedestrian walkways along its boundaries. We envision a simple, impervious external form to enclose an internal garden oasis where all the interior spaces could look into. Almost like two worlds; on the exterior, a brutal, almost desert-like minimalist landscape. Within, a burst of life and animated scenes in the main courtyard and the series of pocket gardens that the internal circulation weaves through. The garden design presents the reinforcement of these two worlds; The external garden - formal, minimalist and ordered to contrast the vibrant and slightly chaotic neighbourhood. Within, the main terraced courtyard and the 2 smaller pocket gardens employed a richer and more varied planting palette. These gardens depict and engender life, attract birds and butterflies, influence the way daylight and rain falls within and dance with the breeze that course through this fortified domain. The house is finished in off-formed concrete. A very robust material, both the structure and the finish at the same time. It is perfect in buffering the noise and creating a comfortable micro-climate within (when deployed appropriately) The pattern on the concrete was an abstraction of the intricate English lace, responding to the Client’s obsession with Victorian Style interiors. Modular variations were derived from computational design based on a diagrid and the CNC milled onto the plywood formworks for the concrete casting.
Collaborators
1


























