Container into Classroom - German School of Budapest
Bánáti + Hartvig Architect
Budapest, Hungary
- Year
- 2023
- Category
- Institutional > Primary and High Schools
- Type
- Educational
- Firm
- Bánáti + Hartvig Architect
- Location
- Budapest, Hungary
- Award
- A+ 2025 · Special Mention

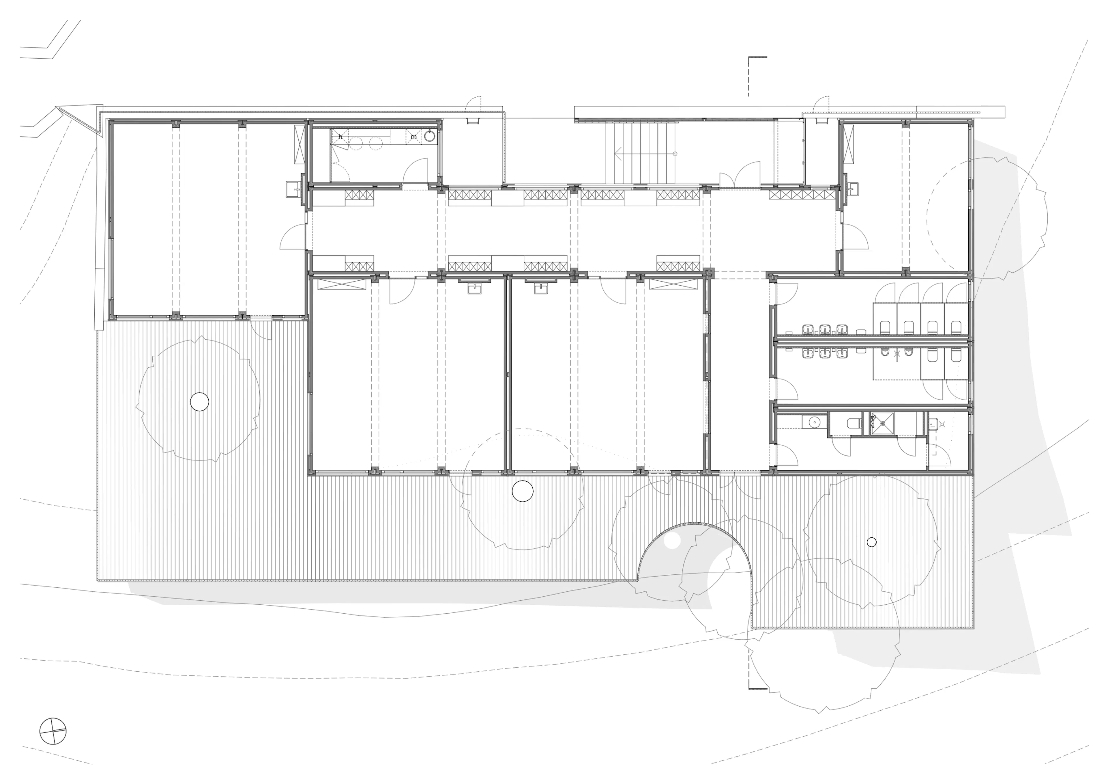
The German School of Budapest is so successful that the need to expand its building arose once again. Due to the start of the new school year, a rapid response was required, so developing an existing container building to a higher quality, with an increased capacity and an architectural character befitting the built and natural environment was envisaged. Moreover, this solution fulfilled the need to minimise the impact on the environment during construction. The result is an economically and ecologically sustainable building. The relationship of the school and Bánáti + Hartvig Architects goes back many years. BH designed the main building and its extension, and, on the strength of this, they were also commissioned to carry out the current work. In every phase, the designers thought along the same conceptual lines, thereby creating a consistent building complex. This is evident in the appearance and structure of the different parts of the building. The design of the form of both the main building and the new container building reflects the topography of the densely wooded site with different levels. The entrances and most of the communal areas and service rooms are on the side which adapts to the steep edge of the site, while the classrooms open onto nature and large windows enhance this experience. The building has one group room, three classrooms, an assembly area, a kitchenette and toilets. Due to the features of the terrain, the container building welcomes the children down a short flight of steps from the playground level. The new building was designed for young pupils in Year 0, hence the new unit did not need to be closely linked to the main building housing school-age children. The container building was given an ideal position on a more sheltered part of the site close to the trees, in the vicinity of the playground. The proximity of the main building caters for all the additional functions. The modules were given the tomato red colour matching the highlighted features of the main building, while simplicity typifies the interiors, providing space for colourful furniture with a view of the woods. Surveying the surrounding trees to ensure that they would not be threatened by the development was a major consideration in the design. This study of the position and condition of the trees influenced the planning, thus the building was located amongst the existing trees and the contour of the terrace was made to follow the position of the trees. How did creating a new building unit become sustainable? Although the container building that used to stand there was demolished because it no longer met the school’s needs, its columns were incorporated in the new container building and its other elements were re-used elsewhere. Moreover, as only a minimal amount of concrete was needed to install the new container building, CO2 emissions were drastically reduced. BH measured this and calculated that the amount of CO2 emitted by constructing a building with the same features using reinforced concrete would have taken 101 trees 100 years to offset. Another important criterion was that, were the school to decide in the future to demolish the building and solve the extension of the school in another way, the landscape would not be damaged after the demolition, waste would be minimised and the elements of the container could be reused. The designs have produced a sustainable, appealing building that blends into the built and natural environment, and fully caters for the needs of Year 0 pupils before they start their actual school career as well as their teachers. As in the older wings, the pupils quickly felt at home in the new building and soon came to like it. The German School of Budapest is a prime example of how a building can support the quality of education.
Collaborators
1




















