Country House
IFAgroup
- Year
- 2023
- Category
- Residential > Residential Interiors (<3000 sq ft)
- Type
- Residential
- Firm
- IFAgroup
- Award
- A+ 2025 · Finalist

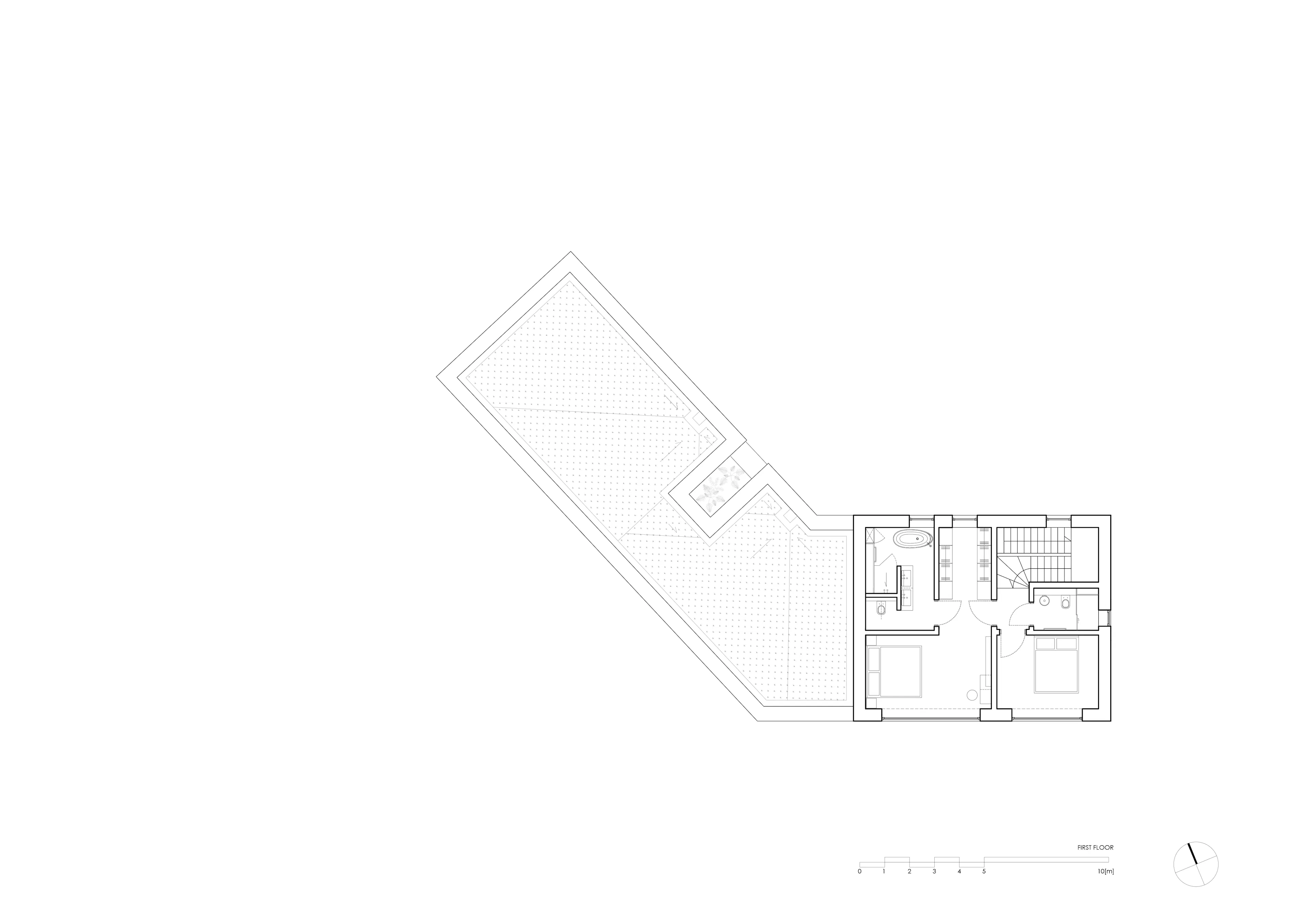
Nestled in a picturesque village in northern Poland, our house harmoniously integrates with its serene lakeside setting while respecting the scale of the surrounding architecture. Set on an expansive 8000 m² plot, the design prioritizes a low profile, ensuring it complements the quaint gable-roofed homes nearby. Although it was possible to create a large form, such a larger object would spoil the character of this place. The site’s unique topography, situated 2.5 meters below the road level, informed our approach, leading to a subtle design that blends seamlessly with its environment. The building’s elevation is thoughtfully structured, with a portion rising just 1.4 meters above ground due to underlying peat layers. This strategic design allows the house to be partially submerged while providing necessary warmth through the retaining wall’s buried sections. The use of locally sourced demolition boards from an old barn for the exterior reinforces a connection to the local heritage. Functionally, the design divides the home into distinct zones, featuring both an eastern terrace that offers captivating lake views and a quieter western terrace overlooking the forest. This layout encourages a strong connection to nature, fostering outdoor living. The large window compositions in the sleeping areas echo traditional local styles, while expansive glass panes in communal spaces ensure continuous interaction with the surrounding landscape. Sustainability is integral to our vision, with the building constructed using reinforced concrete and a flat roof that doubles as a green terrace, enhancing insulation and biodiversity. The interior showcases curated furniture and art, accented with vibrant red beams and railings, creating a warm and inviting atmosphere. Overall, this project exemplifies a design that prioritizes context, sustainability, and a profound respect for its natural surroundings, ensuring a lasting positive impact on both residents and the community.
Collaborators
1lead




























