David Rockefeller Creative Arts Center
FXCollaborative
Tarrytown, United States
- Year
- 2022
- Category
- Built > Sustainable Cultural Building
- Type
- Cultural
- Firm
- FXCollaborative
- Location
- Tarrytown, United States
- Award
- A+ 2024 · Finalist

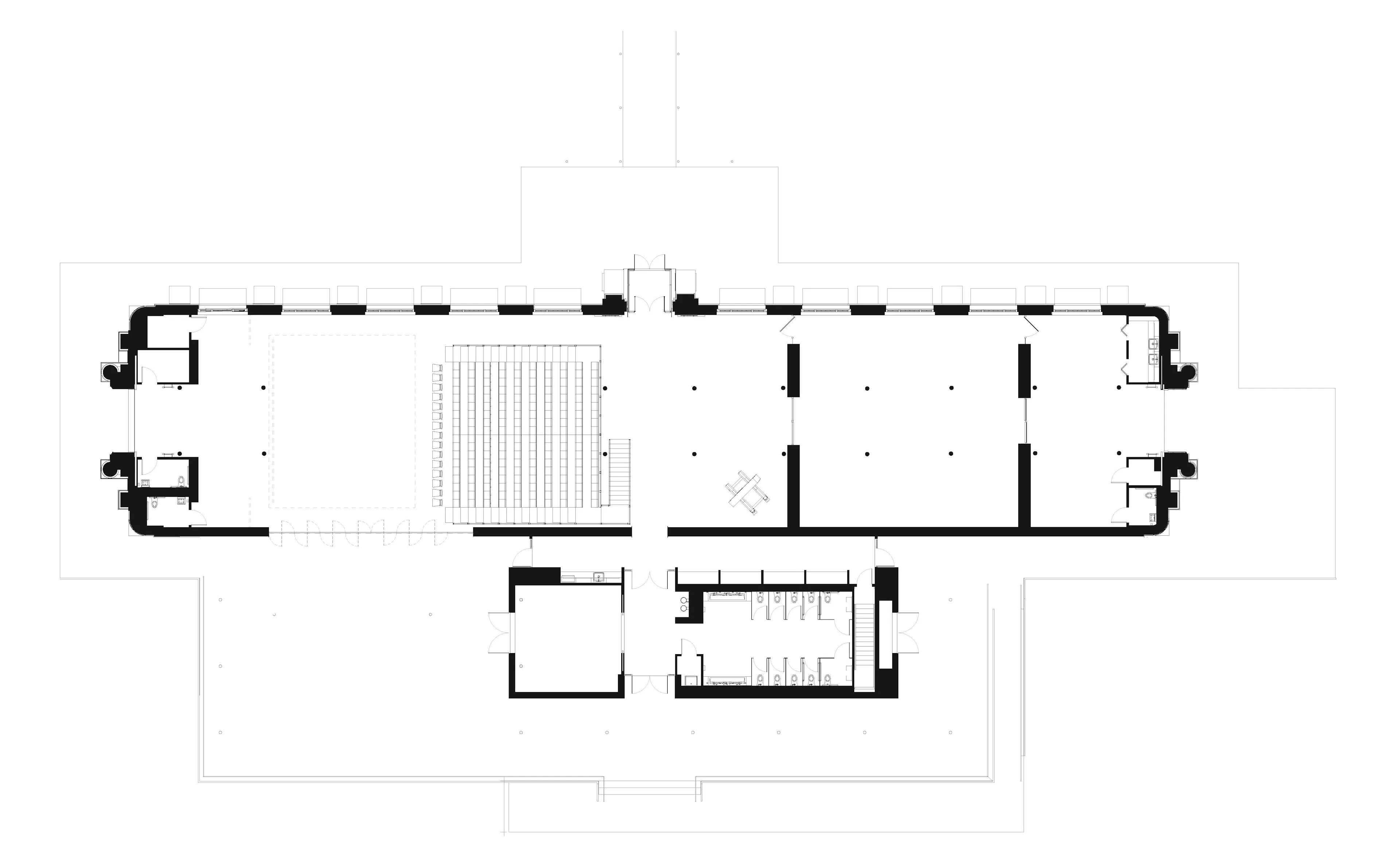
The rehabilitation and adaptive reuse of an orangerie at The Pocantico Center, the historic Rockefeller estate, transforms the former Beaux-Arts greenhouse into a highly sustainable multi-disciplinary arts facility. Built in 1908, the orangerie was conceived as a winter greenhouse for imported orange trees – modeled after the 17th century orangerie at the Palace of Versailles. The monumental scale pavilion is a two-hundred-foot-long symmetrical volume with a twenty-six-foot-high ceiling. FXCollaborative’s transformative sustainable design for the new center was informed by the history and original use of the building, its new role as a home for people and the arts, and the Rockefeller Brothers Fund’s deep concern for the environment. Completed within the guidelines of the National Trust for Historic Preservation, the design reuses as much of the existing structure as possible, expands in an essential and timeless manner consistent with the building’s ethos, establishes new connections to the landscape beyond, and provides flexibility for a variety of arts programming while being deeply sustainable. The project is LEED v4 BD+C Platinum certified with the highest score in New York State and will pursue LEED Zero Energy certification. The efficient electric design achieves more than 50% energy reduction compared to a LEED v4 baseline, resulting in minimal operational energy use and greenhouse gas emissions. An array of photovoltaic (PV) panels on the south side of the building is designed to generate more power than the building uses. A raingarden under the PV array captures all stormwater runoff from the site. Bird-safe glazing is installed in the new entry vestibule to protect the site’s avian species. Healthy and durable materials were used throughout. The Center offers indoor space for year-round events supporting Pocantico’s artist-in-residence program, an artist’s studio and a gallery, and performance space, all while maintaining the historic character of the building. Sustainability The project is LEED v4 BD+C Platinum certified with the highest score in New York State. Mechanical systems were upgraded with energy-efficient all-electric equipment including high-efficiency variable refrigerant flow (VRF) heating and cooling with a dedicated outdoor air system (DOAS) and energy recovery. The efficient electric design achieves more than 50% energy reduction compared to a LEED v4 baseline. An array of photovoltaic (PV) panels on the south side of the building is designed to generate more power than the building uses. A raingarden under the PV array captures all stormwater runoff from the site. The raingarden was planted with native plants that enhance the appearance of the PVs by making them a part of the landscape. No permanent irrigation was used. Bird-safe glazing is installed in the entry vestibule. Healthy and durable materials were used throughout. The team prioritized materials with transparency documentation and best in class properties such as those with optimized Environmental Product Declarations, Health Product Declarations, Declare labels, Cradle to Cradle certifications, FSC Certification and low VOC emissions. A Life Cycle Analysis of the structure and building envelope determined that the design reduced embodied carbon by 33% relative to the same retrofit with standard materials.
Collaborators
1lead











