Davisville Community and Aquatic Centre
CS&P Architects Inc.
Toronto, Canada
- Year
- 2026
- Category
- Sports & Recreation > Unbuilt Sports and Recreation
- Type
- Hospitality + Sport
- Firm
- CS&P Architects Inc.
- Location
- Toronto, Canada
- Award
- A+ 2024 · Special Mention

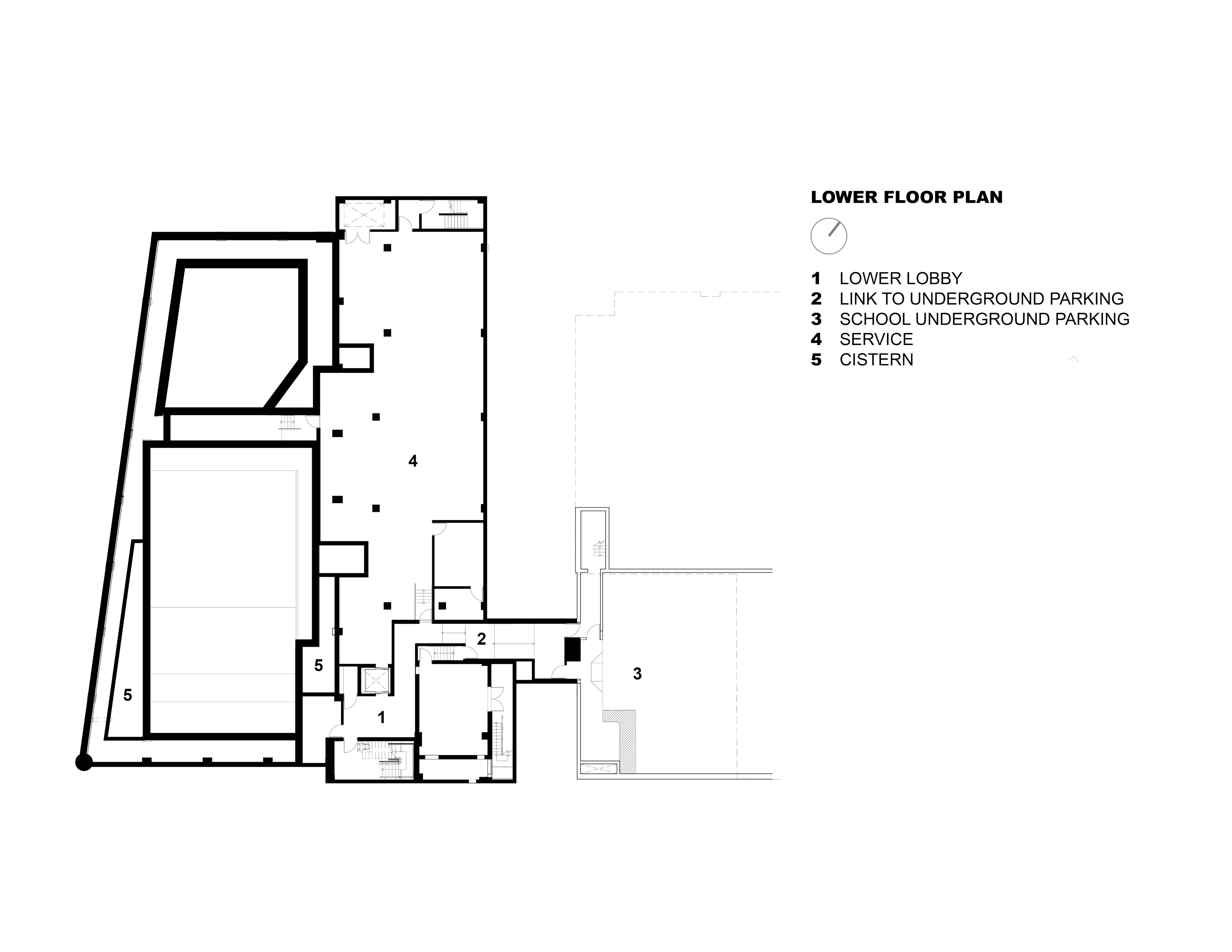
The Davisville Community and Aquatic Centre is conceived as a critical piece of social architecture, leveraging its constrained site and ambitious sustainability goals, to create a dynamic and convivial community hub that acts as a ‘connective tissue’ in a rapidly densifying part of the city. The innovative design targets CaGBC Zero Carbon Building Standard V2 certification, contributing to the city’s larger 2040 Net Zero Emissions goals. The urban design, and architecture, prioritizes connectivity and establishes a powerful link to the adjacent school, creating a key community hub, assisting in unifying the divided neighborhood. The site is located within a large superblock between the established single family home neighborhood to the north and high-rise apartment towers to the south, and soon to be immediately west. The absence of more finely grained mid-block connections through these superblocks renders them impenetrable and exacerbates the physical and social separation between those two predominant housing forms and the people who inhabit them. A key mid-block pedestrian connection is provided, running west of the building, and provides a walkway between Davisville and Millwood Road to the North. The positioning of the natatorium is also purposeful to act as a viewing portal to allow pedestrians a visual connection from Davisville to the leafy green space north of the Centre. The south side of the pool acts as a front porch and engages with the pedestrian realm through the integration of benches and a planter. The main entry to the site is off of Davisville Avenue, and is strategically located for optimal shared use between the Community Centre and the adjacent school. The innovative community hub approach maximizes resources between the public school site and the Community Centre, where students can use the pool facility, active roof, and multi-purpose rooms for enhanced program uses. The community can use school facilities for after-hours use, including the playground/park, underground parking, double gymnasium, and stage. The Centre also physically and visually, but subtly, connects in its campus like approach to the adjacent new elementary school through its scale, massing and selective palette of materials. The yellow frit pattern on the front glazing echoes the yellow accent colors on the Davisville school façade, and the brick at the base of the Community Center ties into the use of brick in the school, as well as in the surrounding residential community.
Collaborators
1











