Dengying Service Site
MUDO Architects
Yancheng, China
- Year
- 2023
- Category
- Concepts > Architecture +Small Projects
- Type
- Cultural
- Firm
- MUDO Architects
- Location
- Yancheng, China
- Award
- A+ 2024 · Special Mention

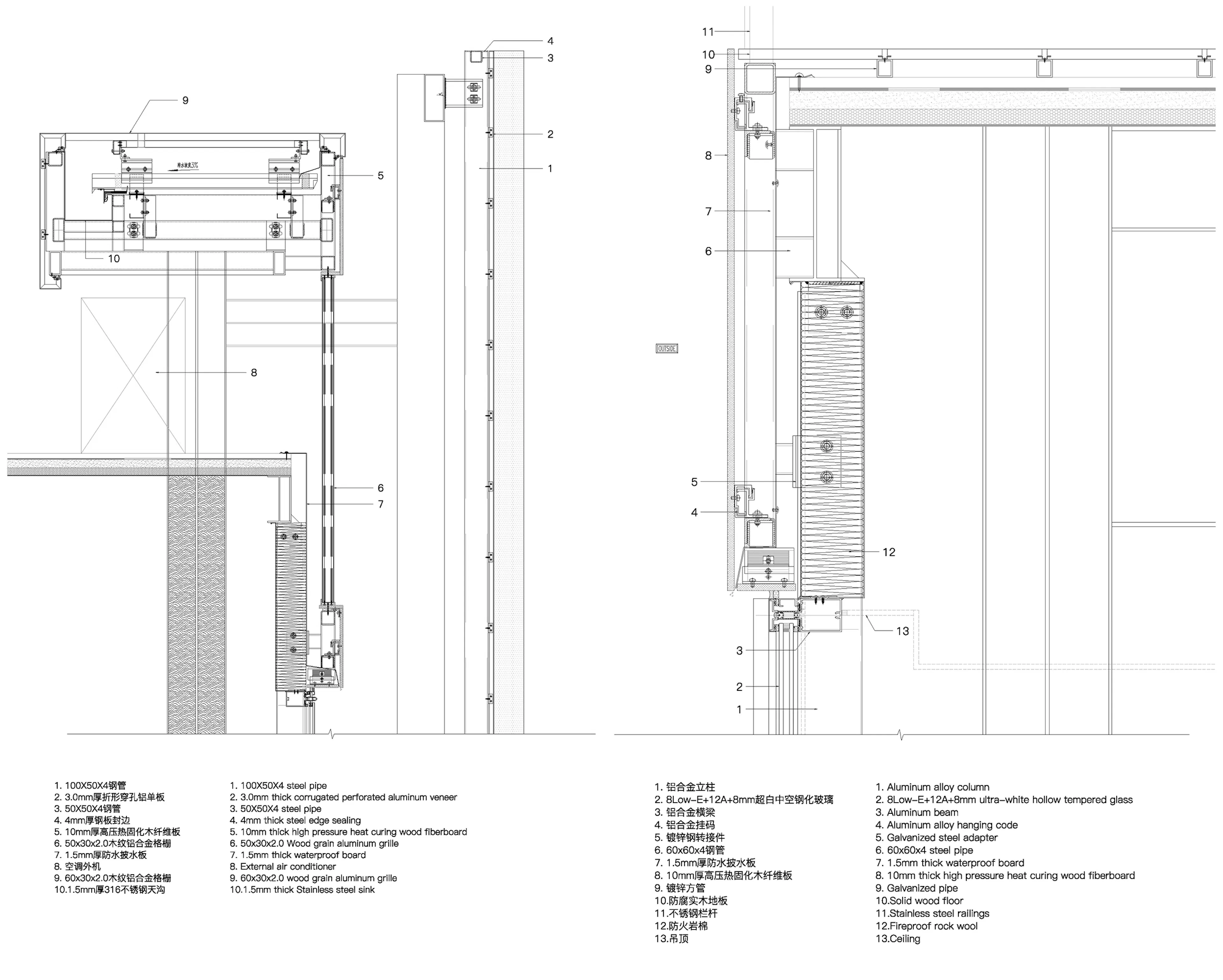
The project is located at Tongma Square in the old city center of Yancheng City, Jiangsu Province. This place was once the commercial center of the city, bearing the weight of the emotions and memories of several generations of Yancheng people. But with the expansion of the urban and the transfer of functional areas in the past decade, the old city has gradually become deserted, with backward supporting facilities and declining commerce. “Dengying Service Site” is an important part of the early stage of the Old Town Revitalization Plan. The government plans to create several temporary pavilions, whose functions including citizen service facilities and public gathering spaces, at important urban nodes to activate street vitality and update the way citizens connect with the city and the culture. We believe that public space is the vitality of a city, and small public space pavilions have characteristics such as "accessibility", "convenience", "flexibility", and "human scale". They are easy to quickly build and replicate on a large scale, and customized adjustments can be made for different sites, supplementing the missing community facilities in corresponding areas in terms of functionality, and optimizing street space as transitional products in use. The currently completed "Dengying Service Site" No.1, with a total area of about 206m2, includes four functions, which are coffee shop, cultural exhibition gallery, outdoor rest area, and citizen service corridor. The cultural exhibition gallery regularly updates exhibitions related to local culture every month, and organizes related activities in outdoor rest area. The citizen service corridor is equipped with shared umbrellas, medical aid, AED emergency equipment, wheelchair rental, power banks, self-service vending machines, etc., providing a series of missing public services and necessary facilities for the old city area. At the same time, the building is also equipped with hot water dispensers, microwaves, etc., and the coffee shop space is open for free, providing lunch and temporary rest area for sanitation workers or auxiliary police. The design takes "three-dimensional courtyard" as the spatial concept, echoing the space and roof form of the "Song Cao Former Residence" (Ming and Qing courtyard style architecture) on one side of the site. The architectural layout revolves around the trees in the atrium, with three volumes of four functional areas sloping inward, responding to the climate characteristics of the site while also engaging in dialogue with the original urban context. Additionally, the extra second floor space will create public space area as much as possible for the limited site. We design a mini amphitheater and observation deck on this rooftop area, to provide citizens with a way to observe the streets at different heights. Faced with the noisy urban interface, the elevation of the small building is presented with a lightweight posture using white folded perforated panels. Different angles of sunlight create gradient light and shadow details on the building facade, combined with warm colored wood veneers to bring a touch of vitality to the old city. In the mode of "Weaving Type Renovation", although it is only a scattered part of the entire urban block and not a "big project", we hope that the Dengying Service Site is a positive component of the revitalization of the block, a vibrant symbol, and a small and beautiful spatial place. Credits: Architecture Design: MUDO Architects Engineering: Jiangsu QiChuang Architectural Design Pty.Ltd Photographer: Dong Images
Collaborators
1lead






































