Dolores
FMT Estudio
Mérida, Mexico
- Year
- 2023
- Category
- Residential > Residential Renovations and Additions
- Type
- Residential
- Firm
- FMT Estudio
- Location
- Mérida, Mexico
- Award
- A+ 2025 · Finalist

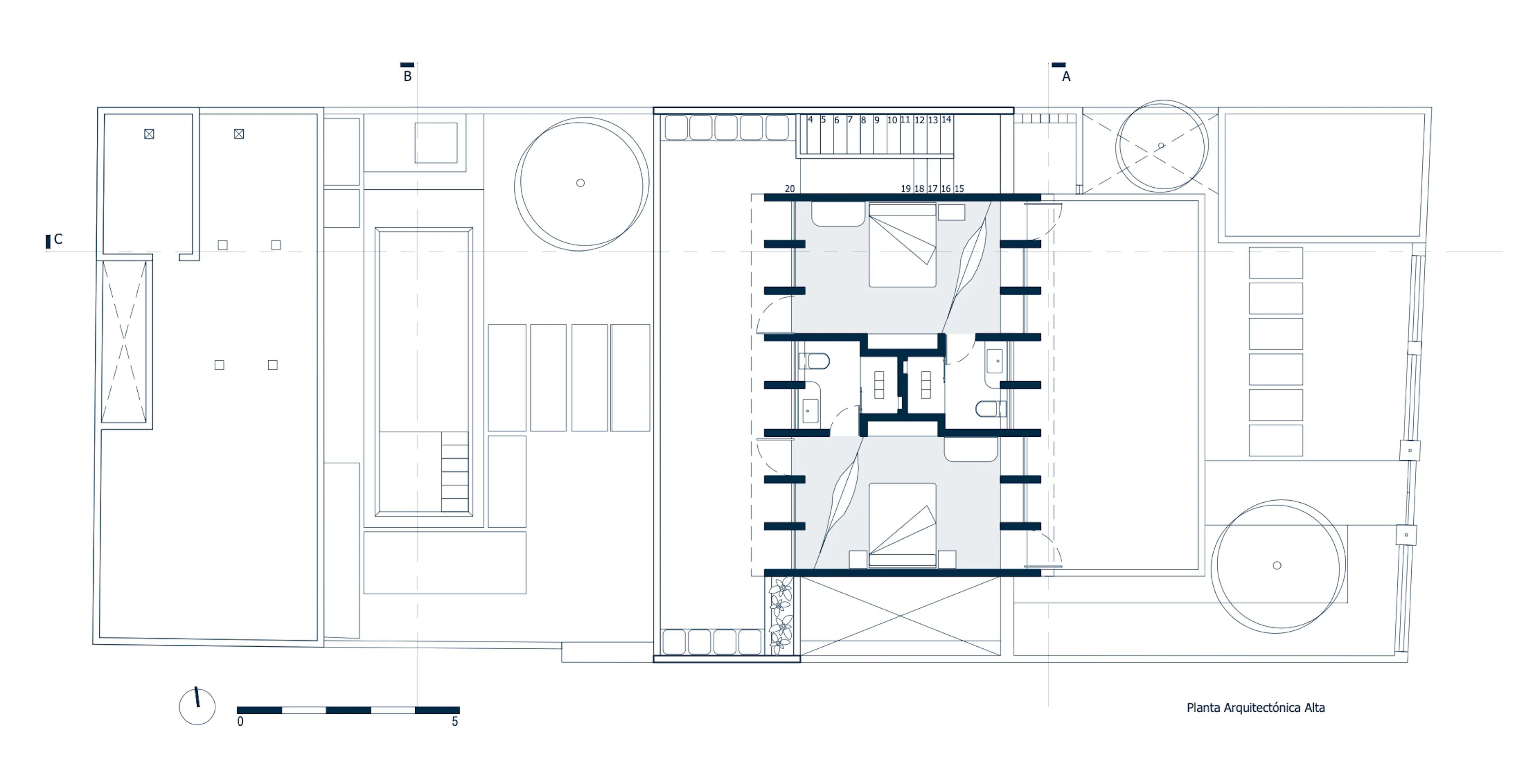
Project name: Dolores Studio name: FMT Estudio Architects: Orlando Franco & Zaida Briceño Building area: 185.50 sqm Photography: Lorena Darquea “Dolores” is a residential renovation project of a house dating back to the early 20th century, located in Mérida, Yucatán. The primary objective of this intervention is to rescue and celebrate the original character of the neighborhood—defined by modestly scaled homes with front gardens that fostered a strong sense of community. Originally built as housing for workers awarded through a charity raffle, the dwelling consisted of a single masonry gallery with a concrete roof, accompanied by a small semi-detached kitchen. Over time, successive modifications by residents altered the typology and gradually eroded the neighborhood’s architectural identity. The project's program required the integration of new independent bedrooms, service areas, and a swimming pool. This called for a complete reorganization of the site, including the reconfiguration of existing spaces. In response to the context, the original volume was preserved and reinforced, maintaining its presence as the primary structure. New spaces were added discreetly toward the rear and a second level, designed in a contemporary language with lightweight volumes that contrast with the historic construction, establishing a respectful dialogue between past and present. Special attention was given to architectural details such as windows and doors, which were custom-designed to create a coherent and unified identity throughout the project. Materials including wood, locally sourced marble, and handcrafted finishes were selected to highlight architectural features, while a serene color palette was chosen to enhance the natural tones of the materials. This project explores the role of individual buildings as active components within a broader urban fabric. We recognize that the transformation of cities and architecture is inevitable; however, we believe that preserving historical memory is essential to shaping urban environments with meaningful identities—particularly in the face of increasing real estate speculation, where economic interests often override social and cultural values. Ultimately, Dolores aspires to serve as a model for future interventions in the area, contributing to a collective effort to restore and reinterpret the spirit of the neighborhood.
Collaborators
1lead

















