Donassy Open Atelier
BXL studio
- Year
- 2012
- Category
- Commercial > Retail
- Type
- Commercial
- Firm
- BXL studio
- Award
- A+ 2013 · Finalist

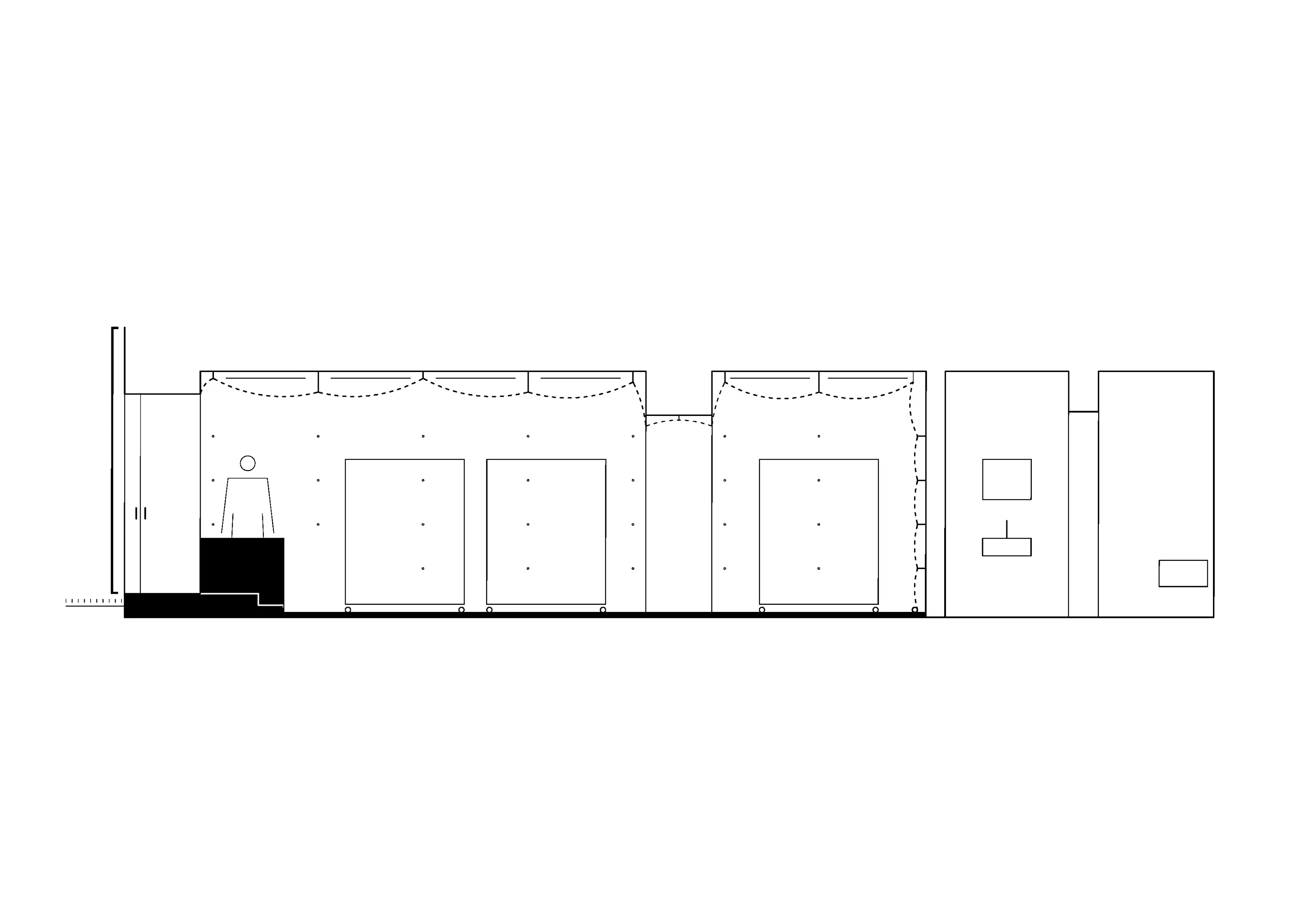
Photographer: Miljenko BernfestDonassy Open Atelier, temporary exhibition space and shop, Zagreb, 2012 The Donassy Open Atelier project created a temporary, flexible showroom whose purpose is to exhibit the work of the fashion designer Branka Donassy and other visiting artists. The existing storefront is in a historicist building, in a zone between Zagreb’s Upper and Lower Town. It has a barrel vault ceiling and is transformed with minimal budget and no building interventions. Architecture and fashion overlap, with the fashion design fabrication techniques completing the unique conceptual whole. The concept references exploration of avant-garde forms, construction and the meticulous nature of the artist’s work itself. The basic element of spatial design here is an elastic translucent cloth tailored and sewn according to the principles of couture, with no additional construction, anchored into the existing structure just with bolts, in a dotted pattern, which in the end resulted in an autonomous voluminous structure. Thus the whole space is draped in an elastic membrane which is simultaneously a form making element as well as a system to accomplish a diffuse and uniformed lighting, thanks to fluorescent tubes installed between existing vaulted ceiling and the translucent membrane itself. The anchoring elements are at the same time hooks for exhibits. The clothes racks are flexible and mobile so as to ensure quick transformation of space when needed. The rectangular black rubber coated fabric surface on the façade frames the front glass door, covering the damaged existing façade and accentuating the entrance, being a clear link between two worlds, the interior and exterior one. The floor is finished in contrast with the translucent luminous interior membrane, using black painted OSB panels. Not only that the treatment of the fabric was inspired by Donassy's sculptural forms, perfect cuts and avant garde fashion garments, but all of the textile elements in the implementation of the project were manufactured and sawed in Atelier Donassy!
People
1Collaborators
1lead















