Dreaming Someone
WAY Studio
Beijing, China
- Year
- 2018
- Category
- Hospitality > Restaurants
- Type
- Hospitality + Sport
- Firm
- WAY Studio
- Location
- Beijing, China
- Award
- A+ 2019 · Jury Winner
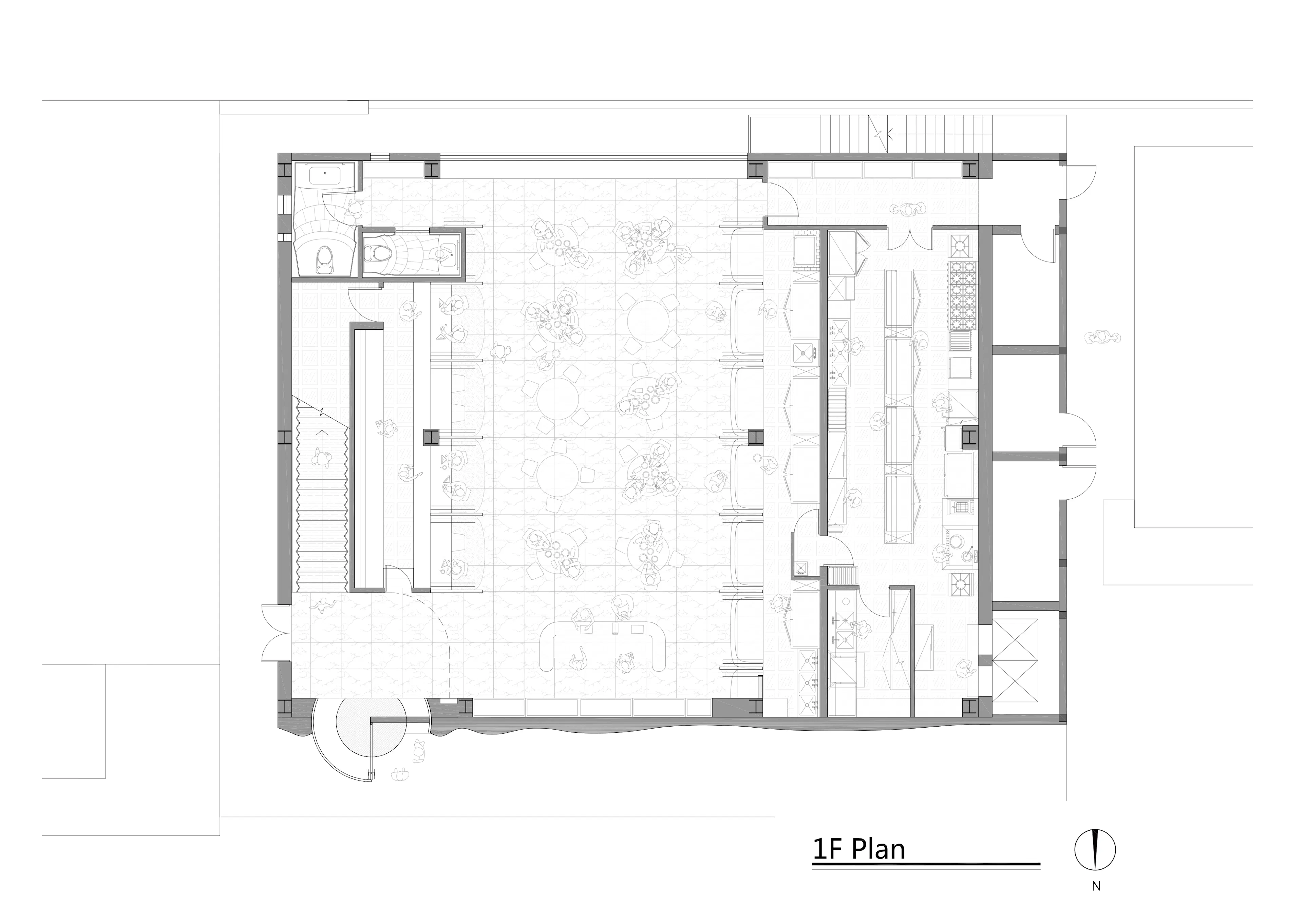
Architecture, through the manipulation of Space, creates a reality that only previously existed in the imagination. This is the vision WAY Studio had for recently completed project “Aye by Meeting Someone” restaurant in Beijing --- to bring dreams into actuality, to design a spatial performance, and to provide a transient surreal experience to all who dare enter. The spherical entrance, the infamous rabbit hole, crashes into the wall and creates ripples on the exterior façade. Designed with computational scripting but constructed literally “as drawn”, 1:1 plots directed where each brick should be laid. The façade has become juxtaposition between technology and craftsmanship, linking modernity with tradition. Through the entrance, the first floor, the open dining space consists of layers of bronze panels, creating series of arches intersecting with a cave-like tunnel, Sci-Fi meets Gatsby. It is in that moment of deja vu, that familiarity which you cannot exactly place, that is the center of this project. Wine and stories spill from each glass as you get lost within the galaxy of the jade bar top. Left of the entrance, pass through a staircase leading to a drastically different space, the uncertain and the unknown. The second floor consists of an open dining space also used for events. Here, ceilings are becoming walls, blurring the edges of space; hidden doors open to reveal three private dining rooms. Touch soft and furry velvet on the walls, growing and gathering towards the light. Velvet, inspired by theatres, was tailored for each twisting panel. Besides the basics, we believe architecture is an art of time and space. In this project, the audience is seduced through the use of Space, allowing for new stories to be created by each visitor, creating atmospheres to tempt the possibility of making imagination into reality. Credits: Yu SiDa , Zheng Tao , Li JiaXin , Li XuDong , Melody Hwang , Zeng Hao , Huang ZanNing , Alan Hung , Eagle Yin , Fernie Lai WAY Studio, Yan WeiQi , Mark Wang , Fan Wei , Wang Tao , Li YuZe Credits: - Melody Hwang - Li XuDong - Mark Wang - Alan Hung - Zheng Tao - Zeng Hao - Li YuZe - Fan Wei - Li JiaXin - Eagle Yin - WAY Studio - Fernie Lai - Huang ZanNing - Yan WeiQi - Wang Tao - Yu SiDa
Collaborators
1lead






























