'Drift' Lobby Bar
Department of ARCHITECTURE
Pattaya City, Thailand
- Year
- 2013
- Category
- Commercial > Bars & Nightclubs
- Firm
- Department of ARCHITECTURE
- Location
- Pattaya City, Thailand
- Award
- A+ 2013 · Popular Choice

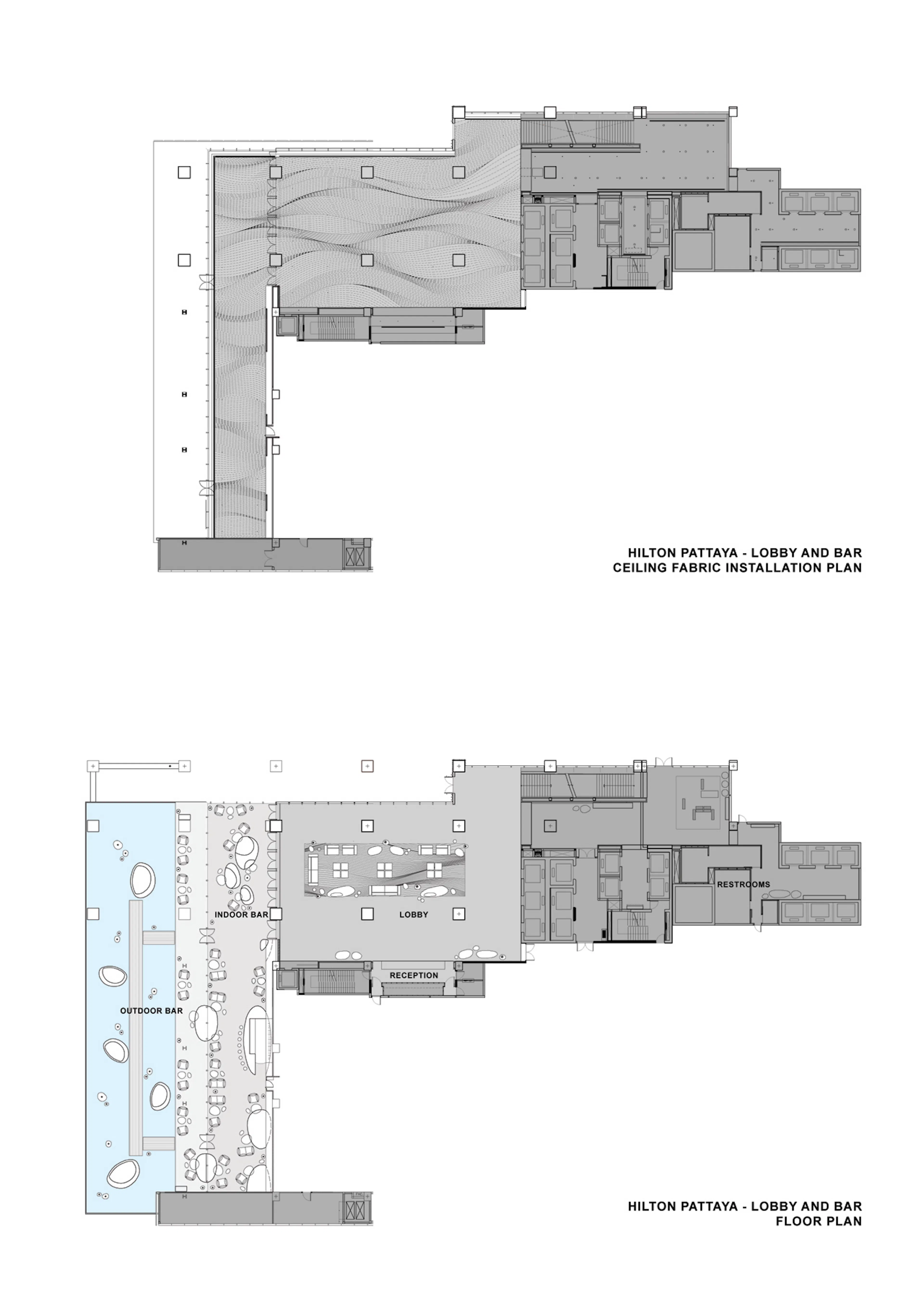
The space for the hotel lobby and bar occupies the 16th floor, high above the bustle of Pattaya beach below. Upon entering the space from one end, as elevator doors open, one would enter a spacious lobby area. The architectural intervention to the entire ceiling plane, with its dynamic wave lines, leads the movement of the visitors towards the seafront beyond. The fabric installation on the ceiling becomes a main feature in the space while simple elements on the ground provide a tranquil atmosphere.At night, strip lighting accents from above the fabric linear pattern. The whole ceiling volume becomes a gentle luminous source of light giving a fine ambient to the overall space.At the end of the lobby space, the bar area is arranged linearly along the building edge parallel to the sea with maximum opening to the ocean view. Backdrop of the bar area lies a wooden wall with alcoves where the daybeds partially tuck themselves into the wall. Oversized and soft furniture provides comfortable and relaxing seating for guests to sink into. A full-wall mirror at the end of the long space doubles the visual length of the bar area.Further in front of the indoor bar area is an outdoor lounge space with a large reflecting pond catching the reflection of both the sky and the droplet daybeds and lamps scattered around. From this area the space is opened up to the panoramic ocean vista and gentle sea breeze.Credits: Amata Luphaiboon - Owner/Principal, Twitee Vajrabhaya Teparkum - Owner/Principal
Collaborators
1
















