Eastbound
West of West
Austin, United States
- Year
- 2022
- Category
- Commercial > Office - Low Rise (1 - 4 Floors)
- Type
- Commercial
- Firm
- West of West
- Location
- Austin, United States
- Award
- A+ 2023 · Finalist

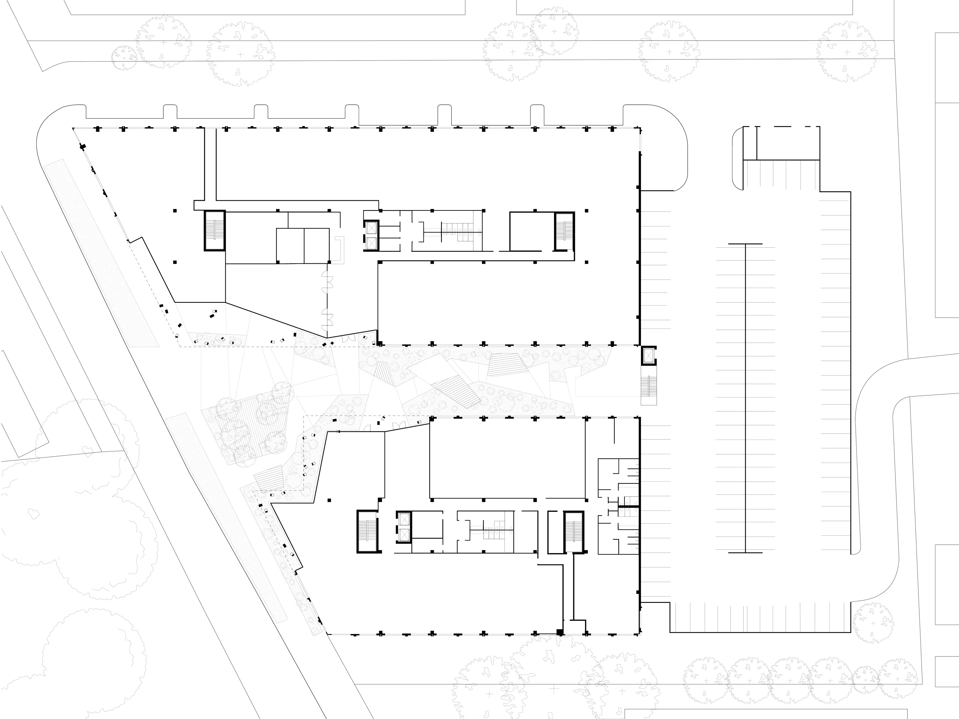
West of West has designed the architecture and interiors for an office campus in Austin, Texas around natural light, outdoor spaces, diversity of experience, and flexibility of use over time. The project takes inspiration from the visual language of warehouses and industrial buildings located in the surrounding area. The 220,000 square foot project consists of two four-story buildings that form a central pedestrian courtyard. Each building has two primary architectural conditions that reinforce both the internal program and external activity, and are in contrast to one another. The upper section of each building has large open office spaces clad in a rational grid of precast concrete panels punctuated by outdoor decks. At the ground floor the buildings have a deep colonnade of forest-like canted columns that emerge from the landscape to create a covered public space. With a ceiling clad in wood this space connects a restaurant, lounge, and building lobbies with the surrounding courtyard. “We wanted to deliver a complete experience and a different vision for what a building for white-collar office work could be. We wanted something a little rough around the edges,” says Clayton Taylor, AIA, cofounder and Principal at West of West, who led the project’s design. “We achieved the roughness from a layering of scale and materials, from landscape to facades to interiors.” The custom precast concrete facade was developed in close collaboration with the manufacturer. The facade was rationalized and panelized, then coordinated with precasting tolerances and installation constraints. Taking advantage of the depth required in the precasting process was critical to achieve the team’s design intent for the facade to create distinct shadows and building-scale textures. Multiple aggregate mixes were created and tested with the goal of softening the visual qualities of the concrete and creating additional scale when near to the facade, resulting in the final product with textured “salt-and-pepper” exposed aggregate. Other elements include large-scale custom steel light fixtures at each entrance, created by local lighting studio Warbach to mimic the canted concrete columns, roof decks, an exterior stair, and a mural by Emily Eisenhart. West of West’s vision continues to their design of the building’s interiors, with exposed concrete, steel, and wood used throughout the public spaces. Eastbound demonstrates a project that takes the premise of the typical American speculative office building into an interesting and expressive space to work. The resulting building is balanced between activating public space at the ground level and an interesting space to work on the levels above. This building is focused on long-term durability and future-proofing usability, decisions which extended to site and landscape design, to building size and shape, to façade design, and to material and furniture selections.
Collaborators
1lead




























