El Espinar House
Miguel de Guzmán
Segovia, Spain
- Year
- 2013
- Category
- Concepts > Architecture +Photography and Video
- Type
- Residential
- Firm
- Miguel de Guzmán
- Location
- Segovia, Spain
- Award
- A+ 2015 · Finalist

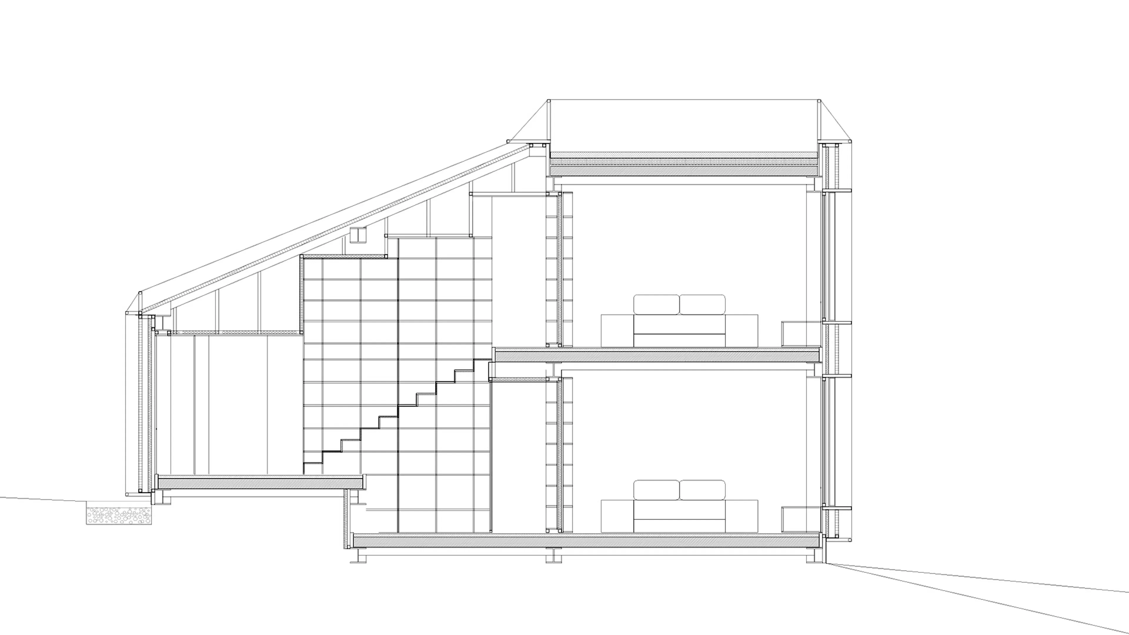
ESPINAR HOUSE FILM: http://vimeo.com/68471938 El Espinar House is built in a small village at the north face of the Sierra de Madrid. The site enjoys a privileged location, on the edge of the town bordering the Natural Park Panera.This situation is the starting point of the project, with the goals of maximizing the mountain and park views to the northwest; optimizing natural light considering it is at the north face of the mountain, and respecting the existing large pines. The dwelling is located in the center of the lot with a perimeter defined by urban legal conditions as well as the situation of the trees.The facade consists of a triple skin: First there is a sandwich panel with OSB boards (which provide the interior finish), extruded polystyrene foam insulation and waterproof chipboard, surrounding the core of the house rooms and living spaces. The second skin is made of cellular polycarbonate, providing extra insulation and expanding the perimeter to wrap a south-facing greenhouse that collects heat during winter days and can be opened to the outside during the summer, defining semi-outdoor extension space for the house. Steel cables allow climbing plants to grow on three sides of the house, as a vegetal third skin.The use of semi mechanized building techniques, steel frames, sandwich panels and polycarbonate, can speed up work time, reduce costs and give the building greater flexibility to make changes in the future. Water and electrical facilities are accesible, making easier to expand, change or perform repairs. The top deck area is a garden that tries to restore the portion of ground garden occupied by the building and provides a leisure space at the level of the treetops with views of the mountains.Design: Miguel de GuzmánProject Managment: Veidimanna Protum www.veidimannaprotum.comBuilding: José Manuel González Encinar and Ars TectónicaPhotos and Video: Miguel de Guzmán. www.imagensubliminal.com
Collaborators
2lead
collaborator



























