Equipment Room
RIOS
Austin, United States
- Year
- 2023
- Category
- Hospitality > Bars and Wineries
- Type
- Hospitality + Sport
- Firm
- RIOS
- Location
- Austin, United States
- Award
- A+ 2024 · Special Mention

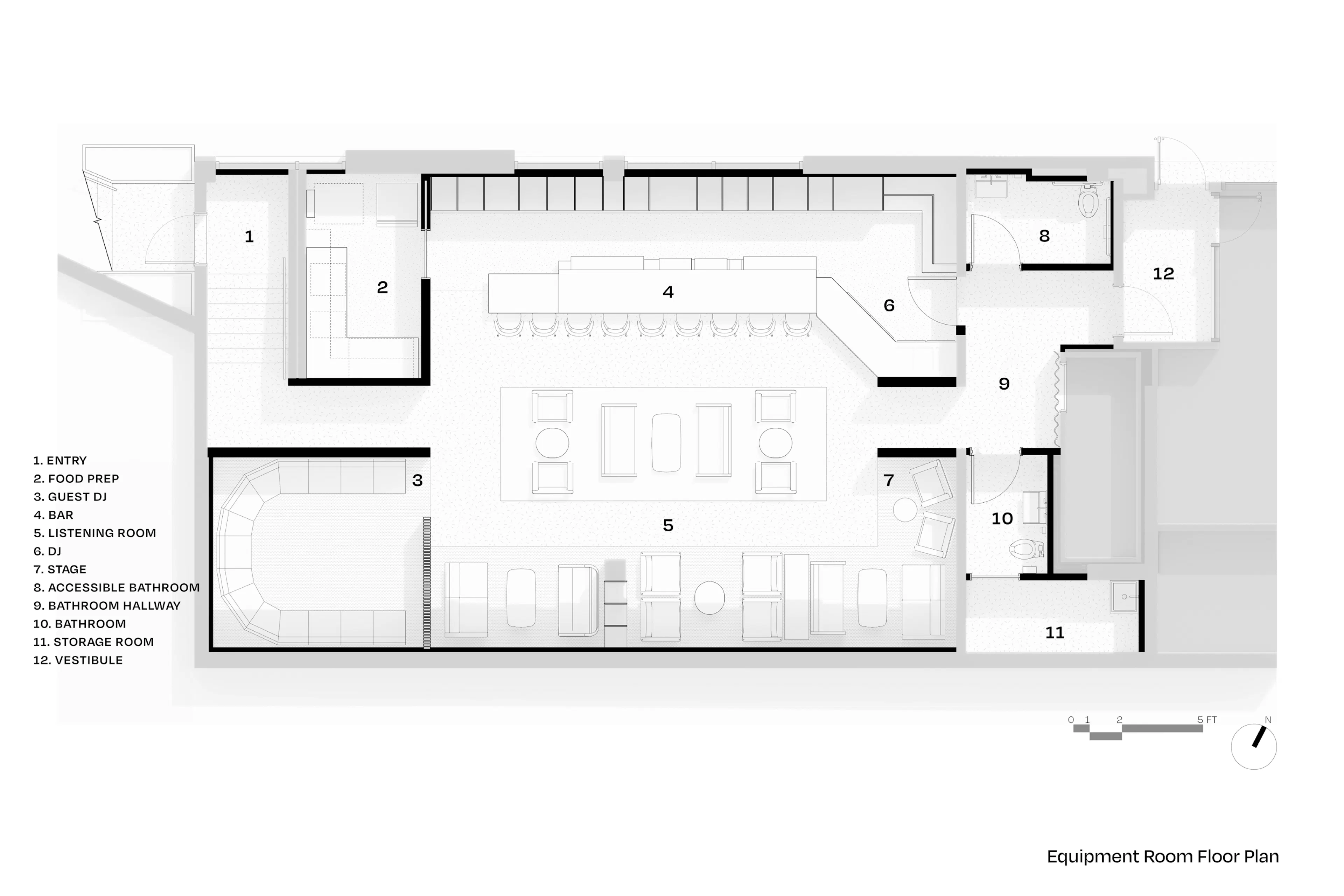
The Equipment Room, situated on Austin's Music Lane, is a distinctive haven for audiophiles passionate about the art of listening. This music destination boasts a curated design that encourages a nostalgic journey through time, featuring high-quality sound, bespoke millwork, and eclectic decor. Inspired by Tokyo's listening rooms and a love of vinyl, Equipment Room serves its intrinsic purpose of sharing music and bringing a new experience to the long-celebrated music tradition in Austin through a unique angle on the Japanese jazz kissa. Equipment Room features a fully integrated hemlock bar and custom-made feature wall designed to seamlessly integrate the sound equipment and record collection. A custom DJ booth with a roll-top tambour cover blends functionality with character. The design implements a hyperlocal approach with minimal intervention by repurposing the former storage room and engaging local audio talent and fabricators. The preservation of the concrete floor as the finish floor and the acquisition of used and refurbished furniture and lighting pieces add to the allure of the modern speakeasy. The space features a curved wall covered in acoustic felt, providing an intimate atmosphere. This design serves a dual purpose: absorbing and reflecting sound for designated seating areas while concealing mechanical equipment to prevent disruption to the auditory experience. The listening room masterfully utilizes “found space” to introduce a new experience, enhancing the building efficiency and enriching the programmatic offerings. The design cleverly incorporates multi-functional elements such as a central seating area that transforms into a dance floor, a raised seating platform that doubles as a stage for live music, and intimate seating areas to provide completely immersive sound experiences. Every detail, from the warm lighting to the rich color palette, amplifies the sonic experience, crafting an intimate atmosphere where music lovers can immerse themselves in the beauty and complexity of audio.
Collaborators
1lead












