Flag House
Studio MK27
Whistler, Canada
- Year
- 2020
- Category
- Residential > Private House (L 4000 - 6000 sq ft)
- Type
- Residential
- Firm
- Studio MK27
- Location
- Whistler, Canada
- Award
- A+ 2023 · Popular Choice

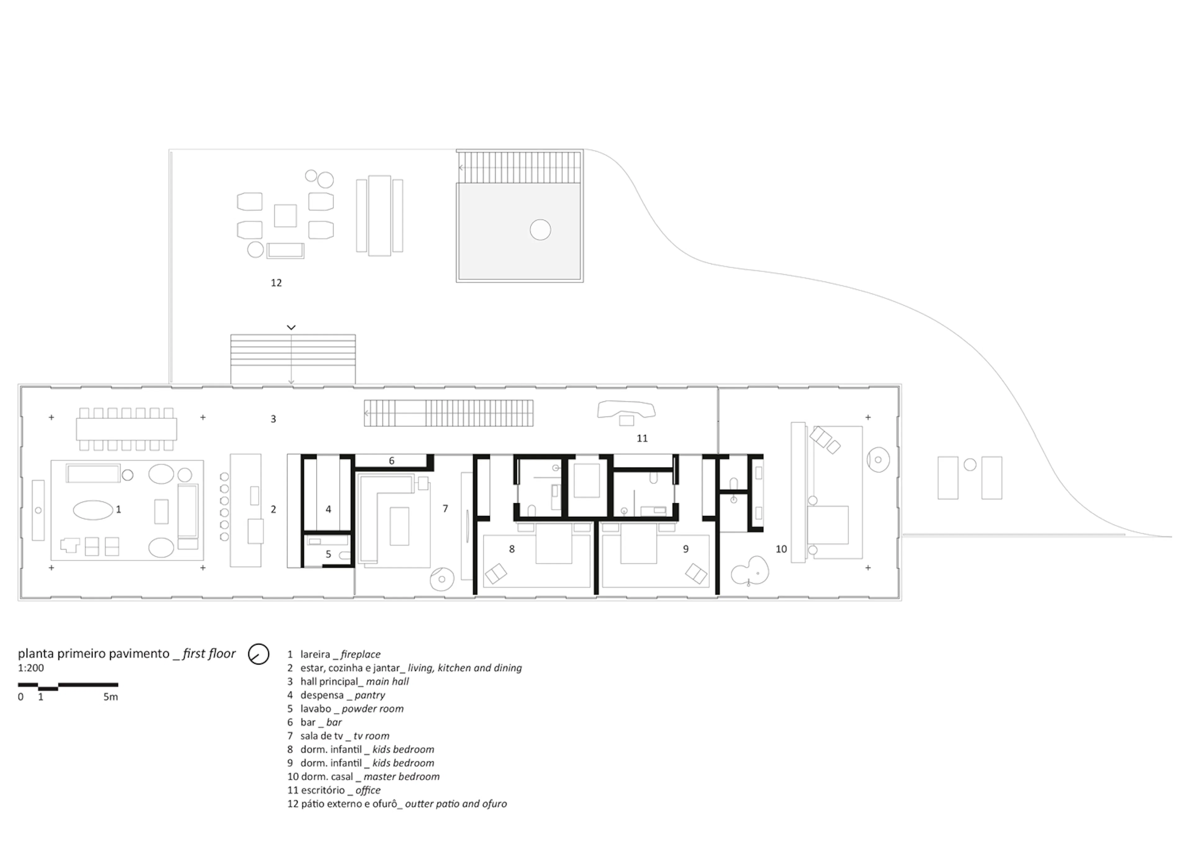
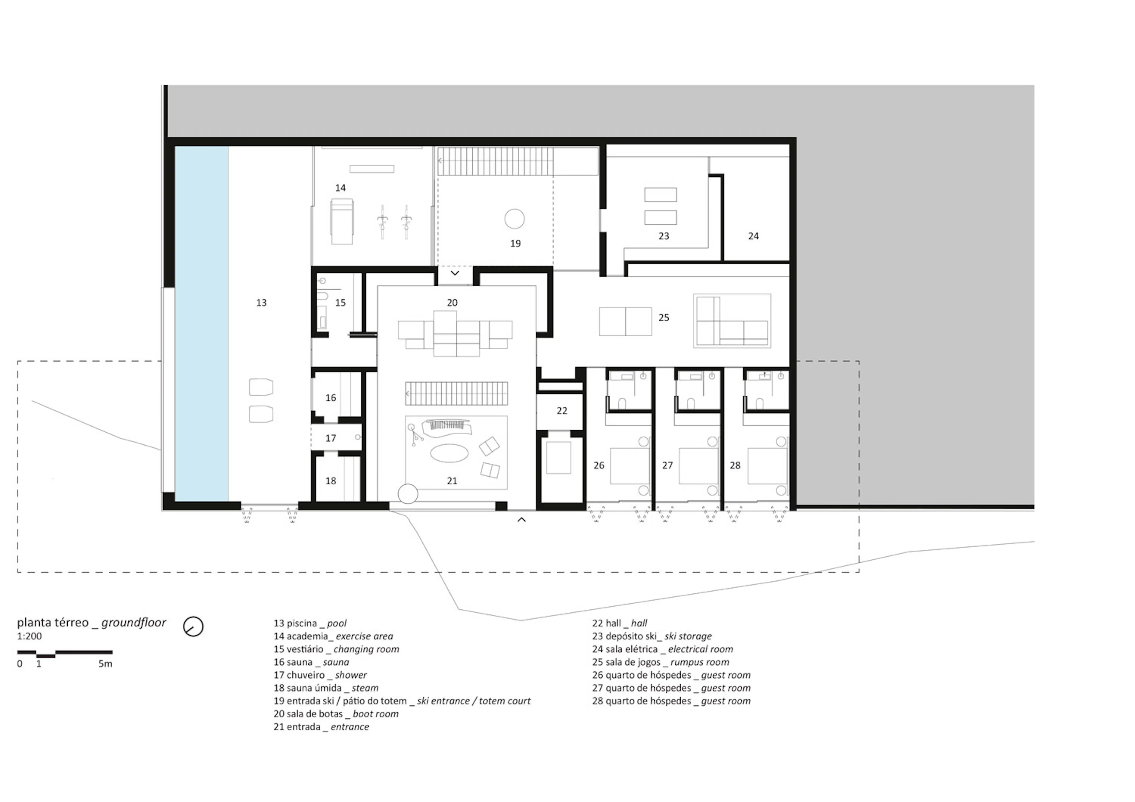
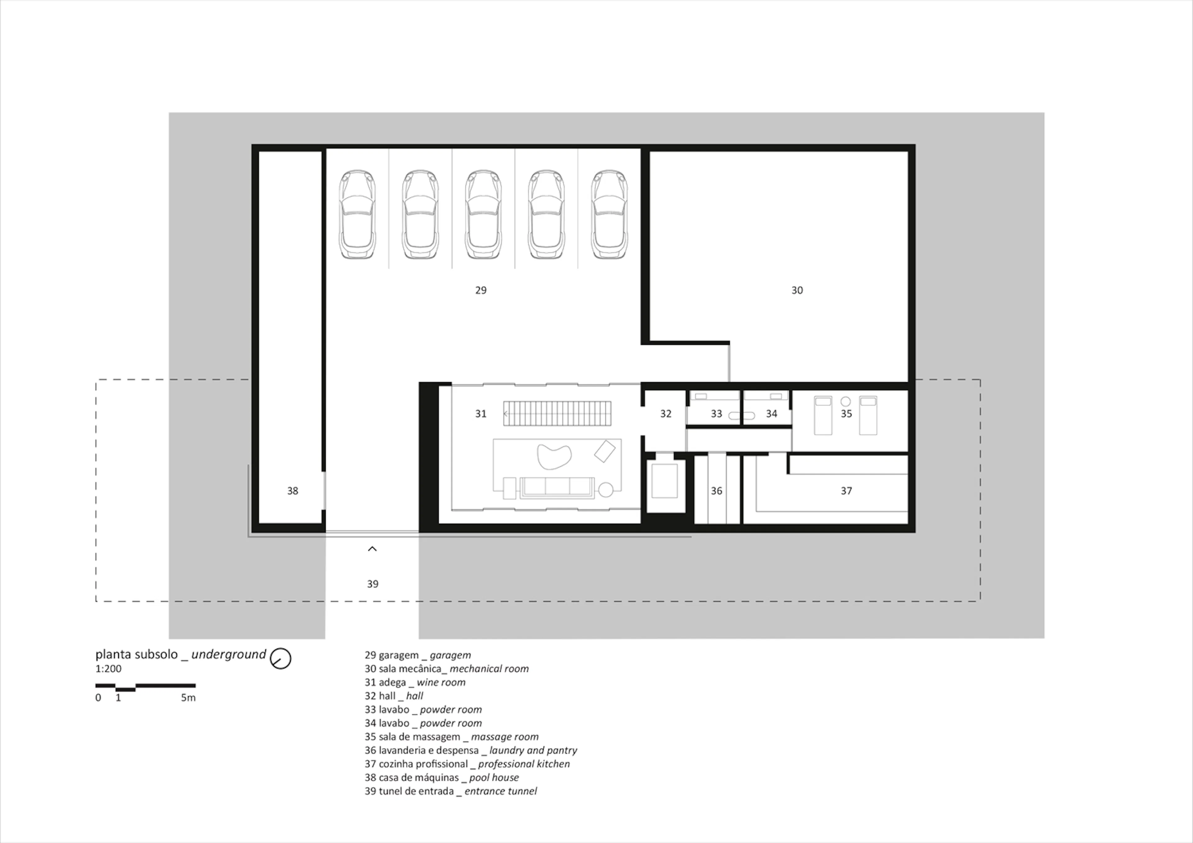
The main challenge of this project was to create a strong connection between internal and external spaces, typical of studio mk27 project in tropical climate, but in this case, in Whistler, a ski station in Canada where winters are harsh. The research for spaces able to create this feeling of belonging to the surrounding nature without foregoing the necessary insulation for the house. The result was a glass box leaning on another. This gesture, of projecting outwards the mountain, of flotation over the site respond to the wish of integration with the landscape. In contrast with the transparente upper volume, the basement is a metalic surface that, in a way, merged with the snow.
Collaborators
4lead
collaborator
collaborator
collaborator


































