Gamma MKE
SYNECDOCHE
Milwaukee, United States
- Year
- 2024
- Category
- Concepts > Architecture +Prefab and Modular
- Type
- Commercial
- Firm
- SYNECDOCHE
- Location
- Milwaukee, United States
- Award
- A+ 2025 · Special Mention

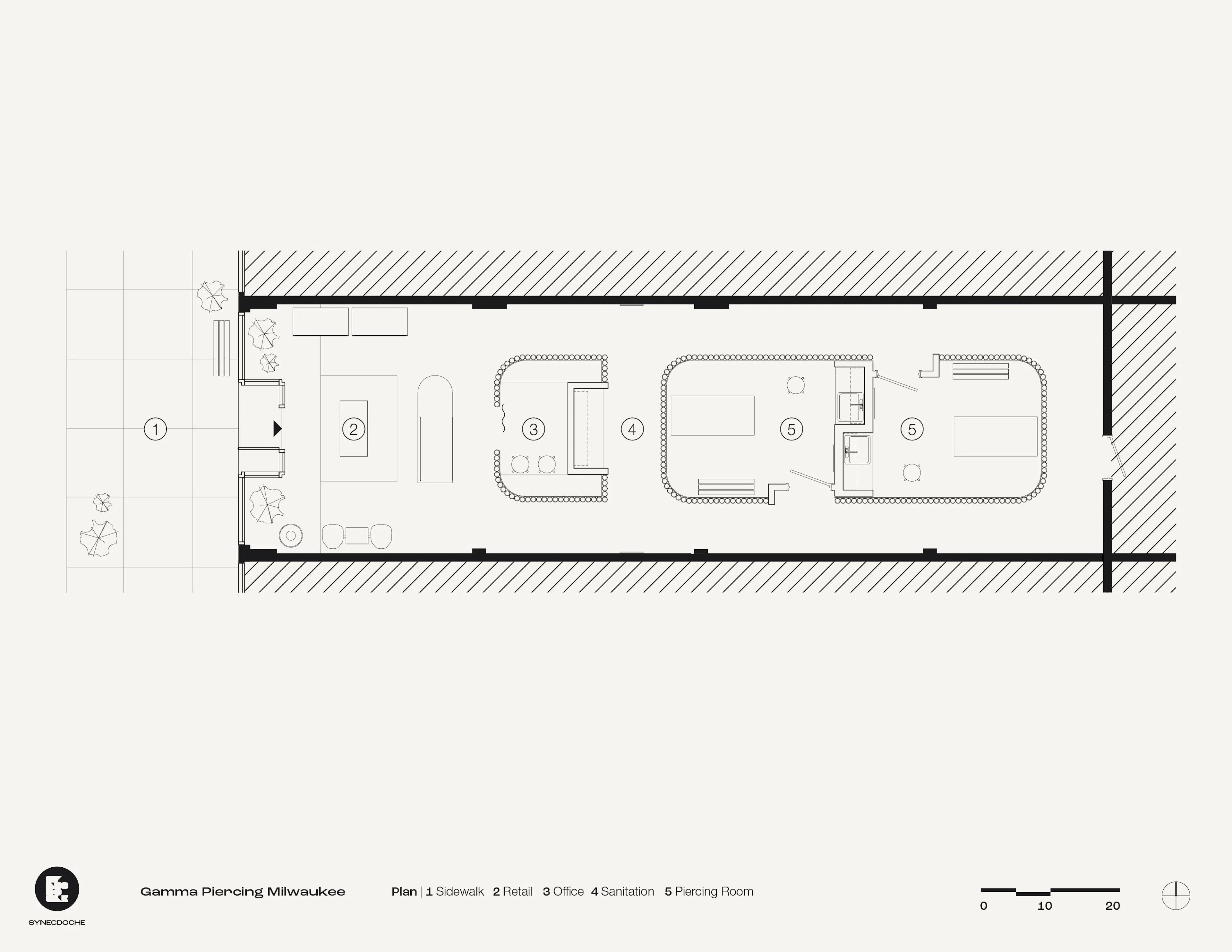
When piercing artists Nathaniel Tinker and Kira Leigh returned to their hometown of Milwaukee, Wisconsin, they didn’t want to leave behind their Ann Arbor studio culture and design. The couple and owner, Jef Saunders, contacted Synecdoche to design the second piercing studio following a successful first location. The interior architecture connects the piercing experience with personal ritual within its 1,100-square-foot retail space. Each piercing becomes part of a unique narrative of self-care and expression, while the space itself defines a ritualistic journey, offering opportunities to document and celebrate personal moments. Stripped of unnecessary stimuli, a natural tan base palette with color accents signals interaction points along the journey for intuitive navigation while reducing guest anxiety. Before entering the space, guests are welcomed to the experience through friendly environmental graphics affixed to the front door. The reception and retail give space to set intentions, encouraging guests to browse and select jewelry at their own pace without the facilitation associated with traditional jewelry counters. Plants and a water feature add a layer of tranquility to foster a calming atmosphere. Piercing rooms are located towards the back of the space, providing visual and acoustic privacy so guests can be fully present and share concerns with their piercer. Gamma’s ritual ethos is further highlighted by graphic prompts on mirrors outside piercing rooms, allowing guests to reflect on their new look in a supportive and secluded setting. Guests may use the vintage Polaroid camera provided to document and share their piercings in the retail gallery. Recognizing that retail often refreshes in shorter cycles than a full building lifespan, the design team prioritized incorporating materials that could be disassembled and recycled. Paper tubes are not a new architectural concept: examples of paper tubes used for aesthetic applications and small fixtures exist in interior precedent. When used in a wall application, they are typically attached to existing drywall or connected to the floor and ceiling. Gamma MKE utilizes the tubes in a freestanding wall partition, which has the additional benefit of stopping below the ceiling to avoid relocation of existing fire suppression, track lighting, and mechanical systems. A fabrication shop is integrated into Synecdoche’s architecture studio for full-scale prototyping and production. Our studio built a series of wall mockups to resolve fabrication techniques, assembly sequence, and material durability, including flame spread. Structural consultants calculated and confirmed lateral load compliance by adding steel post supports to the prefabricated wall panels. Intensive coordination between the design team in Michigan and on-site contractors in Wisconsin was required to manage the placement and tolerances of the support steel posts. This process ensured a successful 24-hour installation by the design team. The prefab design using novel materials adds to the catalog of possible applications for paper tubes in architecture. It showcases how a light intervention ensures that the design maximizes its effect within the client's budget without a complete renovation. For a small project, it addresses the big picture of sustainable design goals by connecting responsible efforts to delightful experiences.
Collaborators
1lead
















