Gateway Exchange
Geoffrey von Oeyen Design
Winder, United States
- Year
- 2020
- Category
- Concepts > Architecture +Health
- Type
- Government + Health
- Firm
- Geoffrey von Oeyen Design
- Location
- Winder, United States
- Award
- A+ 2024 · Finalist

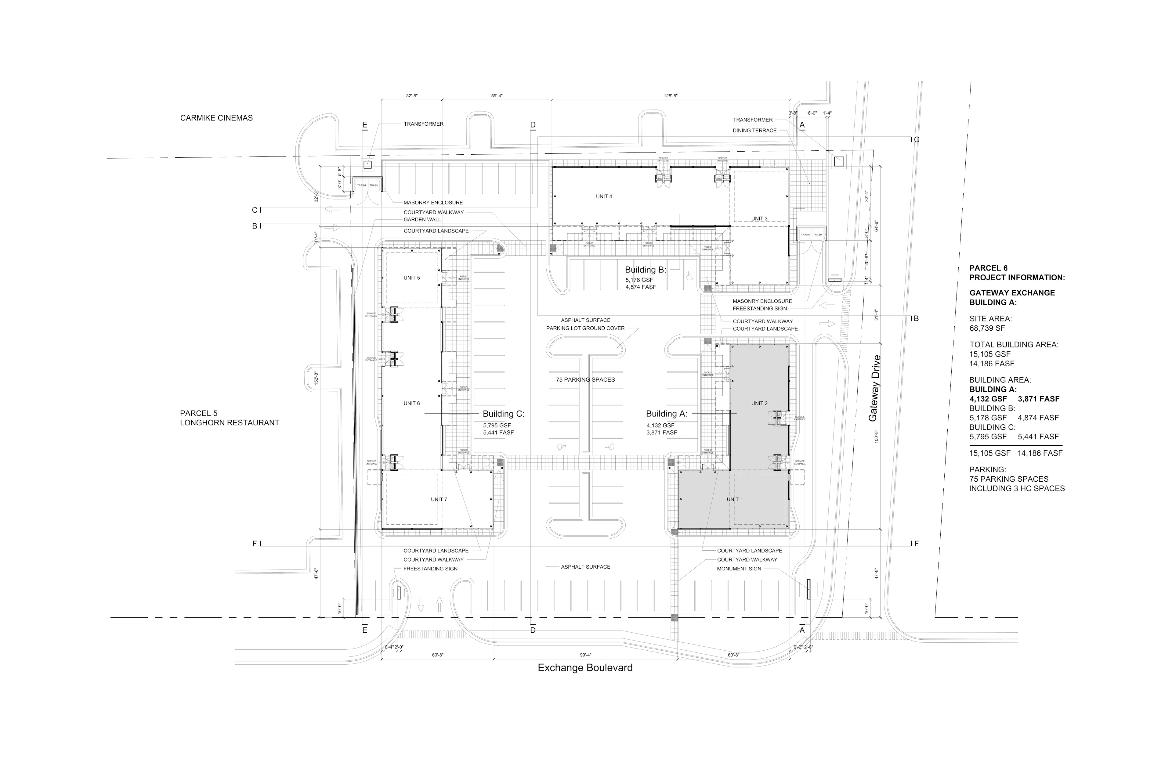
Gateway Exchange is a 15,000 sf medical and retail center made up of three buildings that form a large, landscaped courtyard. The project inverts the typical American retail typology of one large building surrounded by a sea of parking, creating a project that simultaneously explores exteriority and interiority. The exterior reads as one large urban project comprised of varied masses organized as a single object, while voids between buildings in the interior court create framed views to the surrounding site. By wrapping the three buildings around a courtyard of landscaped parking, the buildings create a protected interior space for users to enter the various medical offices -- inverting the exterior and interior spaces, while still reading as a unified mass from the roads. The corners of the buildings meet the highway to the front of the project and a service road to the side, introducing a more commonly urban typology to this suburban area. The buildings are slightly inset from the property lines to allow for two drive-up service windows on either side of the complex. The planes of the exterior walls are only interrupted by staff entrances to the buildings, signaled by recessed utility closets, and by small overhangs protecting the drive-up windows. Breaking the deep single building into three narrower buildings surrounding a landscaped parking court allows a cooler microclimate to be formed within. The entries to the offices feel more protected and pedestrian friendly since they are organized around the shaded courtyard. This access to outdoor space and natural light proved particularly relevant post-pandemic, and recalls Modernism’s best practices for healthy design and wellness.
Collaborators
1














