Gyöngyszem Kindergarten
Archikon Architects
- Year
- 2024
- Category
- Institutional > Kindergartens
- Type
- Educational
- Firm
- Archikon Architects
- Award
- A+ 2025 · Popular Choice

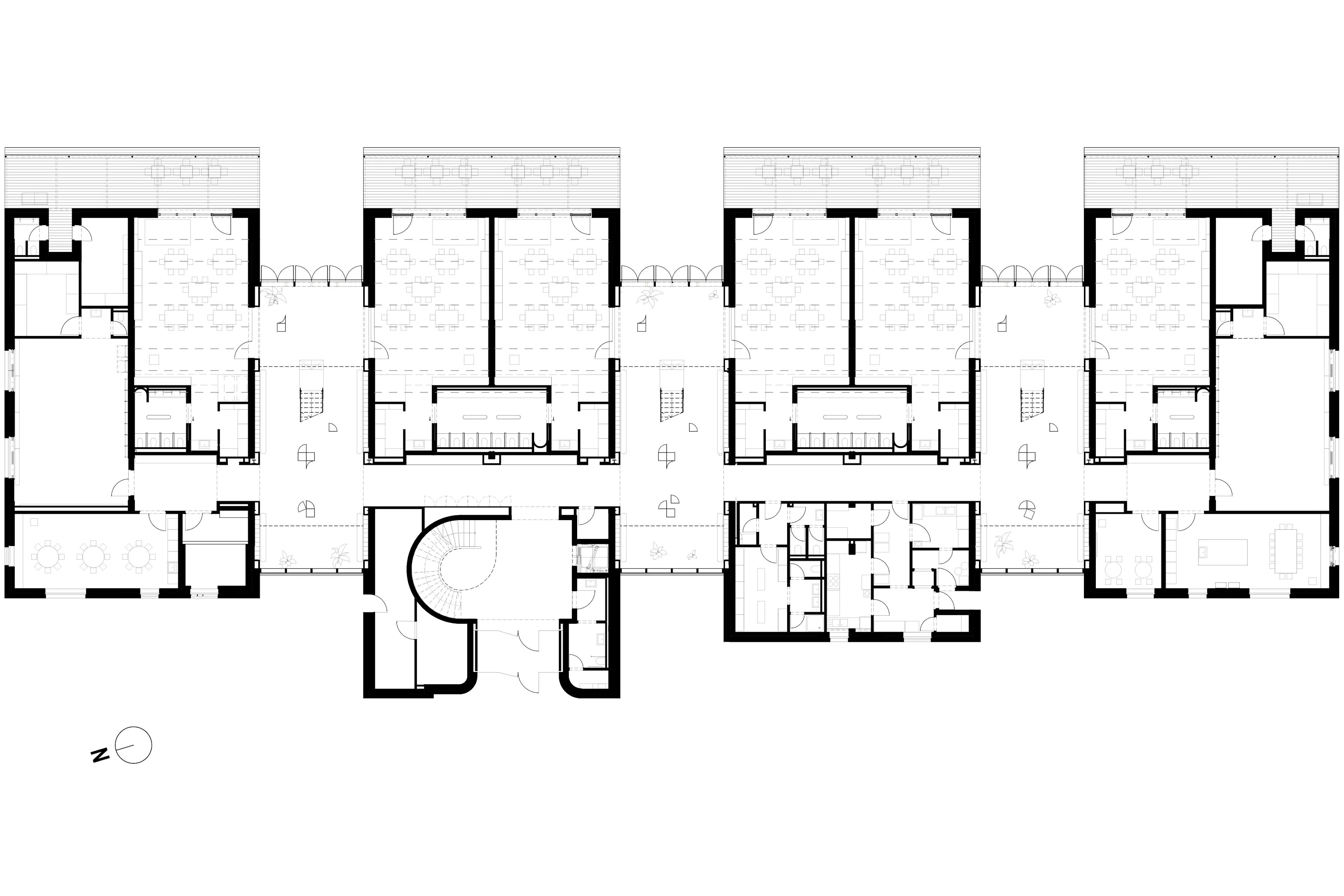
Hungary's first smart kindergarten is transformed from a prefabricated panel structure with sustainable solutions Built in the late 1970s, the ten-story prefabricated apartment blocks on Gyöngyösi Street surround a tree-lined green promenade with small-scale retail buildings, a nursery, a kindergarten, and a school, including Gyöngyszem Kindergarten. The existing building was a flat roof single-story, flat-roofed, prefabricated paneled house with a central corridor. The District XIII Municipality has decided to renovate and extend the building - which was in a dilapidated state - due to functional problems, small interiors, lack of common areas and interconnected spaces, and a poor circulation system, along with the need for energy modernization and accessibility. The aim was to create a harmonious environment that takes sustainability and digital advancements into account, fostering a so-called smart kindergarten: an institution that provides the latest tools for education and development. The existing building was retained, but a new floor was added – the two-storey sections have mezzanines, with connecting spaces for community activities, allowing interactions across the two floors. In addition to the ten classrooms, the development and activity rooms play a central role; providing space for movement, and creative activities, as well as cooking and developing individual and interpersonal skills as part of a healthy lifestyle education. From the galleries, staircases lead towards the courtyard, arriving at playful furniture inspired by the shapes of the children's games, the building blocks. To emphasize the entrance - reviving from the tradition of the interconnection of architecture with fine arts - a fire-enamel art piece was incorporated into the facade. To further enhance the arrival area, the definition of natural light accents played an important role in the design process. The idea behind the renewal of the Gyöngyszem Kindergarten was to show that a prefabricated nursery can be transformed into an environmentally and energy-conscious, sustainable, playful, and liveable space, in a way that allows for a unique smart building and a smart education program.
Collaborators
1






















