H151 - a house with five apartments
Studio Kraft
Budapest, Hungary
- Year
- 2023
- Category
- Residential > Multi Unit Housing - Low Rise (1 - 4 Floors)
- Type
- Residential
- Firm
- Studio Kraft
- Location
- Budapest, Hungary
- Award
- A+ 2024 · Finalist

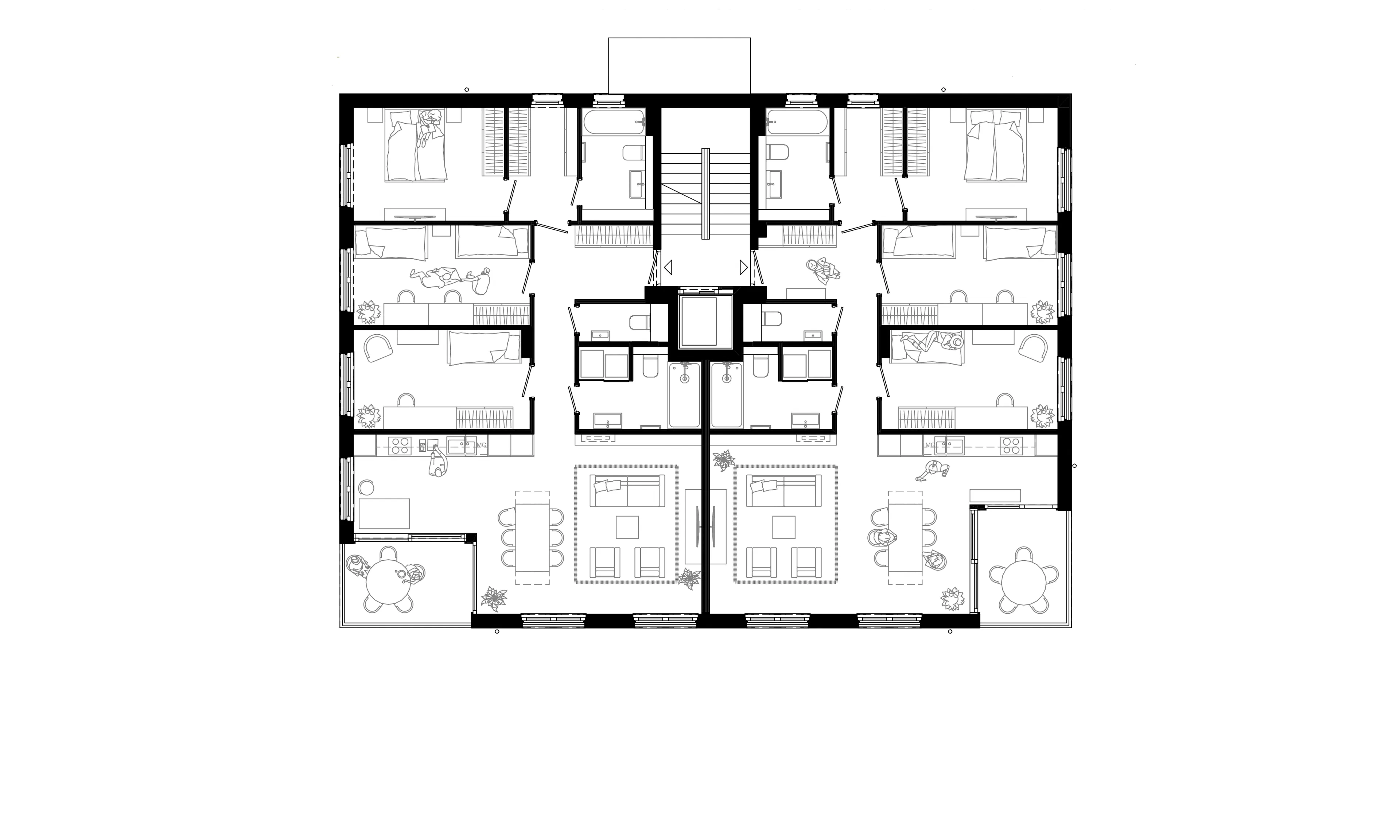
In a green area of Budapest we designed a five-apartment apartment building on a sloping plot surrounded by old trees. Respecting this natural setting we finished the building without cutting a single tree. We tried to combine the elegance, materiality, and personality of the local villas from the turn of the century with the functionality and modernity of the small-scale quality condominium architecture in a compact building. The result is a simple, archetypal, compact mass broken by the corner terraces and the asymmetrically placed pitched roof. The wooden paneling of the gable walls were inspired by the detailed wooden gables of the old villas. The lower two floors, which contain four apartments with covered terraces, merge into the earth with their brownish clinker cladding and monolithicity. The simple form covers a variable floor plan respondig to the challenges of home officing and family life. The penthouse apartment on the roof level, reaching for the sky, has a light wood and glass facade, metal roofing, and unique large scale skylights. The whole building tries to blend into nature with its colours and natural materials giving the residents to be in the woods while keeping thier intimate environment.
Collaborators
2lead
collaborator


























