Hacienda Wabi
RA!
Tulum, Mexico
- Year
- 2024
- Category
- Residential > Multi Unit Housing - Low Rise (1 - 4 Floors)
- Type
- Residential
- Firm
- RA!
- Location
- Tulum, Mexico
- Award
- A+ 2025 · Popular Choice

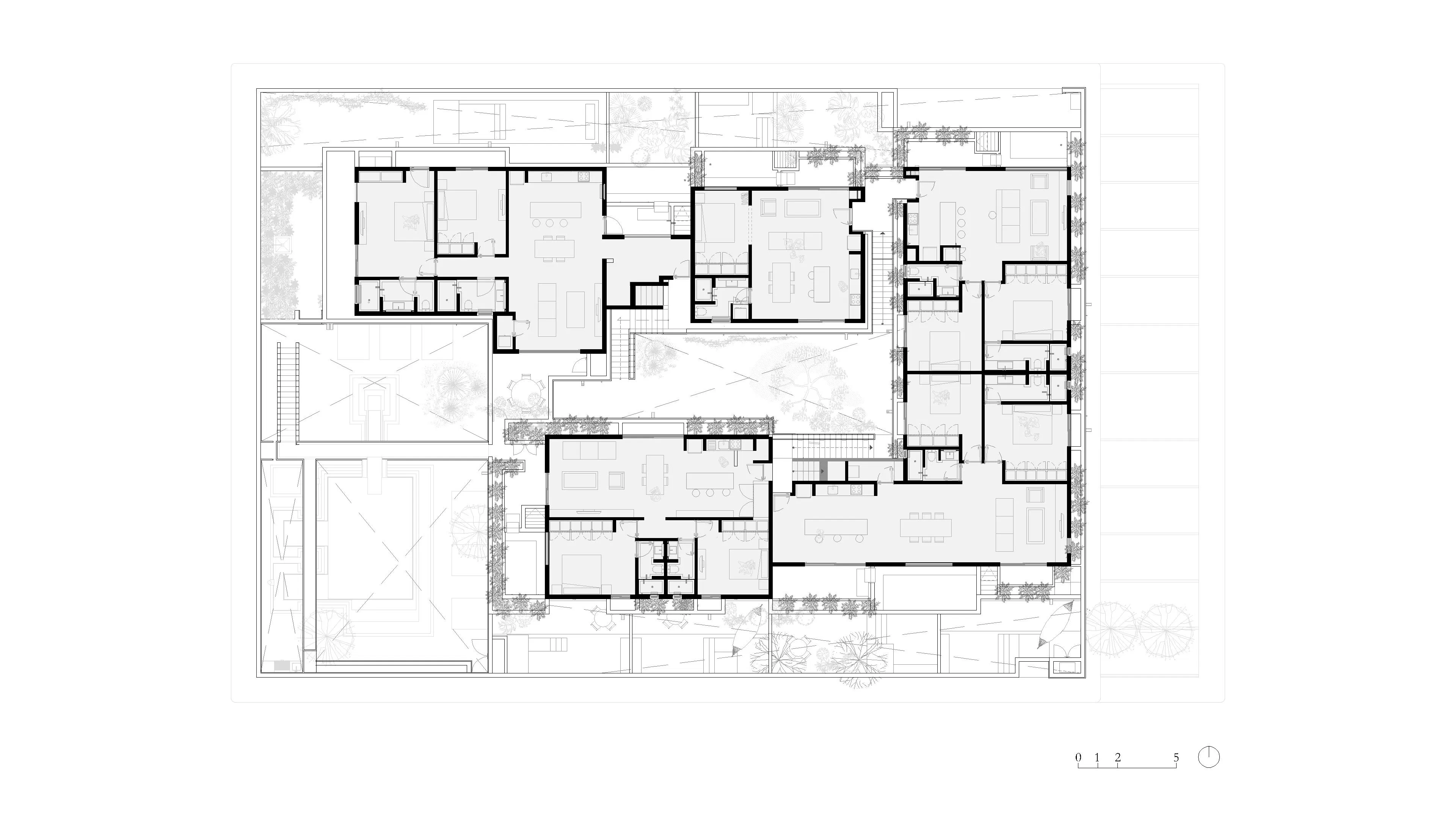
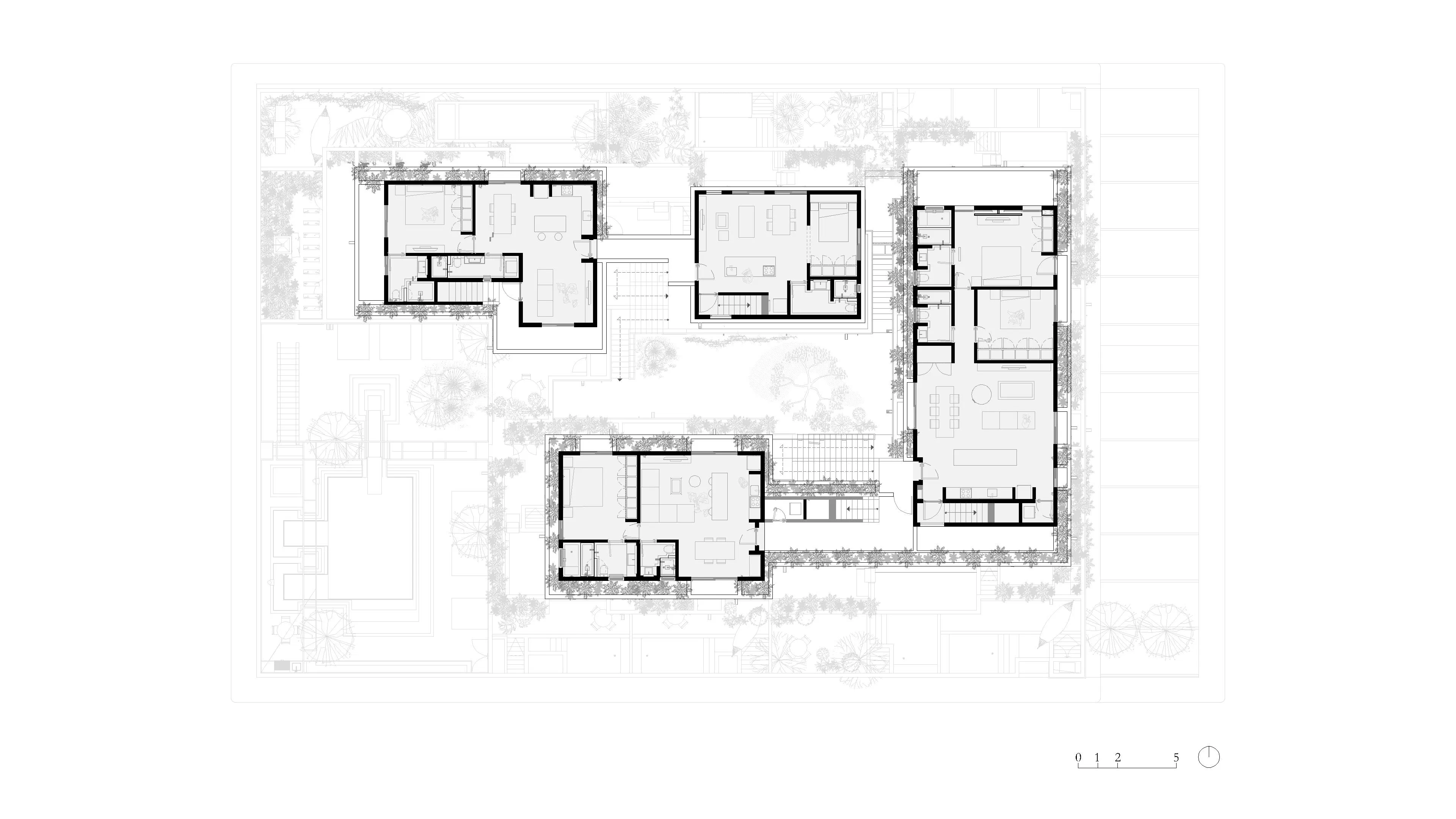
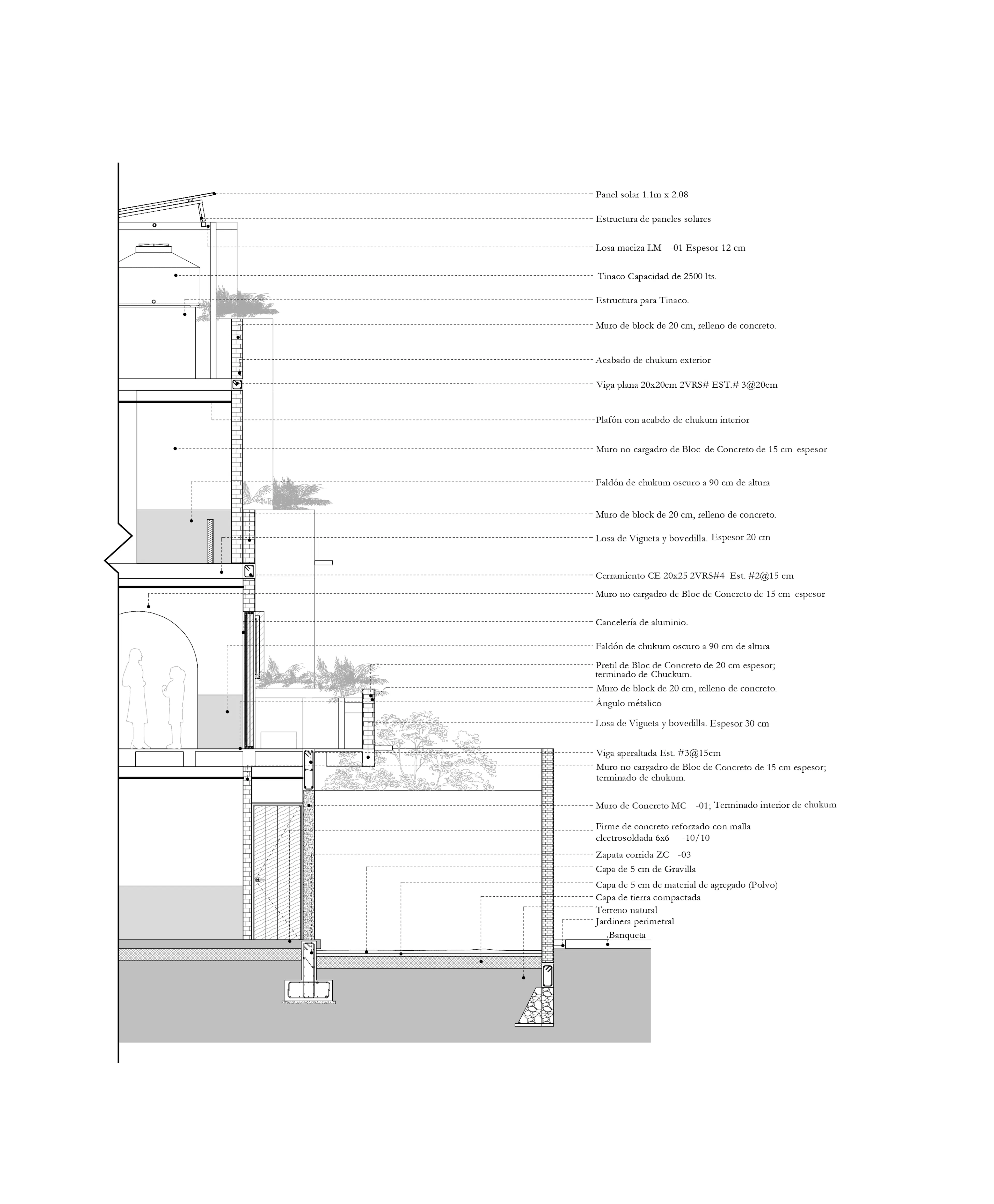
Hacienda Wabi is a residential complex nestled within the jungle, seamlessly blending into its natural surroundings. Promoted by Namus, a Tulum-based developer specializing in boutique projects and designed by RA!, the structure, composed of stairways and terraces, rises to create spaces that, over time, seem to surrender back to nature. The building’s design seeks to reinterpret the passage of time through the lens of ruin aesthetics. The staggered volumes, which recede skyward, evoke the ancient settlements that once lined the area, generating a layout that ensures a consistent flow of light and air to each block. The terraces are framed by perimeter planters that drape the façade in greenery, giving the impression of nature reclaiming the space. Inside, a large, fragmented courtyard creates intimate corners that provide access to the 15 apartments spread across three levels. Each level features terraces and winding pathways that lead to the semi-public areas, including the pool and recreational spaces. Each floor offers distinct features: the ground level boasts expansive gardens and pools, the first level includes terraces and jacuzzis, while the second level features roof gardens with views extending to the treetops. The building’s material palette draws from local textures, with stone anchoring the base and Chukum finishing the upper levels. Neutral tones allow the jungle to play a starring role, as vegetation becomes an integral part of the walls and slabs, blending seamlessly with the architecture.
Collaborators
1lead




































