Han Pao-Teh Memorial Museum
KRIS YAO | ARTECH
Tainan City, Taiwan
- Year
- 2022
- Category
- Cultural > Gallery and Exhibition Spaces
- Type
- Cultural
- Firm
- KRIS YAO | ARTECH
- Location
- Tainan City, Taiwan
- Award
- A+ 2023 · Finalist

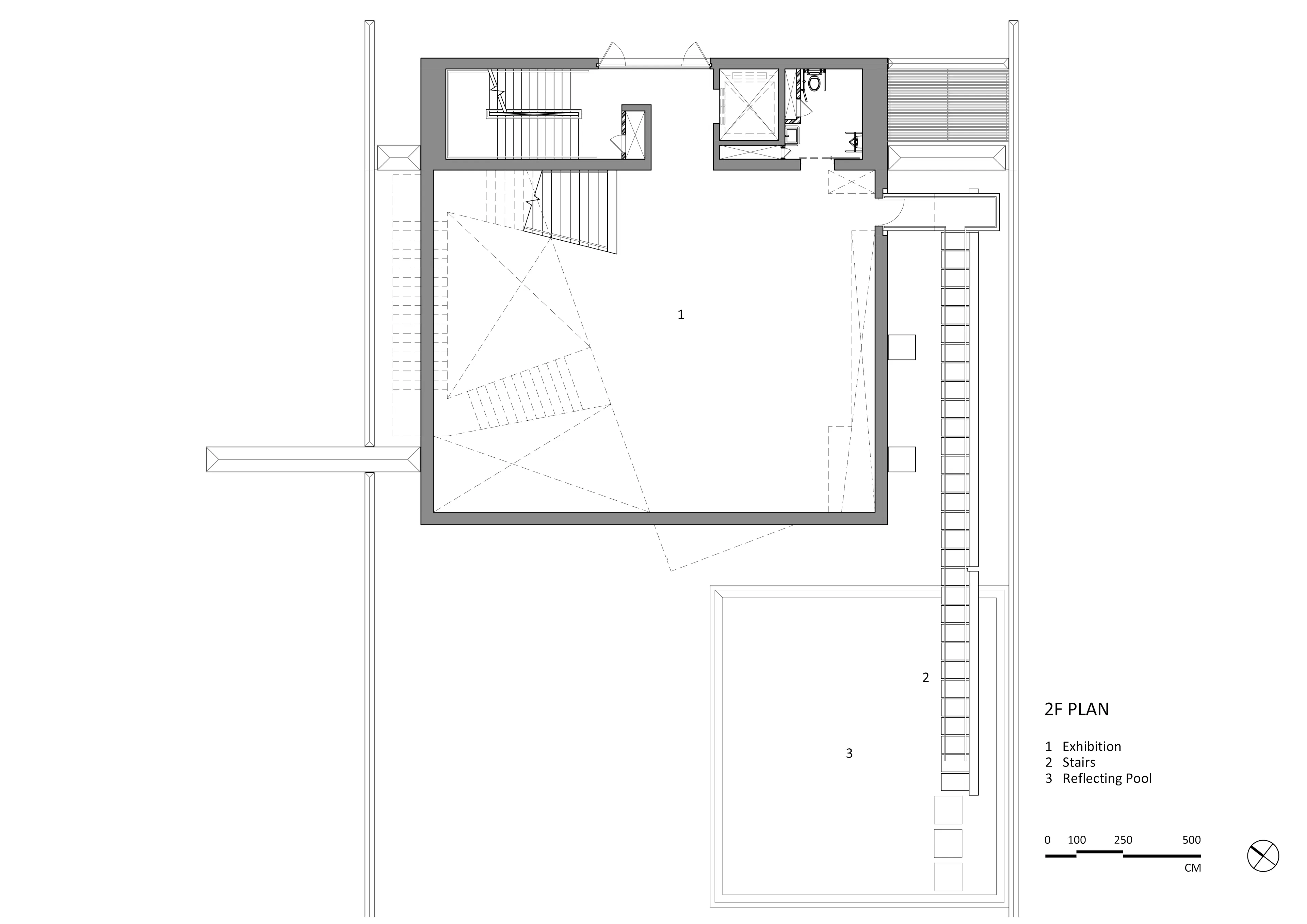
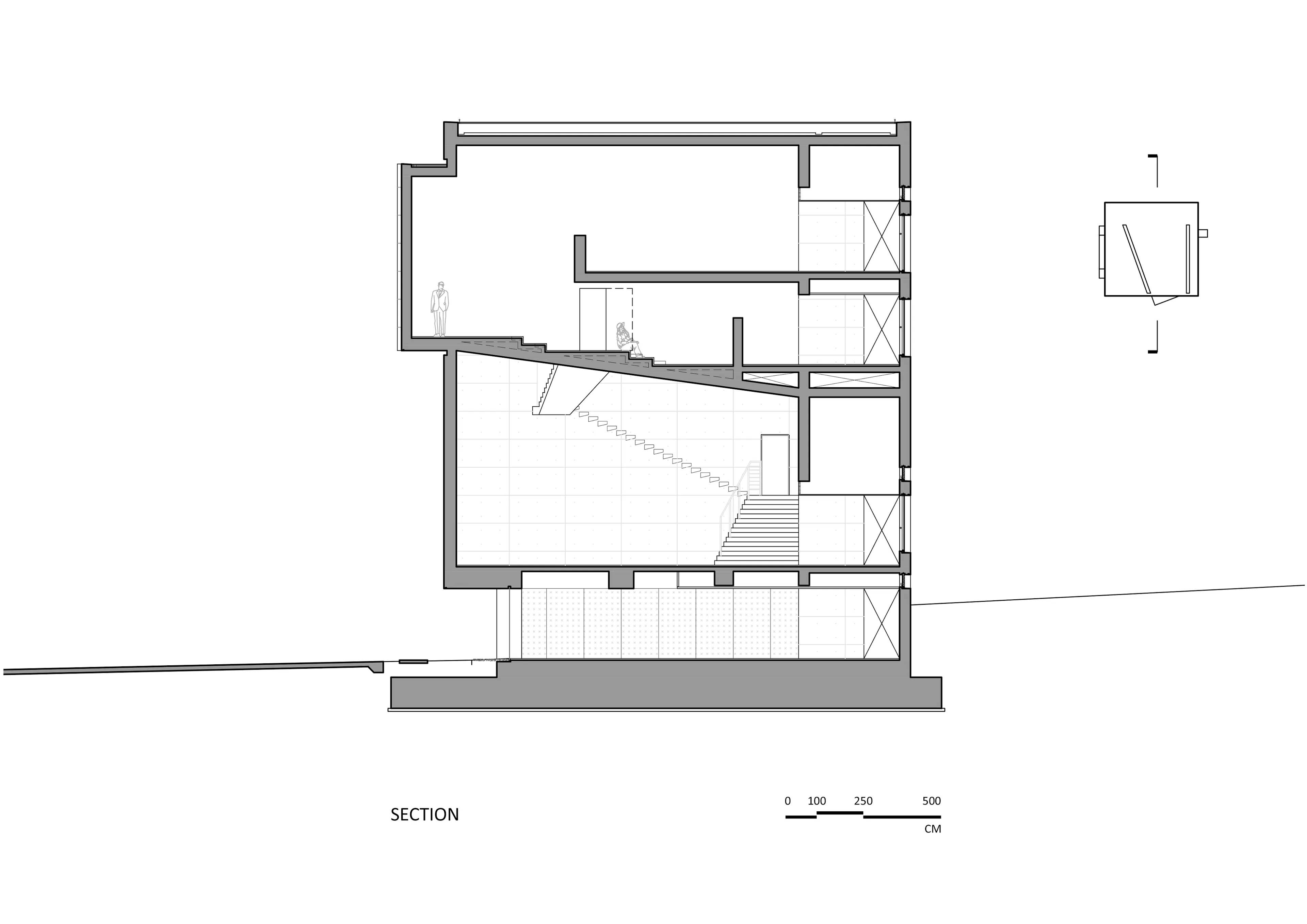
Han Pao-Teh is widely recognized as one of the seminal figures of modern architectural theory in Taiwan. In honor of his work and contributions in the arts field, a memorial museum at the Tainan University of the Arts, an educational institution established by Han himself, was brought forth to house and display his collections. As an embodiment of Han’s take on museums and values of education, the memorial museum seamlessly merges the exhibition and teaching spaces together. Abiding to the architectural concept of ‘a cube within a cube’, the simplicity of its geometric configuration brings great strength and power to its metaphoric meanings - multiple faces of the two cubes’ collision points to Han’s many faces of knowledge; and the robust quality of architectural concrete refers to his indomitable spirit. In terms of spatial arrangements, visitors enter the building from a low-rise stairs above the reflecting pool to the side of the cube. The main student exhibition space, an impressive 13.5-meters tall space is pleasantly intruded by an imposing cubic mass, as if untouched by the law of gravity. The floating cube holds the ‘Han Pao-Teh Permanent Exhibition Room’, a two-story, auditorium-like space that diagonally protrudes a little from the larger cube. The rotated cube caused a split on the wall where light ferociously came through. The sharp contrast of light and shadow creates a melodramatic atmosphere in the tall exhibition space. The large window with a view to the greenery leads the visitors to the theatrical staircase traveling between the interior and the exterior on an ascending counter-clockwise journey. Standing on the overhanging stairs outside the building, visitors can look back at the scenery where they came from, then make a turn into the ‘Han Pao-Teh Permanent Exhibition Room’. A narrow, gorge-like path draws an end to the ascending journey, and brings visitors to the top level of the building.
Collaborators
1































