← ProjectsA+ 2023 · Finalist
Headquarters of Municipal Art Society
UYANG ARCHITECTURE
- Year
- 2023
- Category
- Concepts > Architecture +Models and Rendering
- Type
- Commercial
- Firm
- UYANG ARCHITECTURE
- Award
- A+ 2023 · Finalist

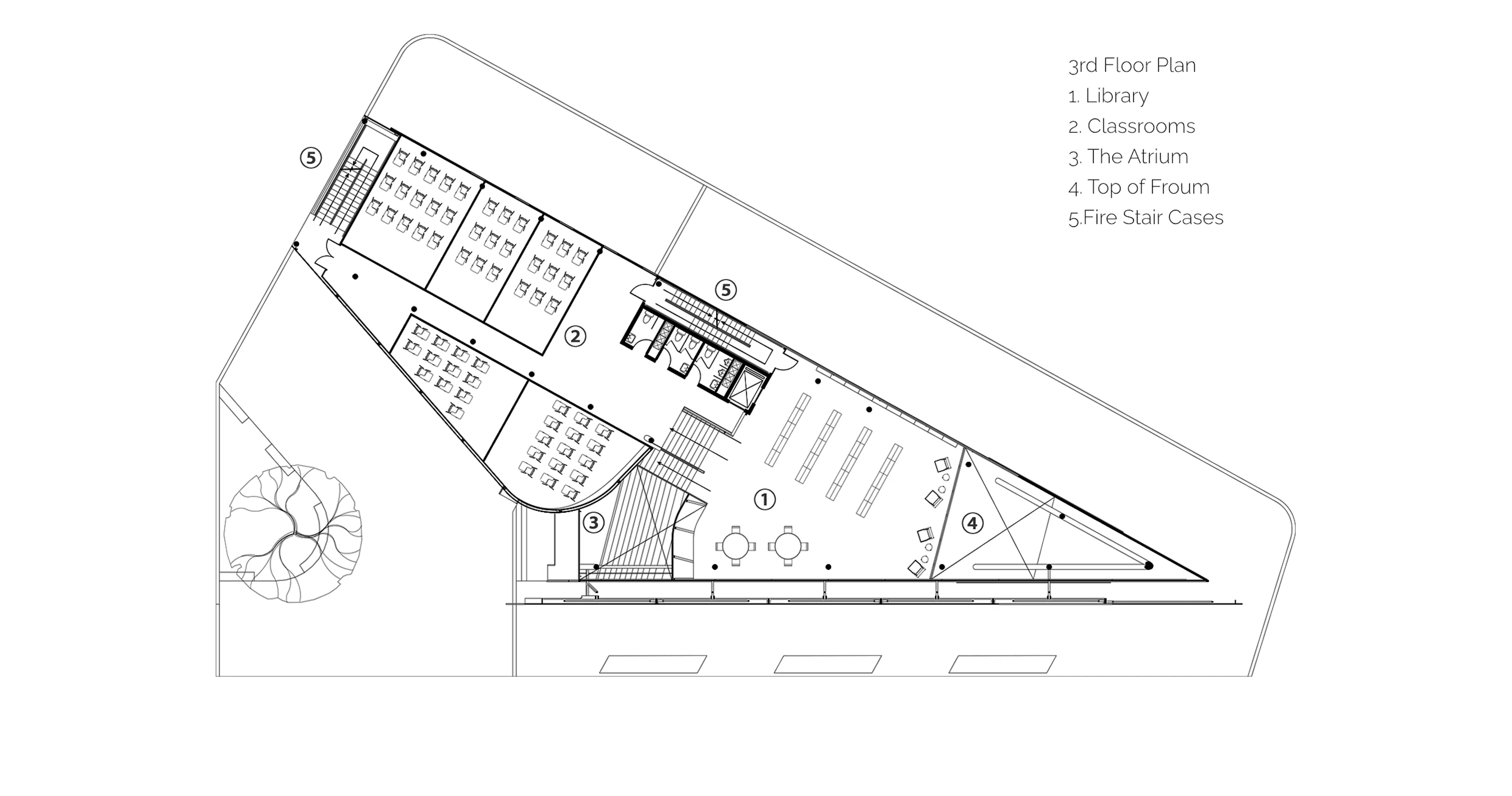
The Municipal Art Society is a nonprofit, membership-based organization in New York City that encourages thoughtful planning and urban design across the city to preserve history, culture, and neighborhoods. Through various strategies, all the different programs were able to be arranged from the most public café at the half underground to the most private office on the fourth floor, creating several public spaces that seamlessly connect to the site and are fully open to the citizens of New York City.
Collaborators
1






























