Heritage Lanes
Woods Bagot
Brisbane, Australia
- Year
- 2022
- Category
- Commercial > Office - High Rise (16+ Floors)
- Type
- Commercial
- Firm
- Woods Bagot
- Location
- Brisbane, Australia
- Award
- A+ 2024 · Finalist

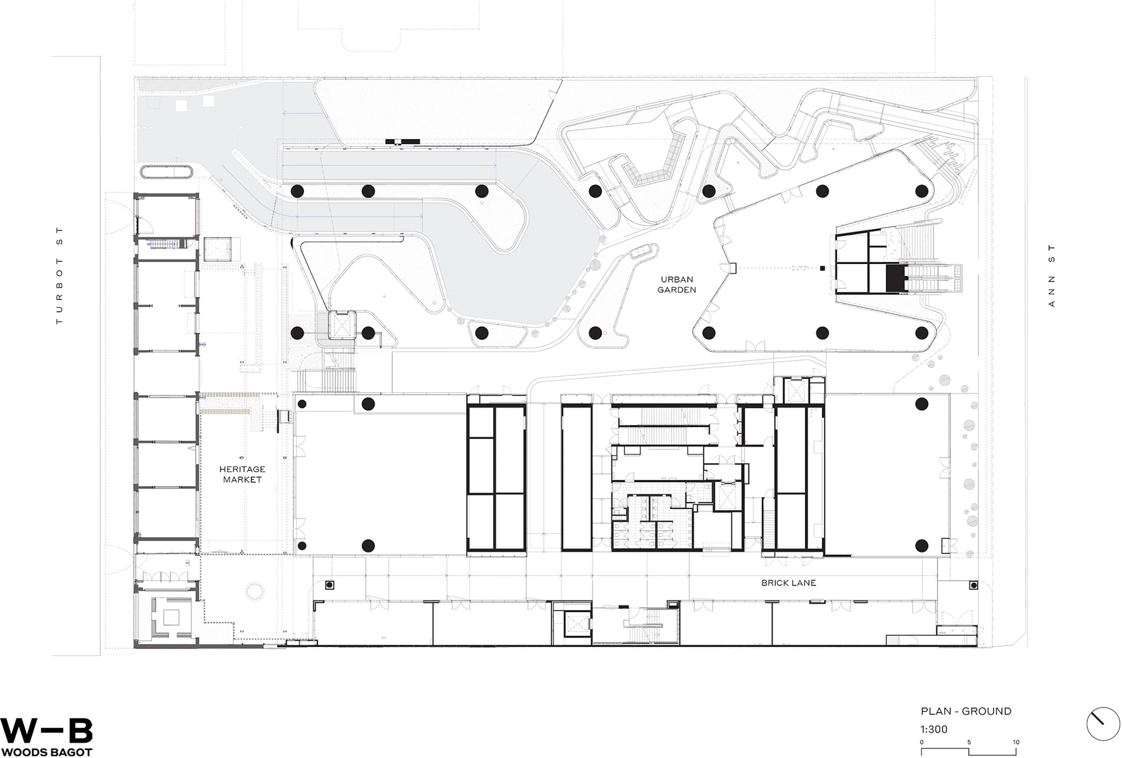
Heritage Lanes at 80 Ann Street is a 35-level office tower, incorporating more than 60,000 square metres of premium-grade office space. It’s one of Australia’s smartest buildings, embracing leading technology and sustainability initiatives. Restoring a significant portion of the former Brisbane Fruit and Produce Exchange on Turbot Street constructed in 1906, the ground plane of 80 Ann has been conceived as a modern open marketplace, creating 1,900-square metres of connective and activated public realm. The architects not only preserved the facade of the two-story masonry building, but also two of the original trading bays from the interior of the markets. Prior to construction, these bays were carefully disassembled, catalogued, preserved, and placed in storage before their reinstatement. The podium’s floating glass veil takes the form and profile of the original roof of the hundred-year-old Turbot Street market. The glass screen is ventilated and operable, the floors in the podium pulled away from the glass screen, with the resultant interstitial void space allowing views from the footpath up into the podium floors as well as letting in northern light into the urban garden. The veil lifts at the Ann St frontage to reveal an intuitive passage to the elevated lobby on level 1 – a porous platform, reinterpreting the Queensland veranda typology. The building integrates a strong connection to nature and technology, through the inclusion of lush landscaping sitting under an immersive digital screen above. The breathable floor on level 23 offers a new type of office tower experience. Conceptually, the floor has been designed as a mixed-mode garden terrace, a concept present throughout the tower design through the inclusion of cascading landscaped terraces on the northern facade. These provide biophilic connections through greenery, access to daylight and natural ventilation to the office floors. The crown of the tower takes cues from the architecture of the podium veil to create a recognisable feature in the Brisbane skyline. By linking the concept of immersive digital art to the crown of the building, the artwork can be experienced at a civic scale. Heritage Lanes targets the highest rating of the Green Building Council’s newly released rating tool, “Green Star Buildings”, alongside 5.5 Star NABERS Energy and 4.5 Star NABERS Water ratings and a Platinum Core and Shell WELL Certification.
Collaborators
2lead
collaborator



































