Holt Watters Field Camp
Colorado Building Workshop / University of Colorado Denver
- Year
- 2024
- Category
- Built > Sustainable Institutional Building
- Type
- Industrial
- Firm
- Colorado Building Workshop / University of Colorado Denver
- Award
- A+ 2024 · Popular Choice

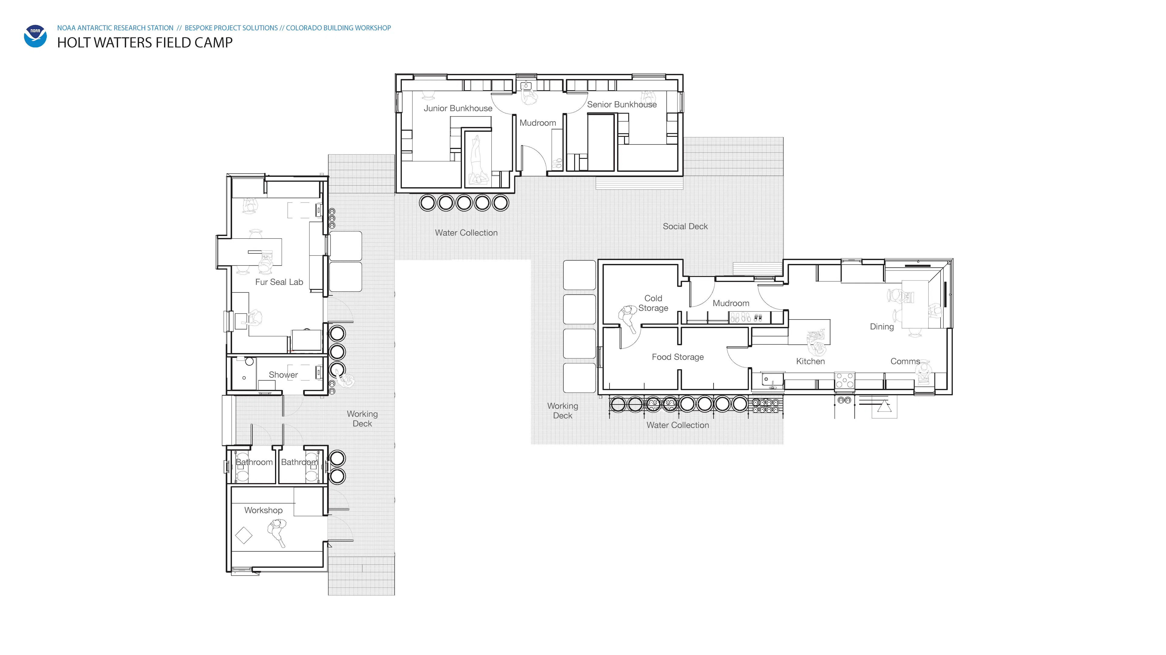
The Antarctic Ecosystems Research Division of NOAA Fisheries conducts scientific research on the population dynamics, behavior, diet, and survival of Antarctic seabirds and pinnipeds on Livingston Island in Antarctica. After 20 years in the harsh Antarctic climate, their modest research facility fell into disrepair and required replacement. The 2000 sq. ft. Holt Watters Field Camp was conceived to replace the deteriorating structures. Three buildings comprise the main campus; the fourth, a remote penguin research facility, is a short one-mile hike away. The remoteness of the field station, which is only accessible by zodiac, required a pre-fabricated, lightweight, highly insulated, and nearly maintenance-free building solution. One that could be pre-fabricated offsite and reassembled in less than two months during Antarctica’s austral summer. The flat-packed building components were required to be no larger than 1’x4’x16’ to fit on zodiacs and light enough to be lifted by no more than four people. The offset gable roof forms of the two main buildings take their shape to collect rainfall, the only source of water for the scientists. The long, thin building behind the two main structures acts as a wind fence, keeping snow from accumulating in the courtyard. The long building also houses the P.V. array, which provides the only source of power for the camp. Functionally, the light-interfering color stainless steel cladding and stainless roofing help create a maintenance-free facade over a structurally insulated panel core fitted with triple pane windows. Water-resistant Meranti plywood clads the interior. The impact of the new buildings will enable the continuation of NOAA Fisheries’ long-term science-based, ecosystem-based approaches to management in the Southern Ocean and bring essential data to the scientific community around the globe. The project was a collaboration between students and faculty from the University of Colorado Denver’s Colorado Building Workshop, acting as architect and prefabrication contractors, and Bespoke Project Solutions, who oversaw the construction both in Denver and Antarctica, ultimately acted as the project prime. We are grateful to the many collaborators who helped with the project, including KL&A Engineers, AE Design, Dake Collaborative, and OZ Architects.
People
2Collaborators
1































