Imperia Horizonte
CORREA + FATEHI / ODD
Quito, Ecuador
- Year
- 2024
- Category
- Residential > Multi Unit Housing - Mid Rise (5 - 15 Floors)
- Type
- Residential
- Firm
- CORREA + FATEHI / ODD
- Location
- Quito, Ecuador
- Award
- A+ 2025 · Finalist

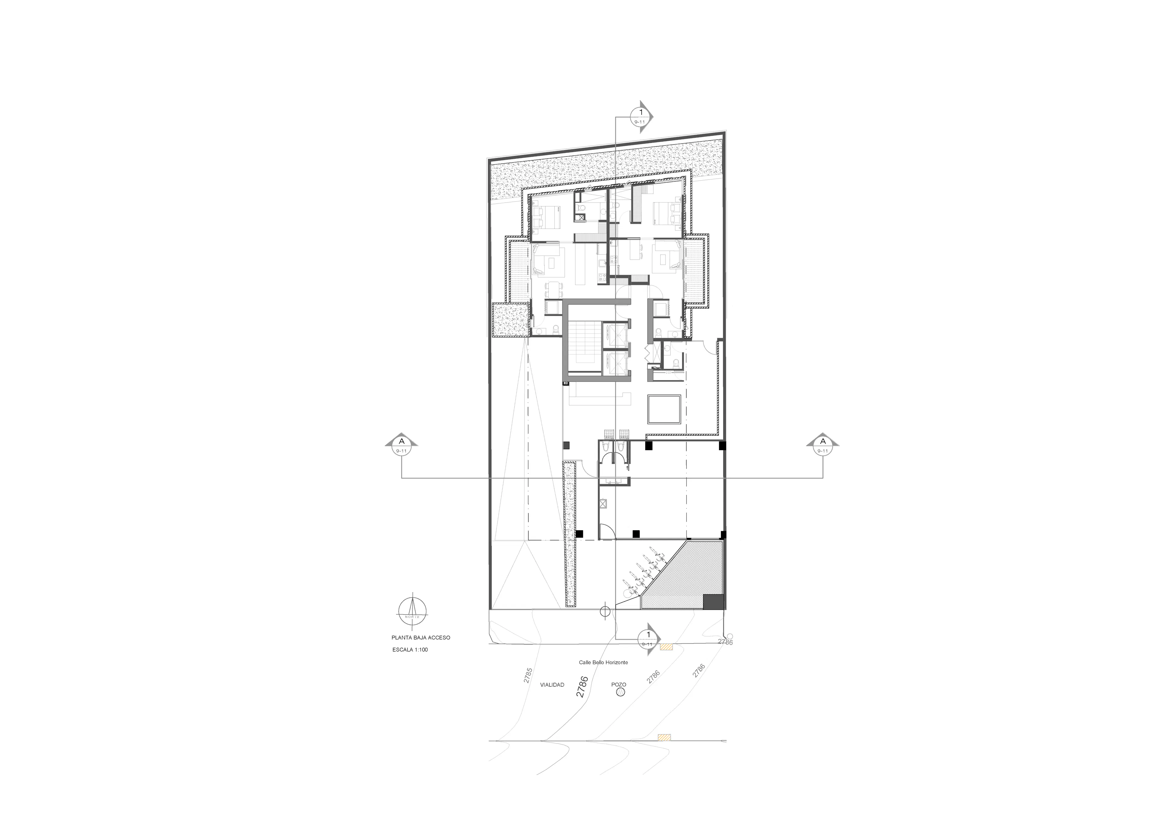
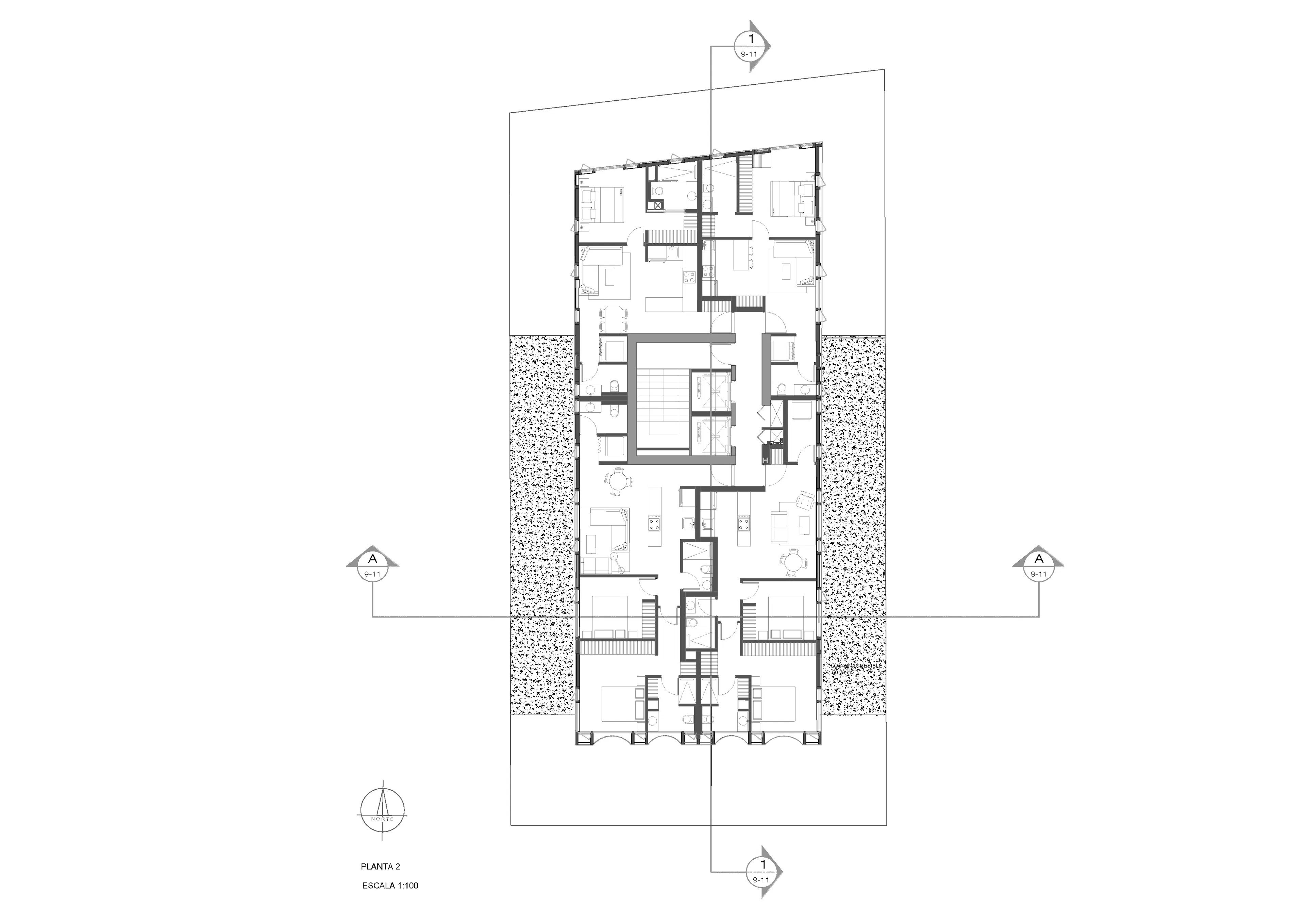
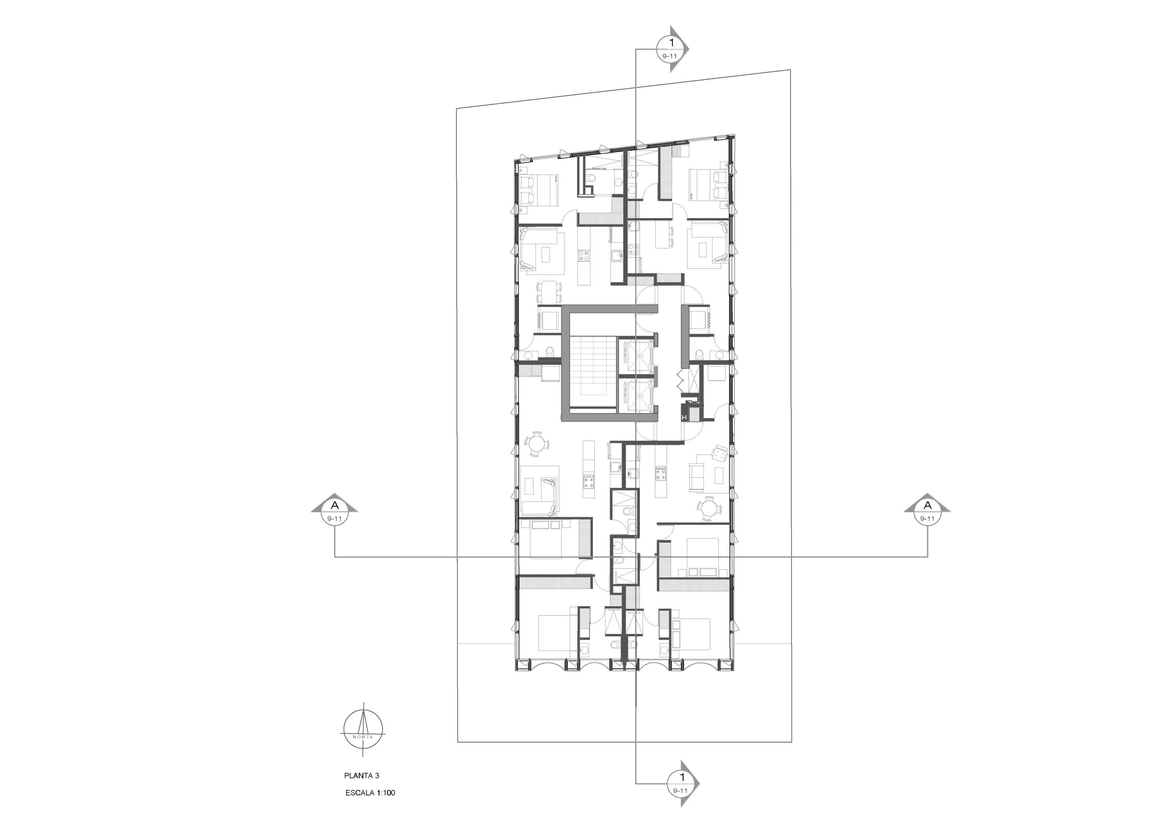
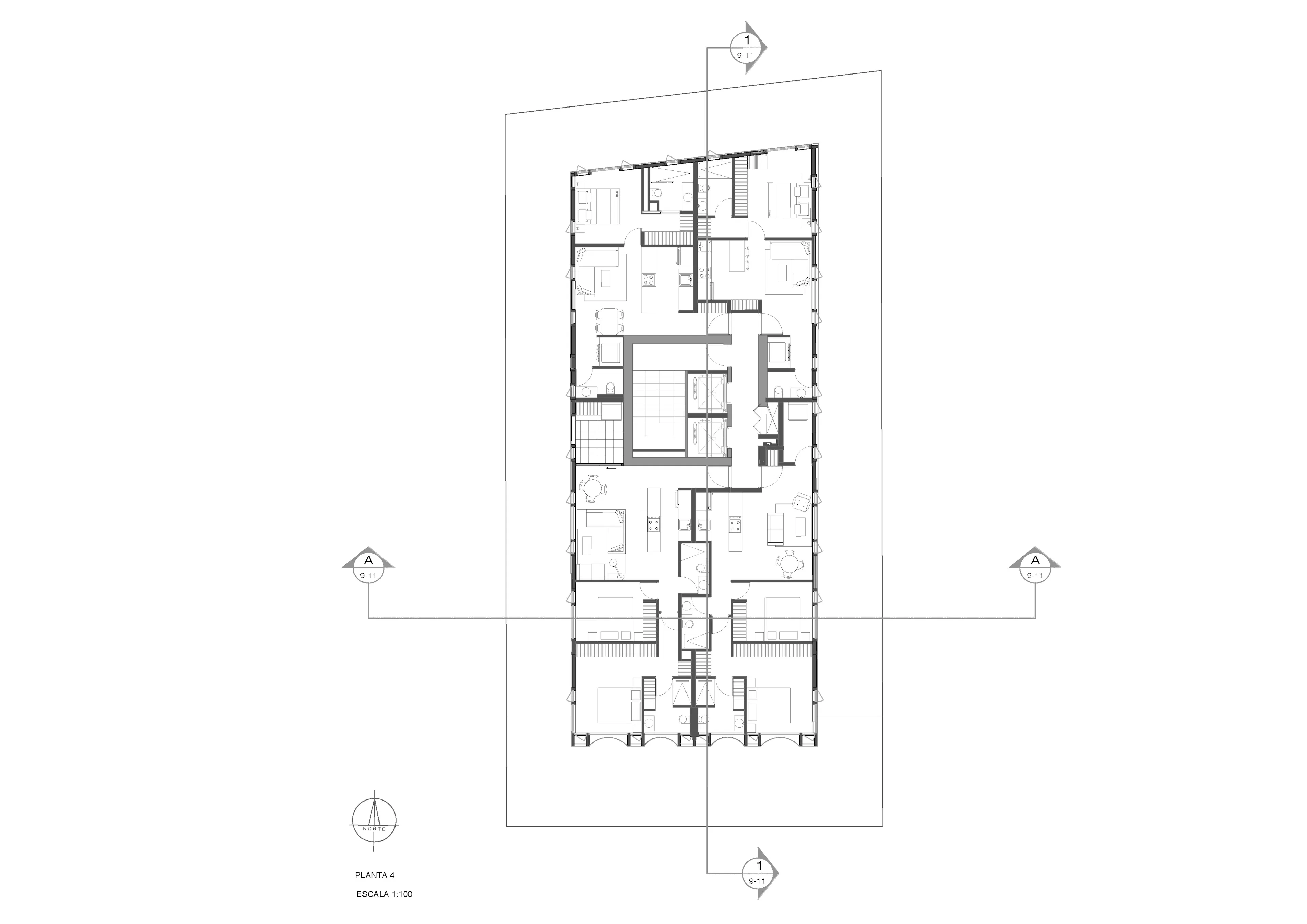
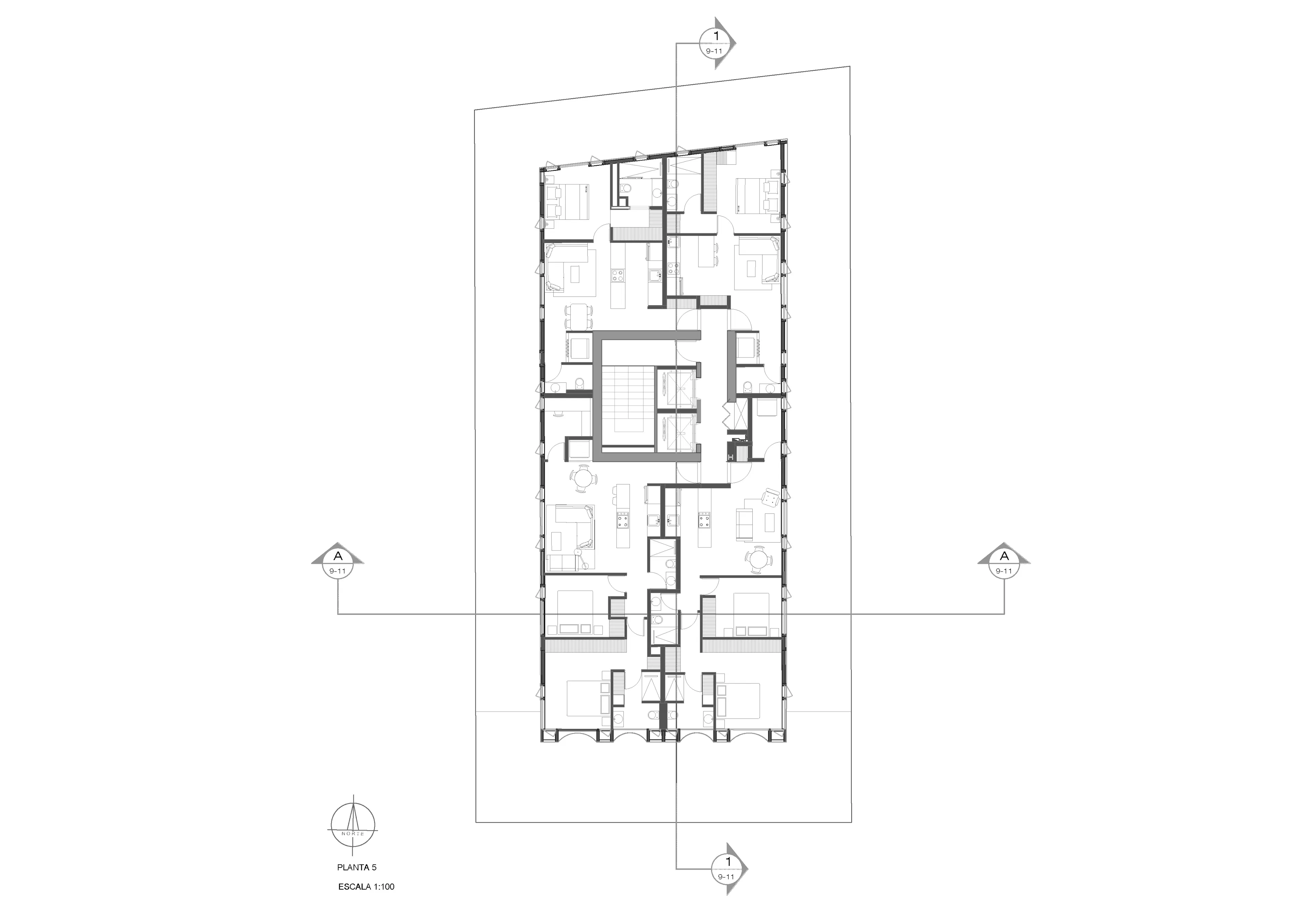
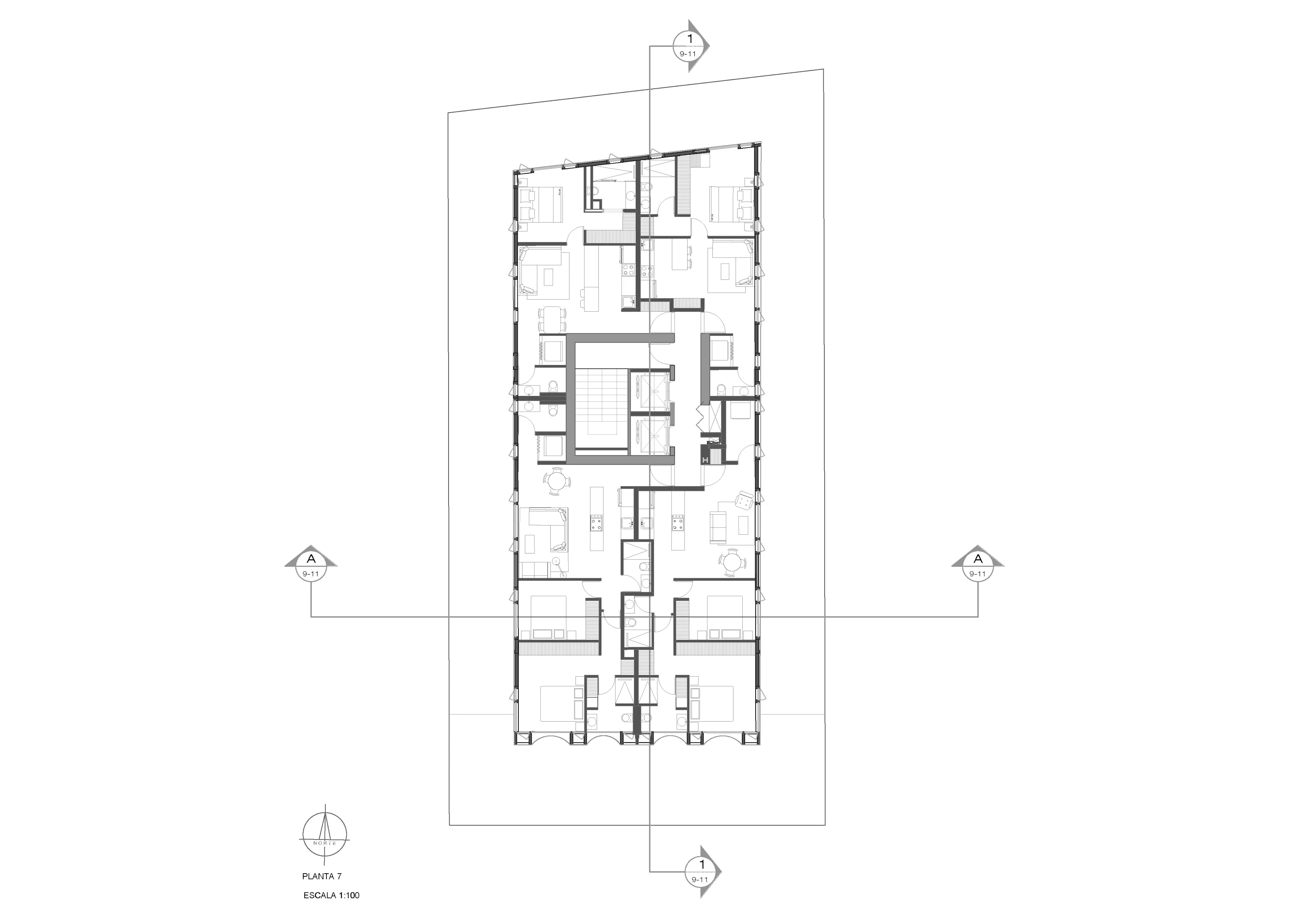
Imperia Horizonte addresses the challenges of urban density by reinterpreting minimalism, not merely as aesthetic restraint, but as a strategy to integrate diverse elements into a cohesive whole. This approach allows the building to assert a distinct presence while harmonizing with its surroundings. The façade features a structured grid softened by orthogonal planters and semi-circular transitions. These elements integrate vegetation into the building’s verticality, blurring the boundary between natural and built environments. The semi-circular forms ease the rigidity of the grid, creating an interplay between precise geometry and organic shapes, reflecting urban life’s inherent contrasts. A monochromatic white palette emphasizes the building’s sculptural qualities, focusing on light and shadow rather than ornamentation. This minimalist choice enhances the building’s role as a responsive element; as daylight shifts, the façade’s texture variations create a dynamic effect, reflecting the changing atmosphere. The clean white surface provides a calm, cohesive counterpoint to the urban fabric’s complexity, allowing the structure to stand out while subtly mirroring its environment. This 9-story building orients its living spaces to engage the semi-circular transitions and integrated planters. Glazing extends from ceiling to planter edge, offering residents generous views and a direct connection to vegetation—softening the boundary between inside and out. In Imperia Horizonte, architecture is an intervention that reconfigures the relationship between density and intimacy, nature and structure. It reclaims the idea of living architecture within the city: a structure that, instead of merely occupying space, orchestrates a delicate balance between chaos and cohesion. Minimalism here is not silence but a set of rules that manage urban noise—allowing fragments of nature to infiltrate high-density living. This isn’t simply a building, but a mechanism—a machine for experiencing urbanity, allowing architecture to breathe, soften, and recalibrate the rhythms of everyday life.
People
2Collaborators
1




































