Jaharis Recital Hall and Roberts Music Building at Haverford College
William Rawn Associates, Architects, Inc
Haverford, United States
- Year
- 2021
- Category
- Institutional > Higher Education and Research Facilities
- Type
- Cultural
- Firm
- William Rawn Associates, Architects, Inc
- Location
- Haverford, United States
- Award
- A+ 2024 · Finalist

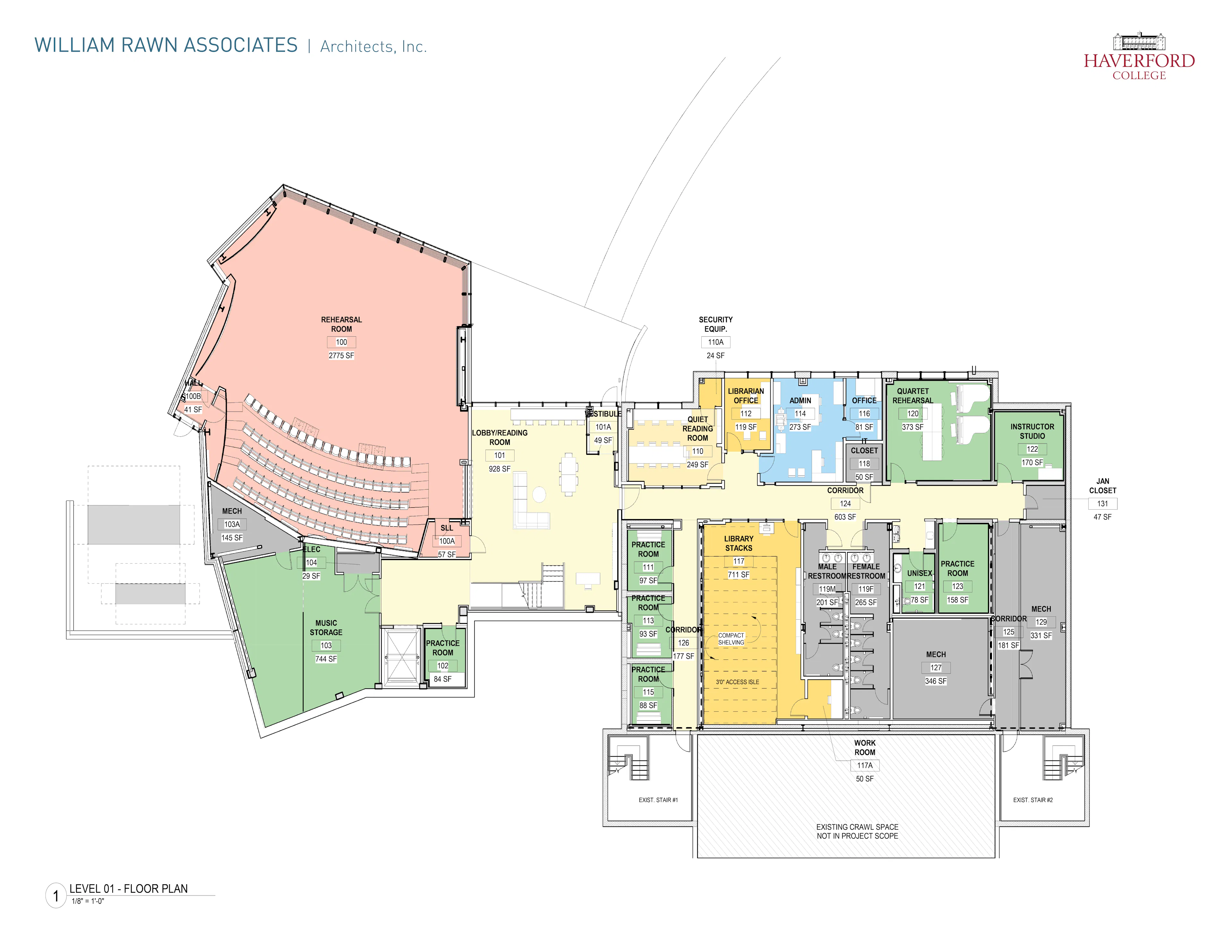
The Music Building at Haverford College is located at the end of a sweeping natural landscape that serves as the College’s front lawn. This setting inspired the creation of an outward looking building that invites participation in the arts, reflects the pedagogy of this liberal arts college, and puts music instruction in direct connection with this arboretum campus. The building is organized around a two-story lobby that serves as the “living room” for the building and where all activities are visible including the more discrete activities of instruction, rehearsal, performance, and research. The lobby itself serves as the reading room for the music library and offers portals to the main rehearsal/performance space, the large music classroom, and the faculty offices. This space captures two entrances, providing a short-cut through the building that encourages non-majors to discover the music-making happening within. Haverford’s campus is itself an arboretum, with expansive open spaces, hilltop quadrangles and large heritage trees. The building is set so that the ground plane extends directly out into the landscape with views of Duck Pond to the east serving as a backdrop to performances. Natural light enters the Rehearsal/ Performance space and the Lobby from multiple directions. The campus’ main quad, located at the top of the hill, is loosely enclosed by elemental stone buildings – the gaps between buildings providing powerful connections to the broader landscape. The Music Building reconciles two seemingly contradicting objectives: providing a front door visible from the quad, while preserving the vista between two existing stone buildings. Acoustical considerations of isolation, adjustability (tuning the hall for a wide range of ensembles), and reflection (leading to carefully sculpted surfaces) guided the project and led to its special shape and form to ensure a home for music with acoustics of the highest level.
Collaborators
5collaborator
collaborator
collaborator
collaborator








