Jerusalem Academy Music & Dance Ari Kushner building
HQ Architects
Jerusalem, Israel
- Year
- 2023
- Category
- Details > Architecture +Stone
- Type
- Educational
- Firm
- HQ Architects
- Location
- Jerusalem, Israel
- Award
- A+ 2024 · Special Mention

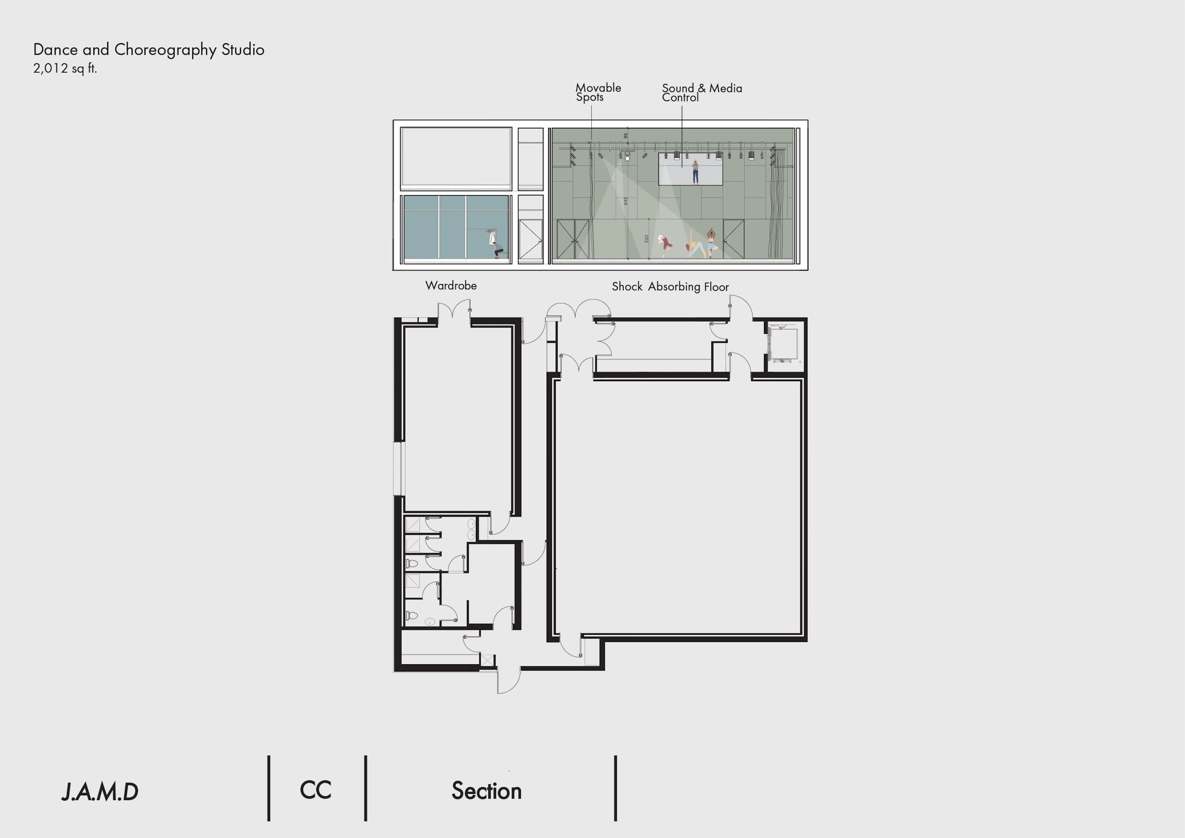
Designed by Tel Aviv-based practice HQ Architects and the New York firm HWKN Architecture, the new Advanced Inter-Arts Center building significantly expands this famed institution’s presence in Jerusalem. The Academy sought to confront a persistent programmatic flaw in its operation as a world-renowned and international institute of performing arts. While its curriculum is strong, the campus lacked a proper performance space or a stage of any kind. Thanks to HQ’s and HWKN’s bold vision, the new 2,500 m² building sits adjacent to the original JAMD building. An elegant, playful, stone façade now extends across the entire complex, giving it a sense of unity and a contemporary, welcoming identity. This new addition greatly expands JAMD’s ability to fulfill its mission. Founded in 1933 by violinist Emil Hauser, this now world-famous institution, even though constantly expanding, has never had performance spaces commensurate to its needs. By adding new choreography, jazz studios, vocal and opera studios as well as a 115-seat music recital hall, the dreams of JAMD’s founder can be fulfilled. HQ Architects’ design celebrates the interactive philosophy of an institution dedicated to bringing artists together across disciplines. The new presenting and rehearsal spaces are arranged around an open, central gathering area. Dynamic shared environments enhance and promote the interaction and cross-fertilization between different disciplines. Another design challenge was how to combine the new building with the existing ones: the old Rubin main building a former building of the Hebrew University that housed the School of Social Work and Welfare and the Geller building, a subsequent purpose-built addition to the north. Thus, HQ Architects’ design opted to place the new building below the former and slightly to the right. This created a visual sense of a unified complex, fitting for an institution now housed under three different roofs. HWKN’s curiosity-generating façade extends in front of both the existing buildings and the new addition. Comprised of unfinished, Jerusalem stone blocks, turned 45 degrees on their side, it is simple yet inspiring. The change in dimensions of some of the square blocks dissolves the solid building facade and turns it into a welcoming gesture. It balances the geometric order, natural materiality, and intentional imperfection all in a playful fashion, and ends up making the building unique, lovable, progressive, yet traditional, altering our expectations of what a new building should look like. HQ Architects’ building design and spatial arrangement features a set of interior spaces that respond to the diverse uses and requirements of the Music and Dance Academy. In total, the Academy accommodates a 97,5 m² Jazz –Improvised Music Studio with 90 seats, a 60 m² Multipurpose Classroom, a 103 m² Vocal and Opera Studio, a 187 m² Choreography Studio, a 165 m² Solo & Chamber Music Recital Hall with 115 seats, a 76,4 m² Greenroom including wardrobe and warehouse spaces, 5 Teaching Rooms, and 8 Practice Chambers. Entering the building, there is a unique communal area – the main entrance and atrium space, which becomes a meeting place and community hub for students and faculty from all disciplines. The atrium space continues the materiality of the facade by using the same stone, but in different sizes and placed on the floor instead of the wall. The space becomes a continuation of the exterior, creating a smooth visual and textural journey from the outside towards the inside. Exposed concrete is another key material that defines the atmosphere of the interior, as found in the atrium and the main circulation of the building—both stairs and bridges, following the same material language. The iconic staircase dominates the space, emphasizing the communal use of the area as the main gathering space for students, bringing together people from the music and dance departments—a key characteristic behind the academy’s new premises and mission. The scale and dramatic presence of the staircase creates an iconic element in the middle of the space that has an almost sculptural feel. On the left side of the atrium there are fabric strips, acting as a barrier between the atrium and the classroom corridor. The fabrics are an essential component, as they provide acoustic insulation between the communal areas and the classrooms. Additionally, they highlight this division between private and communal use, acting as a barrier between the two.
People
4Collaborators
3





























