Jiangmen Archives Center
Architectural Design & Research Institute of Tsinghua University Co., LTD.
Jiangmen, China
- Year
- 2023
- Category
- Institutional > Government and Civic Buildings
- Type
- Cultural
- Firm
- Architectural Design & Research Institute of Tsinghua University Co., LTD.
- Location
- Jiangmen, China
- Award
- A+ 2024 · Special Mention

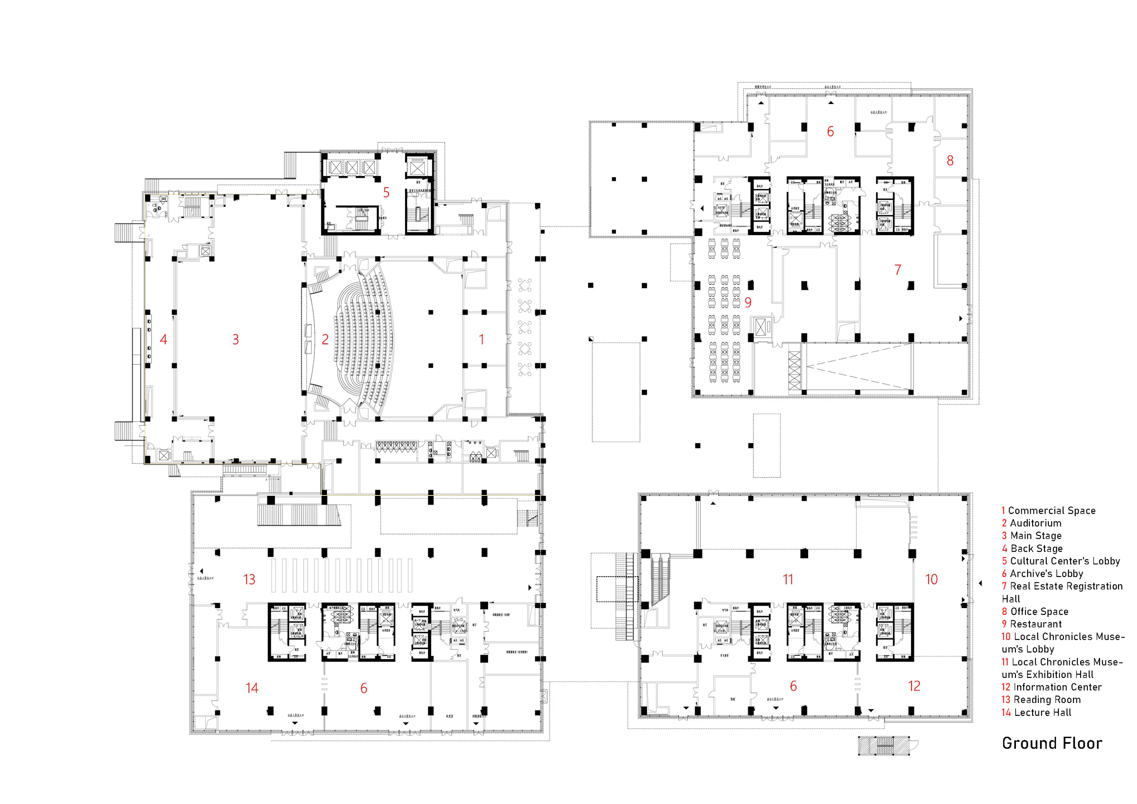
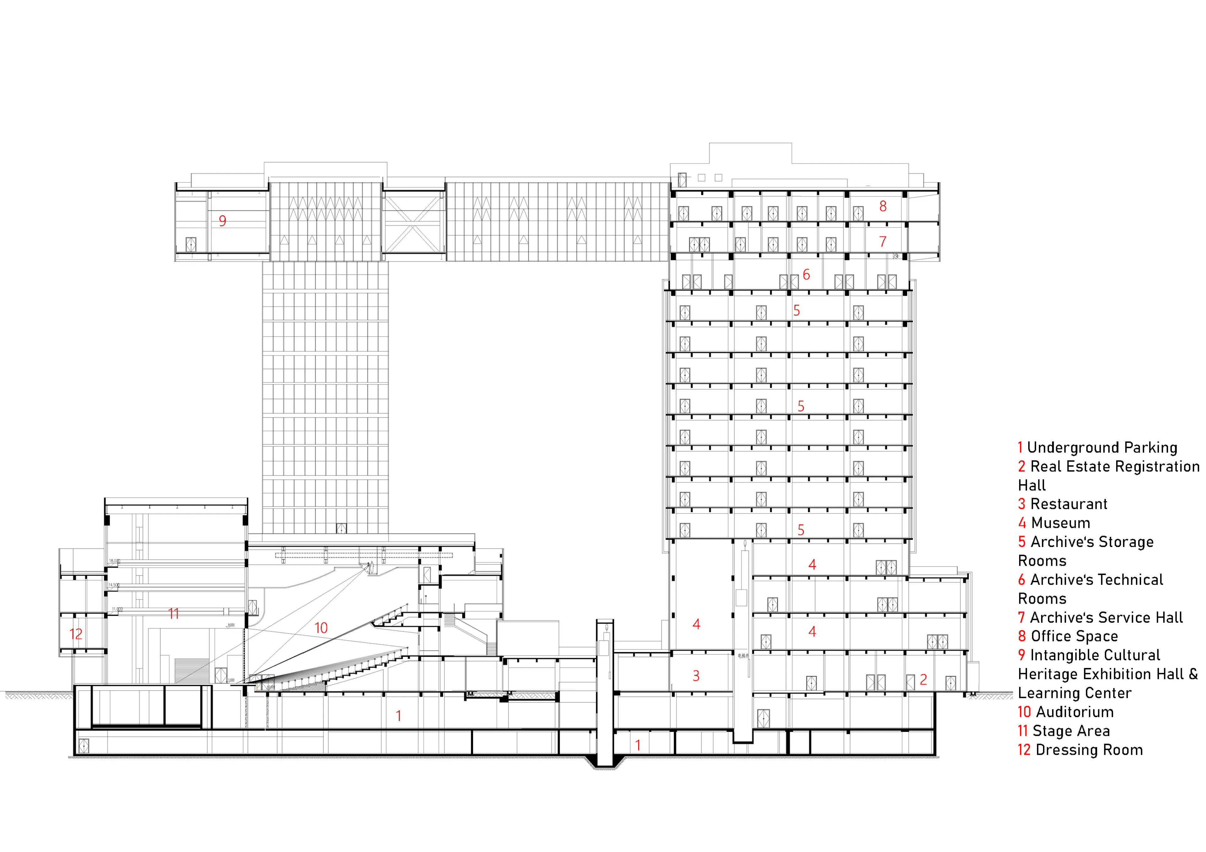
The Jiangmen Archives Center stands as a groundbreaking project, challenging conventional notions of a multi-functional government service platform by redefining its role as an indispensable part of the urban public space. This project not only serves as a cultural complex but also as a civic center, fostering collaboration among various stakeholders. At its core, this project revolutionizes the utilization of space by strategically placing key public service functions on the lower floors of the building. This innovative approach not only optimizes the public service capacity of the archive center and public cultural venues but also symbolizes a commitment to returning civic space to the city. By seamlessly integrating the cultural center, art gallery, and other service areas of the archive center at the top of the building with a wide field of vision, the design achieves high public visibility and accessibility. The unique architectural design, featuring a high-elevation connected four-tower high-rise structure, stands out as a pioneering endeavor in China. Four towers are connected as a whole by rigid connections composed of steel trusses. Drawing inspiration from the Kaiping Diaolou, the structure maintains a square and stable shape, paying homage to the rich cultural heritage of Wuyi. The interior design also reflects the essence of Jiangmen's cultural aesthetics, employing a concise design language that acts as a captivating display window for the city's rich characteristics. This innovative fusion of tradition and modernity establishes a distinctive visual identity for Jiangmen. In addition to its architectural significance, the project emphasizes sustainability, incorporating flexible design elements that adapt to evolving urban needs. The platforms, elevated floors, and roof gardens seamlessly connect upper and lower public spaces, integrating green spaces into urban areas. This intentional integration not only enhances the overall functionality of the space but also underscores our dedication to environmental consciousness.































