Jinshan Neighbour Center
EAST CHINA ARCHITECTURAL DESIGN & RESEARCH INSTITUTE CO., LTD | STUDIO DINGSHUN
- Year
- 2023
- Category
- Sports & Recreation > Unbuilt Sports and Recreation
- Type
- Commercial
- Firm
- EAST CHINA ARCHITECTURAL DESIGN & RESEARCH INSTITUTE CO., LTD | STUDIO DINGSHUN
- Award
- A+ 2023 · Popular Choice

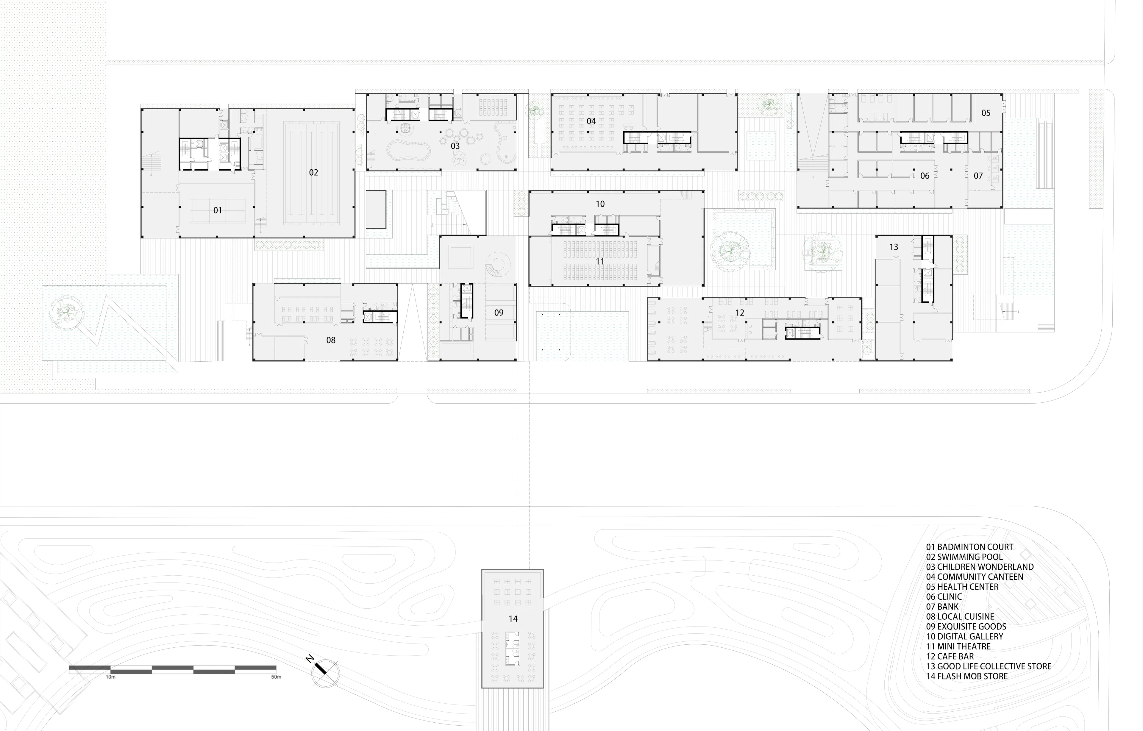
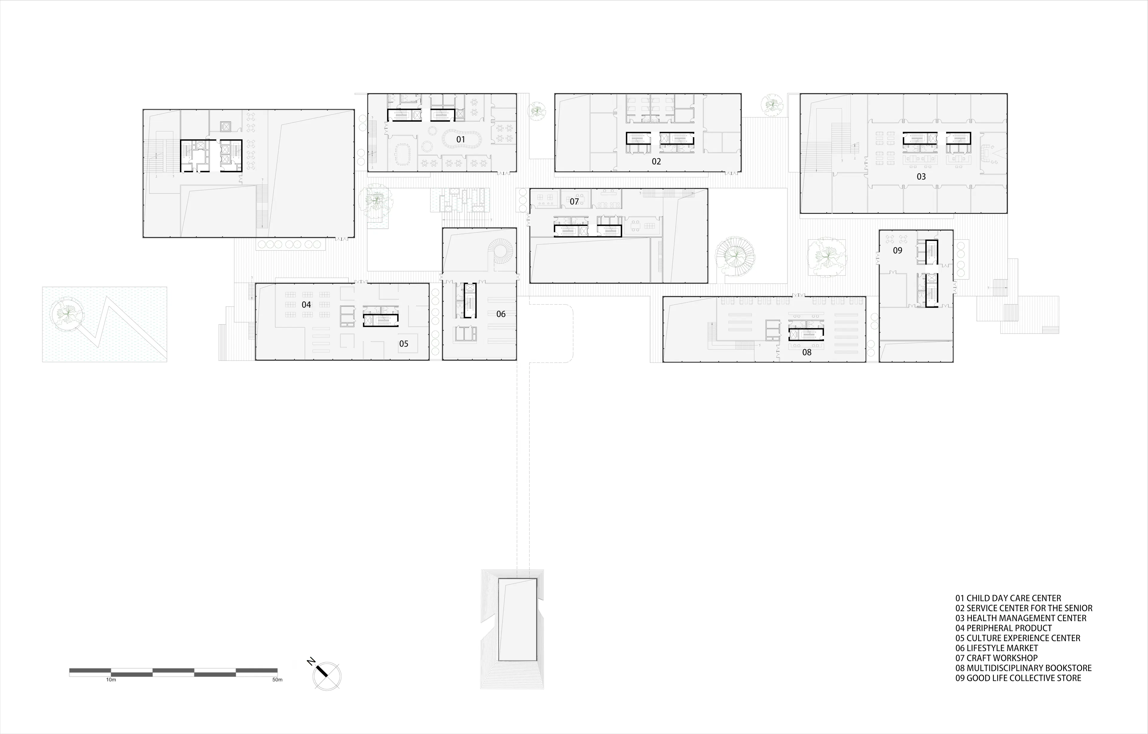
The Neighborhood Center was located near Huilong Lake, at Jinshan District, which has a profound historical and cultural heritage. With a total floor area of 38,000 square meters, the project creates an urban living room of poetic dwelling and stimulates community vitality, through an innovative paradigm. Through an artistic reinterpretation and architectural abstraction of local rocks, floating islands, sails and waves, we create an interconnected cluster that embraces the garden and the city, like silhouettes in a traditional Chinese ink painting. The brick walls and the laneways at the bottom, as well as the mountain form at the top, fabricate an intertwined detour experience of discovery, that are linked through the cloud-bridges and platforms. Each individual volume has its distinctive function: children wonderland, social service, living facilities, creative sports and recreations, entertainment, catering, retails, folk culture exhibitions and immersive. These interactive spaces and scenes are targeting groups of all ages, and will bring unforgettable city memories.
















