Jinju National Museum
STLarchitects
Jinju-si, South Korea
- Year
- 2025
- Category
- Cultural > Unbuilt Cultural
- Type
- Cultural
- Firm
- STLarchitects
- Location
- Jinju-si, South Korea
- Award
- A+ 2024 · Finalist

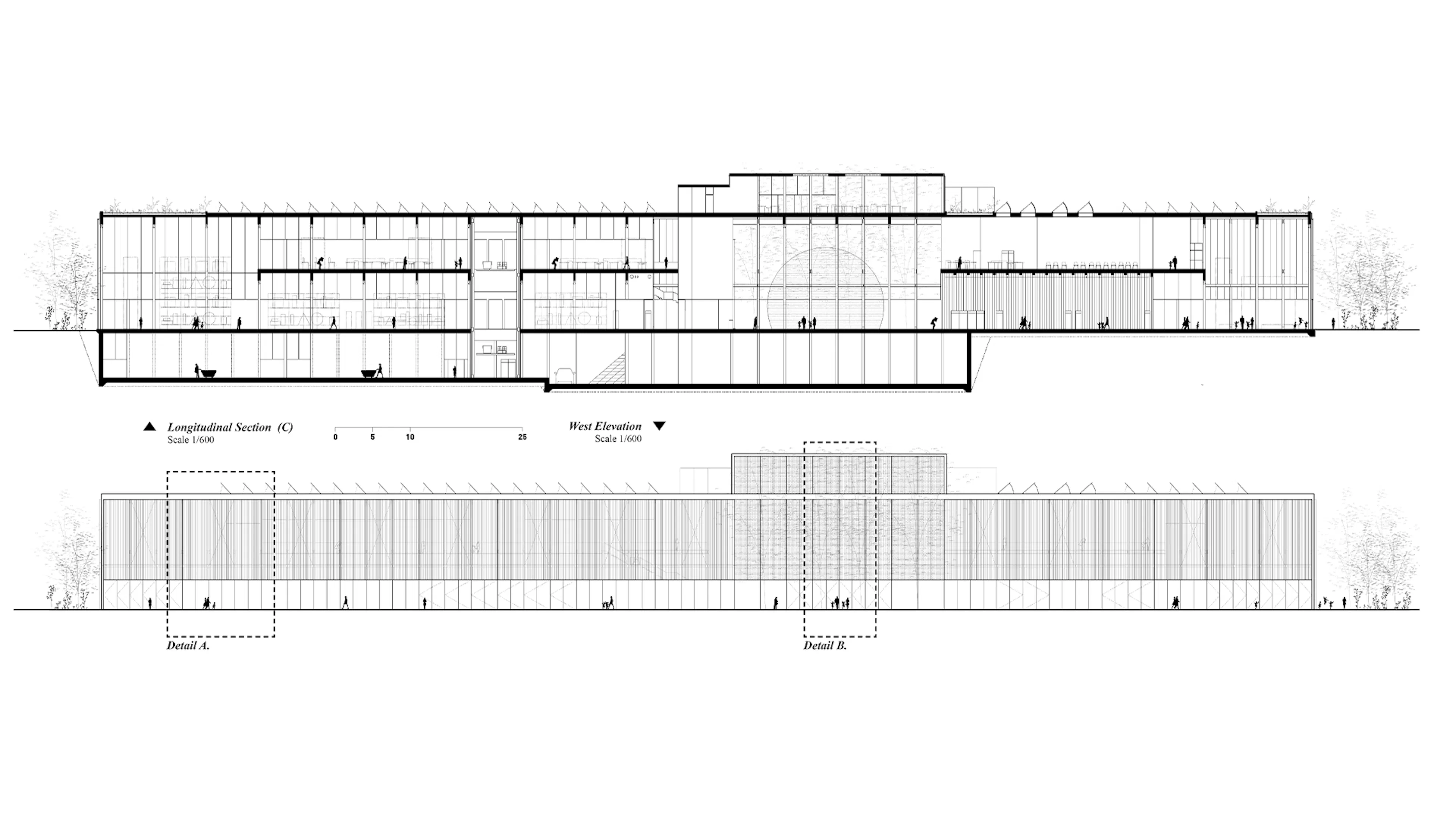
The proposal invites visitors to reconsider their relationship to nature, the city, and to each other. The design breaks away from the conventional division between interior and exterior, providing alternative programming possibilities that dissolve the confines of a traditional museum. The project gracefully harmonizes with nature, embracing Jinju’s architectural legacy. Two engaging galleries serve as both transitional spaces and filtering mechanisms. These galleries are simultaneously circulation pathways, natural light diffusers, and passive climate control systems. The new museum will play a central role in Jinju’s Culture Park Masterplan, seamlessly connecting the old Railroad Station to the modern Science Museum at the northern end of the complex. The old station platform is repurposed as the primary circulation artery of the park.
Collaborators
1lead















