Just Stone Gallery
SANJ DESIGN STUDIO
Fujian, China
- Year
- 2024
- Category
- Commercial > Showrooms
- Type
- Commercial
- Firm
- SANJ DESIGN STUDIO
- Location
- Fujian, China
- Award
- A+ 2025 · Finalist

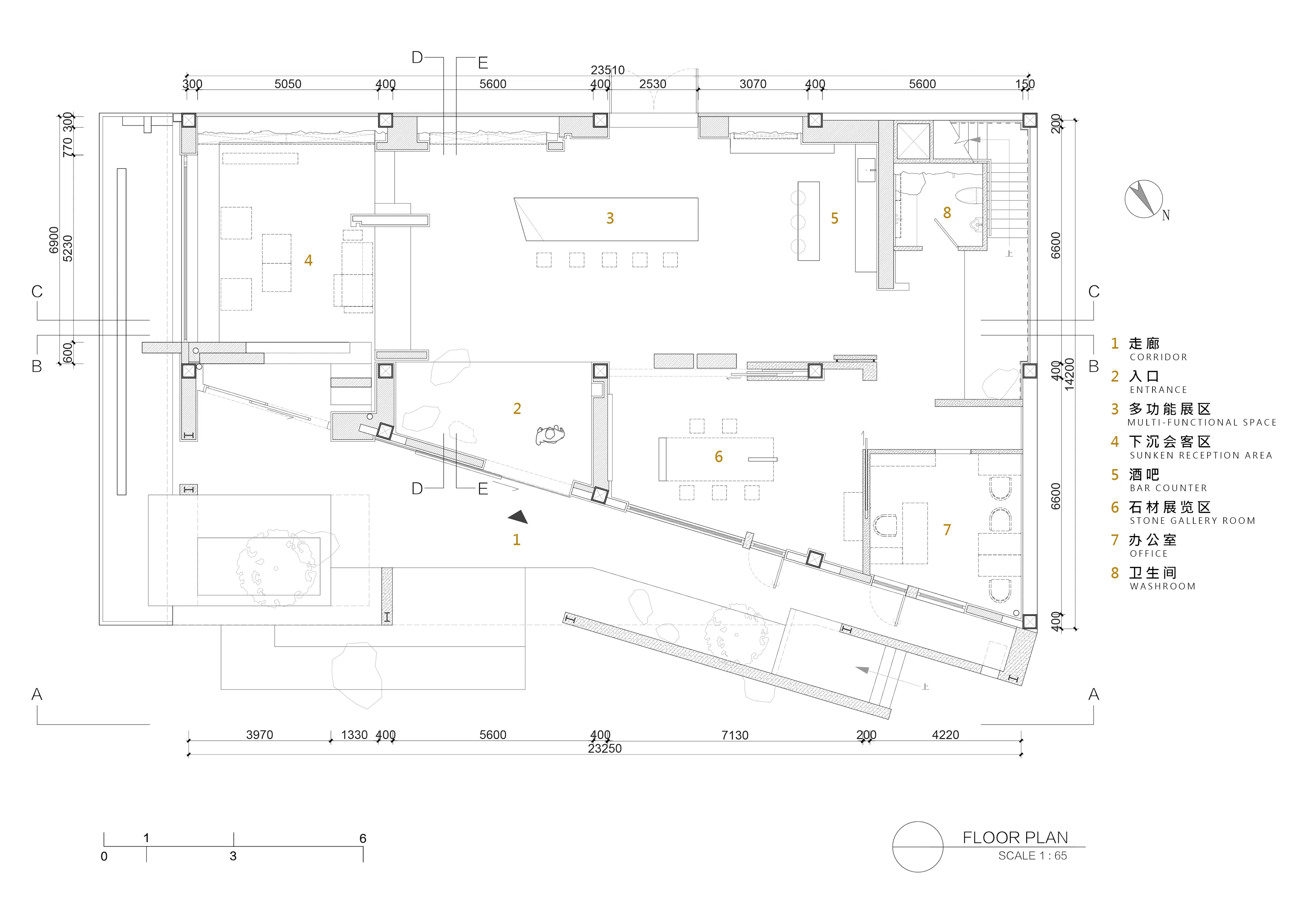
The project is located next to the luxury stone raw block storage yard of Just Stone Company in Shuitou, Nan'an, Designer aims to build a stone showroom that highlights raw stones as the main feature. The space uses marble stone and concrete as the sole primary materials. Utilizing the malleability of stone, raw marble blocks are cut into different sizes and proportions, integrating various techniques into architecture and interior spaces to create a space that is purely defined by stone.The concealed exhibition hall with its rusty iron gate and uneven concrete walls embodies the sediment of time, resembling a long-abandoned quarry. The omnipresent stone elements within the space provide a natural texture, allowing one to feel the beauty of raw stone sculpted by nature through the touch. Here, the stone serves both as the subject of the exhibition and as the backdrop that enhances it. Based on the advantages of being close to the raw material storage yard, the project reduced transportation costs by sourcing materials on-site. The recycling and reuse of scrap marble stone materials were utilized as concrete aggregates for casting walls and diamond grinding concrete floors. This promotes sustainable development in construction and environmental friendly design concepts.
People
1Collaborators
1














