Keret House
Centrala Designers
- Year
- 2012
- Category
- Concepts > Architecture +Living Small
- Type
- Residential
- Firm
- Centrala Designers
- Award
- A+ 2013 · Finalist

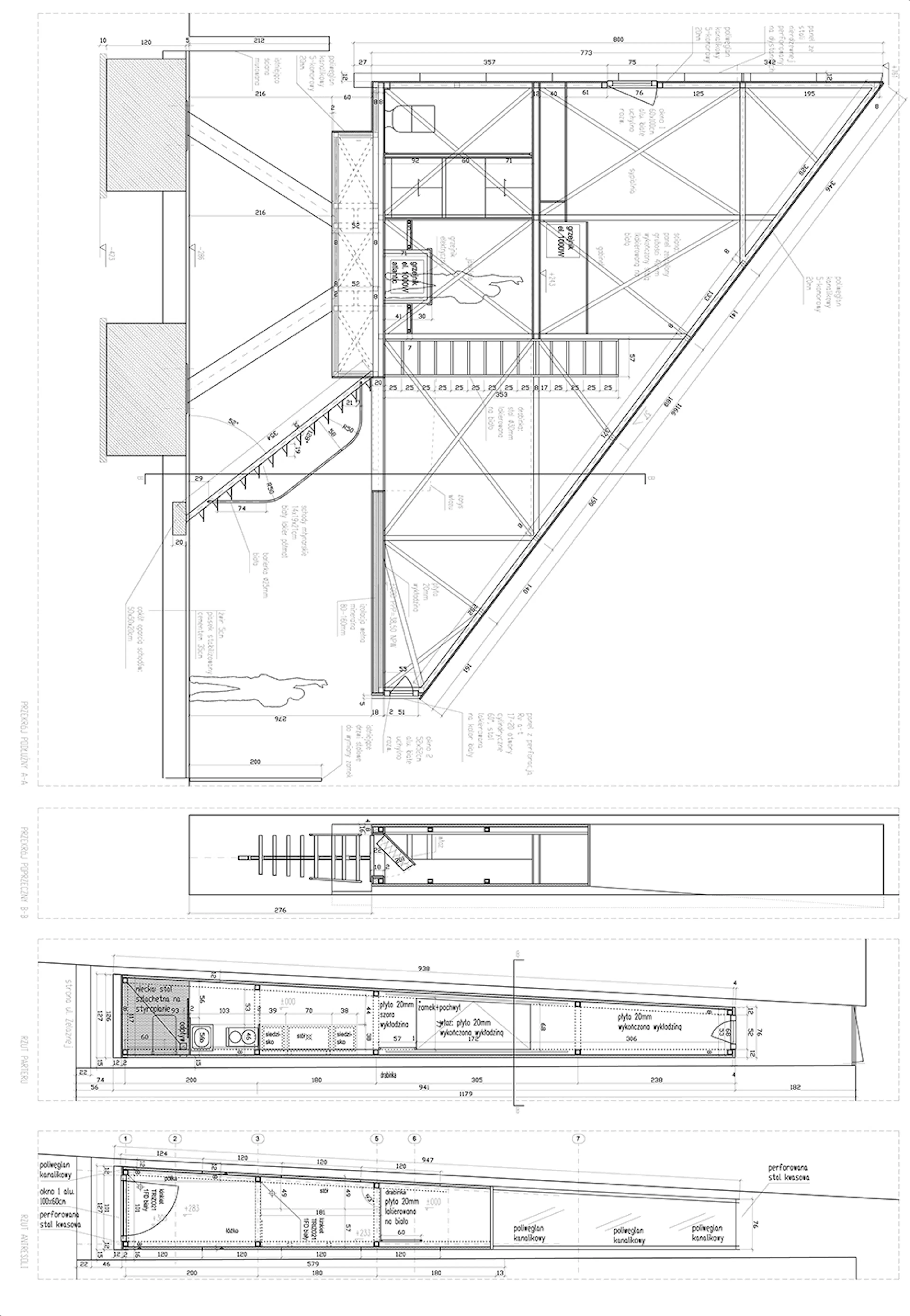
Keret House is situated on the verge of ex-Jewish ghetto in Warsaw's Wola district.It's a workplace, a hermitage recalling XVIII century tradition of places of solitude created for an Isreali writer, Etgar Keret. Besides, it will also fulfill a function of a studio for invited guests – young creators and intellectualists from all over the world. Made with steel structure, wall panels and policarbonate roofing and facade it was meant to provide comfort without claustrophobia, that is why it's interior is all white and floaded with light. Designing, fundrising, applying for permits and building made it almost an impossible project, that is why it has a legal status of an art installation. The interior provides all functions necessary for one-two week stays with ergonomic norms referring to vehicle design rather than building domain dimensions: the width of the interior varies from 72 to 122cm i the widest spot, while the actual gap between buildings varies from 92 to 152cm.client: Fundation of Polish Modern Artarchitect: Jakub Szczęsny / Centrala, Warsaw, www.centrala.net.plstructural engineers: Sławomir Pucek, Ryszard Nalepskielectrical planning: TEMAhydraulic planning: Artur Kolanowskimaster builder / general contractor: AWBUDcontruction manager: Grzegorz Szczygieł, Joanna Trytekphotographer: Bartek Warzecha
Collaborators
1









