KNEM Offices
b720 Fermín Vázquez Arquitectos
Barcelona, Spain
- Year
- 2021
- Category
- Commercial > Office - Mid Rise (5 - 15 Floors)
- Type
- Commercial
- Firm
- b720 Fermín Vázquez Arquitectos
- Location
- Barcelona, Spain
- Award
- A+ 2024 · Popular Choice

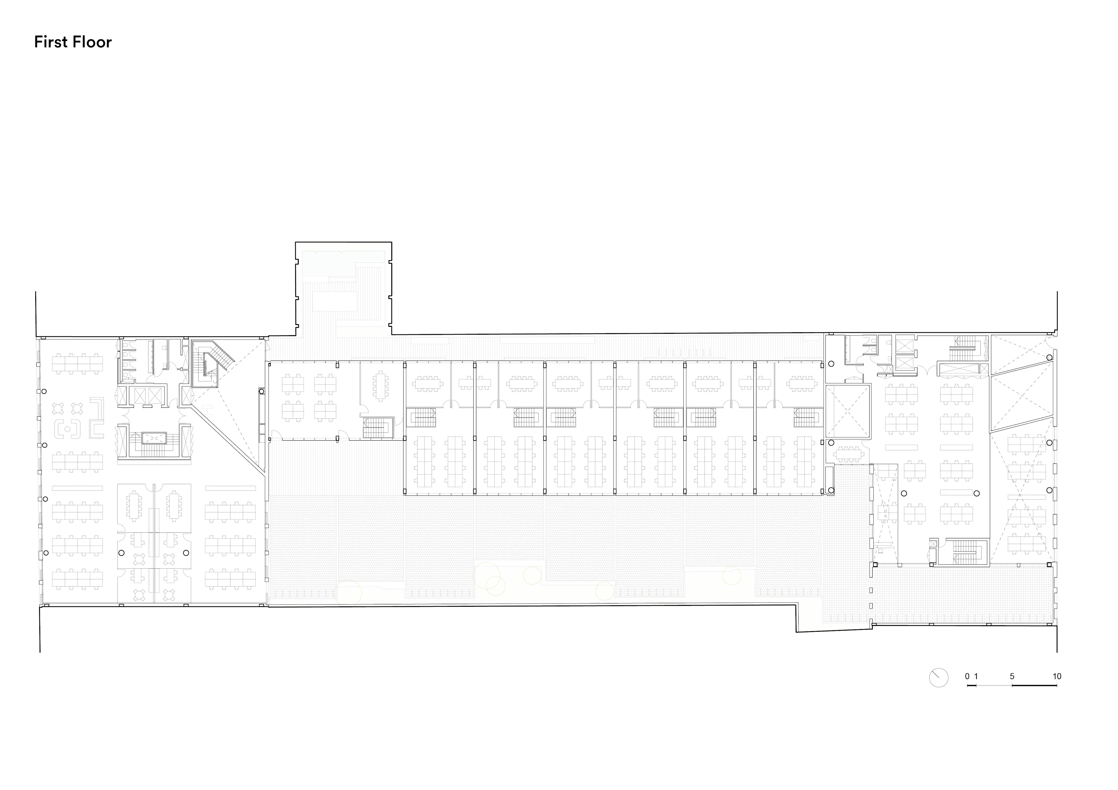
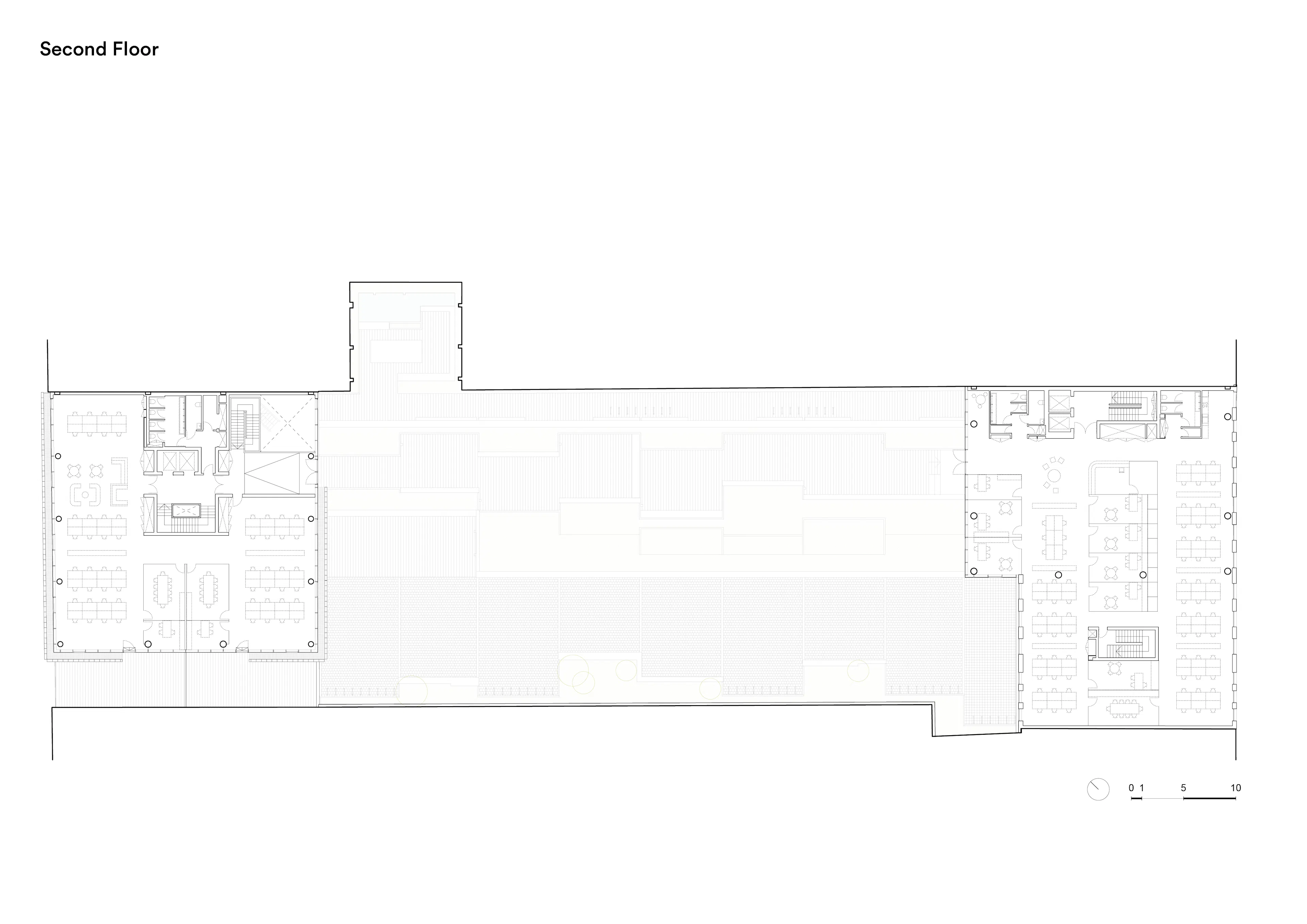
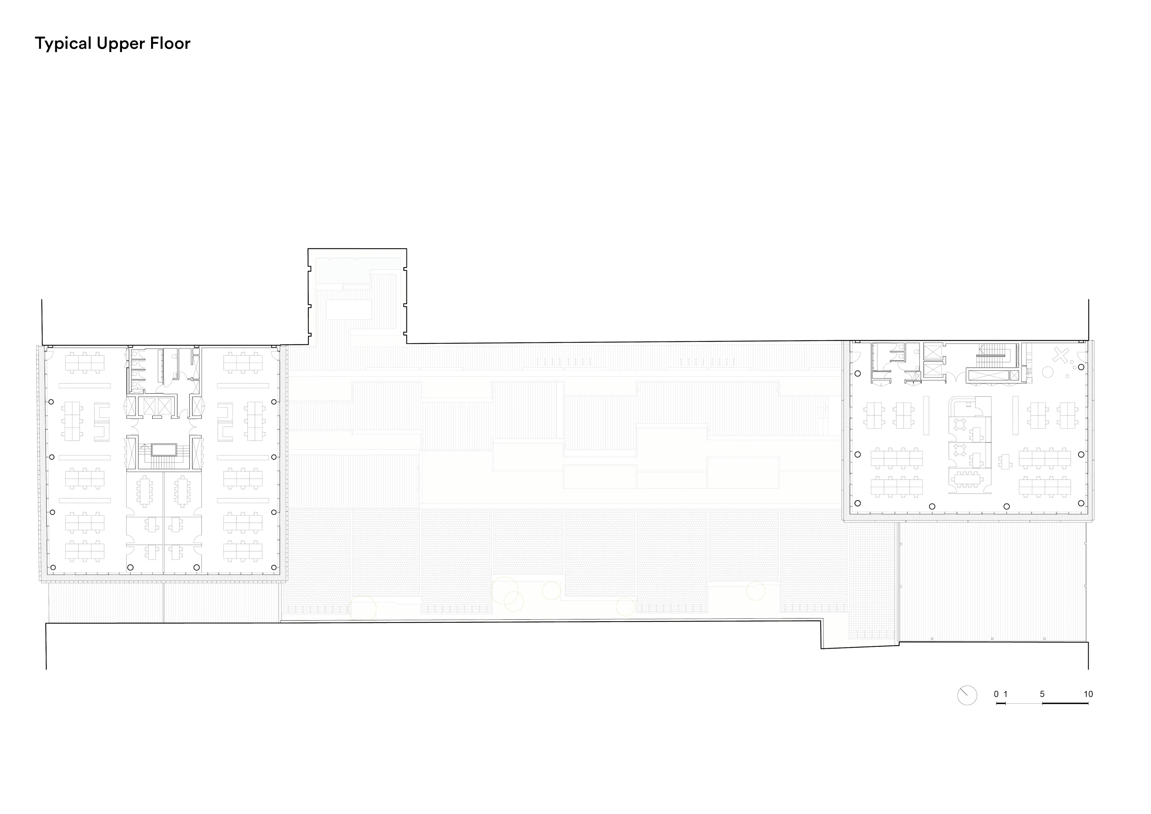
The project is located in the Poble Nou neighborhood of Barcelona, on a plot that was part of the former jute spinning mill of the Hermanos Godó , popularly known as "El Cànem". The façade of the existing building that faces Doctor Trueta Street, included in the Architectural Heritage Protection Plan, has been preserved. The program is distributed in three volumes within the plot: two blocks that face each of the streets and a block in the central area that joins them through a large landscaped patio. Despite this organization into three distinct entities, it seemed appropriate to create a certain formal unity that would combine tradition and innovation while highlighting the industrial past of Poble Nou and the legacy of the "El Cànem" factory. Thus, a continuous plinth of masonry runs along the perimeter of the entire complex, unifying the three volumes in a single programmatic and formal body. Two glass boxes are supported and raised on this plinth, screened with an aluminum lattice that evokes the weaving of jute fibers.This duality between the industrial past and the contemporary vocation of the new building is materialized in the formal contrast between the plinth and the raised boxes. Just as the blocks facing the street offer large, diaphanous and flexible office spaces thanks to the strategic location of the vertical cores and the post-tensioned concrete structure, the central block is configured as an addition of smaller duplex-type offices open to the central passageway, reminiscent of the old industrial workshops that dotted the urban fabric of Poble Nou. Energy certificates: Leed Gold Client: Diagonal 477 SLU b720 Team: Fermín Vázquez, Peco Mulet, Eduardo Varas, Pablo Garrido, Cristina Gassó, Elisabet Usón, Maialen Andiarena, Ruxandra Avramescu Construction: Copcisa SA Collaborators: BIS Structures (Structural Engineers), Deerns (MEP), Mirla (Landscape) Photographer: Adrià Goula
Collaborators
1



































