Lanman Mansion
gad
- Year
- 2023
- Category
- Residential > Unbuilt - Multi-Unit Housing (S <10 Floors)
- Type
- Residential
- Firm
- gad
- Award
- A+ 2023 · Finalist

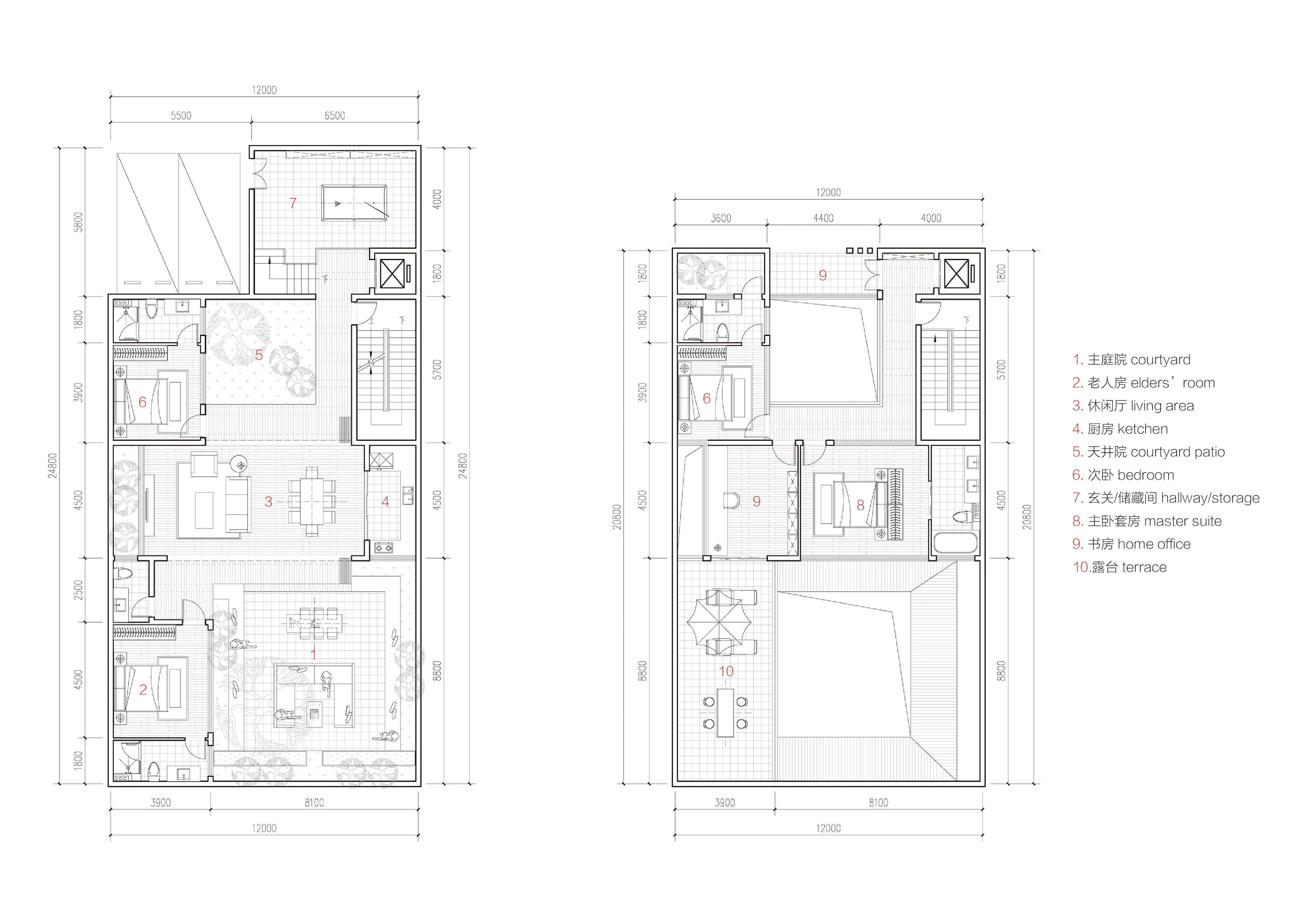
In the environment of steep hills and mountains on three sides, and based on the local culture of Jiangxi, the project establishes the principle of giving priority to the landscape. The layout of the building follows the mountainous terrain and falls in layers, eliminating the 50m difference in site height while creating the best southwest and south-facing views for each household. Grey spaces such as courtyards, patio yards, terraces, and verandahs unfold sequentially, bringing wide views, abundant sunlight, and indoor green landscape space. The internal streets of the site take advantage of the height difference of the mountains and follow the ancient gardening principle of "walking, looking, living, and traveling" to create a mountain street and lane landscape roaming path that is unique to the villages of northern Ganzhou. While satisfying contemporary living habits, it also achieves the perfect integration of culture in the area.
Collaborators
1lead



































